Оптимальная планировка для одноэтажного дома до 100 кв. м
- Оптимальная планировка для одноэтажного дома до 100 кв. м
- Связанные вопросы и ответы
- Какие факторы следует учитывать при выборе планировки одноэтажного дома до 100 кв. м
- Какие функции должны быть предусмотрены в планировке одноэтажного дома до 100 кв. м
- Какие типы планировок наиболее популярны для одноэтажных домов до 100 кв. м
- Как оптимизировать пространство в одноэтажном доме до 100 кв. м
- Как сделать планировку одноэтажного дома до 100 кв. м удобной и функциональной
- Какие материалы и технологии можно использовать для строительства одноэтажного дома до 100 кв. м
Оптимальная планировка для одноэтажного дома до 100 кв. м
Планировка одноэтажного дома – это очень важный этап в строительстве или реконструкции жилого помещения. Она должна учитывать все потребности и предпочтения жильцов, а также быть функциональной и удобной. В данной статье мы рассмотрим некоторые ключевые моменты, которые стоит учесть при разработке оптимальной планировки одноэтажного дома до 100 кв. м.
1. Определение функциональности помещений
Первым шагом при разработке планировки одноэтажного дома является определение функциональности помещений. Это означает, что нужно выбрать, какие комнаты будут в доме, и для чего они будут использоваться. Например, в доме могут быть следующие комнаты:
- гостиная
- кухня
- спальня
- ванная комната
- гардеробная
- кабинет
Определение функциональности помещений зависит от потребностей и предпочтений жильцов. Например, если семья состоит из двух взрослых и двух детей, то в доме могут быть две спальни, одна из которых будет использоваться как гостевая.
2. Размещение помещений
Следующим шагом является размещение помещений в доме. Это означает, что нужно определить, где каждая комната будет расположена. В идеале, комнаты должны быть расположены таким образом, чтобы было удобно перемещаться между ними. Например, кухня должна быть рядом с гостиной, а спальня – в удалённом от шума месте.
3. Использование пространства
При разработке планировки одноэтажного дома важно учитывать использование пространства. Это означает, что нужно использовать все доступное пространство в доме, чтобы сделать его максимально функциональным и удобным. Например, можно использовать подполье для хранения вещей или оборудования, или создать открытый план, чтобы комнаты были связаны между собой.
4. Выбор материалов и цветовой палитры
Выбор материалов и цветовой палитры также является важным моментом при разработке планировки одноэтажного дома. Материалы должны быть устойчивыми и долговечными, а цветовая палитра должна соответствовать стилю и вкусам жильцов. Например, можно использовать натуральные материалы, такие как дерево или камень, или современные материалы, такие как стекло или акрил.
5. Включение зон отдыха и работы
При разработке планировки одноэтажного дома также стоит учесть зоны отдыха и работы. Это означает, что нужно создать отдельные пространства для отдыха и работы, чтобы жильцы могли наслаждаться комфортом и уютом дома. Например, можно создать отдельную зону для отдыха, такую как сад или терраса, или создать отдельную рабочую зону, такую как кабинет или рабочая комната.
6. Включение вентиляции и освещения
Включение вентиляции и освещения также является важным моментом при разработке планировки одноэтажного дома. Вентиляция должна быть надежной и эффективной, чтобы обеспечить чистый воздух в доме. Освещение должно быть разнообразным и функциональным, чтобы обеспечить комфортное освещение в каждой комнате.
6. Включение вентиляции и освещения
Включение вентиляции и освещения также является важным моментом при разработке планировки одноэтажного дома. Вентиляция должна быть надежной и эффективной, чтобы обеспечить чистый воздух в доме.
Освещение должно быть разнообразным и функциональным, чтобы обеспечить комфортное освещение в каждой комнате. Это может включать в себя:
- Натуральное освещение, получаемое через окна и стеклянные двери;
- Светодиодное освещение, используемое для освещения коридоров, кухонь и ванн;
- Установки светильников, которые могут быть направлены на определенные зоны;
- Установки светильников, которые могут быть автоматически включены и выключены;
- Использование энергосбережения, чтобы уменьшить потребление энергии;
Также, при проектировании освещения и вентиляции, необходимо учитывать следующие факторы:
- Местоположение объекта;
- Климатические условия;
- Тип используемых материалов;
- Бюджет;
Таким образом, включение вентиляции и освещения - это важный этап в разработке планировки одноэтажного дома, который обеспечивает комфорт и безопасность жильцов.
7. Включение мебели и декора
Включение мебели и декора также является важным моментом при разработке планировки одноэтажного дома. Мебель должна быть функциональной и удобной, а декора – соответствовать стилю и вкусам жильцов. Например, можно использовать мебель из натуральных материалов, таких как дерево или кожа, или современную мебель из акрила или стекла.
В заключение, разработка оптимальной планировки одноэтажного дома до 100 кв. м является важным этапом в строительстве или реконструкции жилого помещения. При разработке планировки нужно учитывать все потребности и предпочтения жильцов, а также быть функциональным и удобным.
Связанные вопросы и ответы:
Вопрос 1: Какие факторы следует учитывать при выборе лучшей планировки одноэтажного дома до 100 кв м
Ответ: При выборе лучшей планировки одноэтажного дома до 100 кв м следует учитывать следующие факторы:
1. Количество и размеры комнат: необходимо определить, сколько комнат нужно в доме, и каковы их размеры, чтобы обеспечить достаточное пространство для жизни.
2. Использование пространства: важно учитывать, как будет использоваться каждый участок дома, чтобы создать оптимальную планировку.
3. Освещение и вентиляция: необходимо учитывать, как дома будет освещаться и вентилироваться при выборе планировки.
4. Коммуникации: важно учитывать расположение коммуникаций, таких как водопровод, канализация и электричество, чтобы обеспечить удобство использования.
5. Стиль и дизайн: при выборе планировки необходимо учитывать стиль и дизайн дома, чтобы создать гармоничное пространство.
Вопрос 2: Какие типы планировок наиболее популярны для одноэтажных домов до 100 кв м
Ответ: Самыми популярными типами планировок для одноэтажных домов до 100 кв м являются:
1. Открытая планировка: в такой планировке все комнаты расположены в одном пространстве, что создает ощущение большей свободы и просторности.
2. Классическая планировка: в такой планировке комнаты разделены стенами, что обеспечивает большую степень уединения и приватности.
3. Планировка с двумя зонами: в такой планировке дом разделен на две зоны - жилую и спальную, что позволяет создать более удобную и функциональную планировку.
4. Планировка с большой кухней: в такой планировке большое внимание уделяется кухне, которая становится центральным местом дома.
Вопрос 3: Какие комнаты являются наиболее важными в планировке одноэтажного дома до 100 кв м
Ответ: Самыми важными комнатами в планировке одноэтажного дома до 100 кв м являются:
1. Кухня: кухня является одной из самых важных комнат в доме, поэтому ее планировка должна быть удобной и функциональной.
2. Спальня: спальня является местом отдыха и сна, поэтому ее планировка должна быть комфортной и уютной.
3. Гостиная: гостиная является местом общения и отдыха, поэтому ее планировка должна быть удобной и функциональной.
4. Ванная комната: ванная комната является важной частью дома, поэтому ее планировка должна быть удобной и функциональной.
Вопрос 4: Какие материалы и цвета наиболее популярны для планировки одноэтажного дома до 100 кв м
Ответ: Самыми популярными материалами и цветами для планировки одноэтажного дома до 100 кв м являются:
1. Лёгкие и светлые цвета: лёгкие и светлые цвета создают ощущение большей свободы и просторности, что делает их популярными для планировки одноэтажных домов.
2. Природные материалы: природные материалы, такие как дерево и камень, создают уютную и приятную атмосферу, что делает их популярными для планировки одноэтажных домов.
3. Стекло и металл: стекло и металл могут создать современный и стильный дизайн, что делает их популярными для планировки одноэтажных домов.
Вопрос 5: Какие современные технологии могут быть использованы в планировке одноэтажного дома до 100 кв м
Ответ: Современные технологии, которые могут быть использованы в планировке одноэтажного дома до 100 кв м, включают:
1. Интеллектуальная система управления: интеллектуальная система управления может помочь автоматизировать управление домашними устройствами, такими как свет, отопление и кондиционирование воздуха.
2. Солнечная энергия: солнечная энергия может быть использована для получения электроэнергии, что может помочь сократить энергопотребление дома.
3. Умные дома: умные дома могут быть интегрированы с различными устройствами и приложениями, что позволяет управлять домашними устройствами и системой безопасности с помощью смартфона или планшета.
Вопрос 6: Какие факторы могут повлиять на стоимость планировки одноэтажного дома до 100 кв м
Ответ: Факторы, которые могут повлиять на стоимость планировки одноэтажного дома до 100 кв м, включают:
1. Материалы: стоимость материалов, используемых для строительства дома, может значительно повлиять на общую стоимость планировки.
2. Размеры: размеры дома и количество комнат также могут повлиять на стоимость планировки.
3. Стиль и дизайн: стиль и дизайн дома могут повлиять на стоимость планировки, поскольку более сложные и сложные дизайны могут быть более дорогими.
4. Современные технологии: использование современных технологий, таких как интеллектуальная система управления и солнечная энергия, также может повлиять на стоимость планировки.
Какие факторы следует учитывать при выборе планировки одноэтажного дома до 100 кв. м
Площадь одноэтажного дома для семьи относится к самым важным параметрам, определяющих его стоимость, комфорт и эстетику. Поэтому нужно учитывать ряд важных факторов.
Состав семьи
Для определения оптимальной площади жилого дома необходимо учитывать множество факторов. Количество проживающих в доме людей — один из ключевых параметров. В среднем для комфортного проживания одного человека требуется 35м². Стоит учесть возраст проживающих, ведь детям, к примеру, необходимо больше пространства для игр, обучения, чем взрослым.
Наглядный пример: для семьи из трех человек (родители и ребенок) оптимальным будет дом площадью около 100м². Из них:
- 30м² - спальни (по 15м² на каждого члена семьи);
- 20м² - гостиная;
- 15м² - кухня;
- 5м² - ванная комната;
- 5м² - подсобные помещения (кладовая, гардеробная).
Также необходимо учесть место для отдыха на свежем воздухе (терраса, балкон), которое может занимать до 25м².
Количество комнат и их назначение
Этот фактор тесно связан с предыдущим, так как количество и размер комнат зависят от того, сколько, какие функции они будут выполнять.
Так если в доме будет только одна спальня, то она должна быть достаточно просторной (20 квадратных метров), чтобы вместить двуспальную кровать, шкаф, тумбочки, телевизор и прочее. Если таких помещений будет два или более, то их площадь может быть меньше, например, 15-18 квадратных метров каждая. Также важно учитывать освещение в каждой спальне, чтобы обеспечить комфортное проживание.
Площадь участка под строительство
Чем больше участок, тем больше площади дом можно построить на нем. Но следует помнить про место для размещения гаража, сада, бассейна, беседки, детской площадки и других объектов ландшафтного дизайна.
Поэтому, при выборе площади дома нужно оставить достаточно свободного пространства на участке для этих целей. Должны быть соблюдены определенные нормы и правила по застройке. Перед началом строительства важно получить разрешение на строительство и согласовать проект дома с соответствующими органами.
Бюджет на строительство
Чем больше площадь дома, тем больше финансов нужно потратить на его строительство и обустройство. Важна стоимость материалов и работ наравне с их качеством, надежностью, экологичность и энергоэффективностью. Для семьи из трех человек рекомендуется участок площадью от 6 до 10 соток.
При определении площади будущего здания нужно реалистично оценивать свои финансовые возможности и не стремиться построить слишком большой или слишком маленький дом. Следует найти золотую середину, удовлетворяющую ваши потребности, соответствующую заявленному бюджету.

Какие функции должны быть предусмотрены в планировке одноэтажного дома до 100 кв. м
Прежде всего нужно решить, какой проект для строительства дома использовать – типовой или индивидуальный. Первый является шаблонным вариантом, который позволяет сэкономить время и денежные средства. Он не будет составляться в полном соответствии с пожеланиями заказчика, однако готовое решение всегда можно слегка подкорректировать под свои нужды.


Преимущество индивидуального проекта одноэтажного дома заключается в возможности создания уникального архитектурного сооружения, в котором будут учтены требования по планировке, дизайну, эргономике, цветовому исполнению и пр. Ответственный архитектор создаст поистине эксклюзивный эскиз загородного дома. При таком планировании можно учесть любые нюансы. Например, сложно найти готовое решение, в котором каждая спальня имеет свою ванную комнату, однако если проект составляется индивидуально, то подобное пожелание не вызовет трудностей.
Несмотря на обилие готовых вариантов одноэтажных коттеджей, выбрать проект, который будет полностью соответствовать требованиям заказчика, непросто. Поэтому в данном случае лучше обратиться к профессиональным архитекторам и дизайнерам интерьера, которые построят идеальный эскиз.
Однако не секрет, что услуги специалистов стоят недешево, да и к выбору исполнителя следует подходить внимательно. Человек, не имеющий нужной квалификации или опыта, может допустить ошибки в технических расчетах, в результате во время строительства возникнет форс-мажор. Именно профессионал способен подготовить план загородного коттеджа, причем не только красивого и комфортного, но и долговечного.
Как показывает практика, оптимальное решение при строительстве – типовые проекты одноэтажных домов 150-200 кв. м., которые при необходимости можно изменить или дополнить. Не стоит забывать, что при проектировании следует учитывать особенности местности и ландшафта, поэтому вносить коррективы в готовый шаблон все же придется.


Обдумывая все достоинства и недостатки обоих вариантов, стоит помнить, что найти решение, которое полностью соответствовало бы ожиданиям, нелегко. Поэтому в некоторых случаях легче создать эскиз «с нуля», нежели вносить множественные поправки в уже готовый проект.
Какие типы планировок наиболее популярны для одноэтажных домов до 100 кв. м
Строительство одноэтажного дома из газоблоков предлагает свои собственные преимущества, которые следует учесть при выборе материала. Вот некоторые из них, а также их сравнение с кирпичом:
Легкость и удобство монтажа: Газоблоки имеют небольшой вес по сравнению с кирпичом, что облегчает транспортировку и ускоряет процесс монтажа. Из-за своей легкости, газоблоки требуют меньше трудозатрат при укладке.
Теплоизоляция: Газоблоки обладают хорошими теплоизоляционными свойствами. Они сохраняют тепло в зимнее время и охлаждают помещения в жаркую погоду. Однако, в сравнении с кирпичом, газоблоки имеют немного более низкую теплоизоляцию.
Звукоизоляция: Газоблоки также обладают хорошей звукоизоляцией, способствуя созданию спокойной и тихой обстановки внутри дома. Однако, кирпичные стены обычно имеют лучшие звукоизоляционные характеристики.
Экологичность: Газоблоки изготавливаются из природных и экологически чистых материалов, таких как песок, цемент и вода. Они не содержат вредных веществ и могут быть рассмотрены как экологически более дружественный вариант по сравнению с кирпичом.
Экономичность: Газоблоки обычно имеют более низкую стоимость по сравнению с кирпичом. Это может быть привлекательным фактором для тех, кто стремится сократить бюджет строительства своего дома.
Устойчивость к влаге: Газоблоки обладают высокой устойчивостью к влаге, не гниют и не разрушаются под воздействием воды. Однако, кирпичные стены также обладают хорошей устойчивостью к влажности.
Как оптимизировать пространство в одноэтажном доме до 100 кв. м
Дом площадью в 100 квадратных метров является, наверное, одним из самых лучших вариантов для реализации смелых и лучших архитектурных решений среди всех проектов домов, площадь которых не превышает 150 квадратов. В качестве материалов оформления, а также строительства дополнительных помещений могут выступать и кирпич, и клееный брус, а террасы, гаражи и веранды могут быть возведены из пеноблока, газобетона или из СИП-панелей, либо быть кирпичными , как в старые добрые времена. Все эти дополнительные помещения желательно изначально учитывать в архитектурном плане, создаваемом на основе типового. Как правило, все те элементы, о которых вскоре пойдёт речь, являются логическим продолжением 1-го этажа и увеличивают его функциональность.
С террасой
Террасный настил, начинающийся прямо от порога дома, позволит, помимо визуального увеличения площади дома, создать дополнительную площадь для проведения семейных вечеров и просто посиделок летними вечерами. Терраса ни в коем случае не должна выбиваться из общего стилевого оформления дома, поэтому при строительстве, хотя бы чисто теоретически, представьте, каким образом впишется терраса в общий ансамбль и как она может выглядеть. Терраса может быть крытой, что позволит пользоваться ею полноценно не только в солнечные и тёплые дни, но и во время непогоды. Сама идея террасы не предполагает её утепления и остекления. Это пространство можно украсить малыми архитектурными формами и предметами декора. Растения, в особенности вьющиеся, придадут террасе дополнительные детали и выгодно выделят её среди всех остальных.
С мансардой
Появление мансарды в доме может стать спасением, если ваша семья большая и к вам часто приезжают гости, поэтому наличие дополнительных помещений жизненно необходимо. Некоторые стилевые направления предполагают расположение жилых помещений именно на мансардном этаже. Если решитесь на подобное, то рекомендуется также установить панорамное окно до пола, тогда уж проблем с проникновением света не будет и, возможно, задумываться о проведении электричества не придётся. Сами мансардные помещения лучше отделывать в дереве либо в материалах, стилизованных под доски и древесные срубы. Это придаст вашей мансарде дополнительный уют и лишний раз подчеркнёт её натуральность.
Сон, да и просто нахождение в таком помещении, многократно прибавляет силы!
С верандой
Веранда – это прекрасная возможность расширить площадь помещения, ничуть не теряя в эстетике самого дома. Тем более в общую композицию одноэтажного дома она впишется идеально. Опять же, веранду можно остеклить и утеплить, и получится достойная комнатка, если уж и не для полноценного проживания, то хотя бы для проведения каких-нибудь праздников. Летом на веранду можно отправить спать гостей. Вентиляцию веранды можно осуществлять, просто открывая окна, либо можно в самом проекте заложить небольшие, узкие, но очень эффектные и функциональные окошечки.
Посадите у основания веранды девичий виноград, и через пару лет он обовьёт всё это строение, придав ему поистине уникальный и натуральный вид, который обязательно станет вашим предметом гордости.
С гаражом
Проекты небольших домиков с гаражами в последнее время приобрели огромную популярность. В условиях плотной малоэтажной застройки, а также на загородном участке наличие гаража становится обязательным условием даже не только для хранения автомобиля, но и некоторых нужных для хозяйства вещей. Важно лишь помнить о том, что захламлять гараж ни в коем случае не стоит. Современные технологии позволяют строить гаражи из любого материала, а также адаптировать их под разнообразные природные условия и особенности каждого региона.
С эркером
Как известно, эркер представляет собой небольшой выступ в стене. Если брать общие правила строительства, то эркер можно размещать на этаже любого уровня. Однако в нашем случае он будет располагаться на первом и единственном этаже дома. Также за счёт эркера можно ненамного, но расширить площадь помещения и разместить там что-то небольшое, но весьма функциональное. В этом месте можно устроить детскую зону либо небольшую читальню. Опять же, если владелец дома является творческой личностью, то выступающий эркер, в особенности, если вплотную к дому разбит сад, может быть художественной мастерской.
К тому же это может стать прогрессивным решением для освещения тёмной комнаты: появление эркера позволяет солнечному свету проникать в не самую светлую комнату на постоянной основе.
Как сделать планировку одноэтажного дома до 100 кв. м удобной и функциональной

Одноэтажные дома могут быть эффектными и современными, они имеют много достоинств. В статье поговорим о плюсах и минусах таких построек. Расскажем все о проектах коттеджей в один этаж, узнаем, как их можно разработать самостоятельно, или где приобрести готовые чертежи и схемы.
Преимущества и недостатки
Нельзя сказать, что одноэтажные дома лучше или хуже 2-3-этажных зданий, но в некоторых случаях их использование гораздо рациональнее. Рассмотрим, в чем преимущества низких строений, и когда они, действительно, необходимы.
Проживание в одном уровне обеспечивает удобство и безопасность людям с ограниченными возможностями, семьям с маленькими детьми и пожилыми родителями.
Такие постройки удобны тем, что все необходимые помещения находятся в близкой доступности.
Дому с невысокими стенами не нужен дорогой заглубленный фундамент.
Отсутствие лестницы экономит внутреннее пространство и средства на ее возведение.
Обустраивать коммуникации в горизонтальной плоскости гораздо проще, чем это делать одновременно в горизонтальном и вертикальном направлениях.
Здание в одном уровне легче достроить, расширить, если возникнет такая необходимость.
Одноэтажный дом красиво встраивается в ландшафт участка.
Недостатков у низких построек немного, но они существенные.
Для строительства комфортного дома понадобится большая площадь, которая могла бы быть полезной для обустройства двора, сада или огорода.
Фундамент будет неглубокий, но с учетом метража займет много места. Покрывная площадь крыши также окажется ощутимо большой.
Варианты проектов
Одноэтажный дом необязательно должен выглядеть как прямоугольная коробка. Линию фасада красиво меняют выступающие эркеры, веранда с масштабным остеклением, фигурные входные группы, большие и открытые навесы, террасы, вытянутые во всю стену здания.
Посмотрите, как красиво могут выглядеть фасады, если приложить немного фантазии.
Оживление в линию дома вносят эркер, сложная кровля, балкон, крыльцо с колоннами.
- Украшением коттеджа, выстроенного буквой «Г», служит необычная каскадная крыша.
- Симпатичное здание с углубленным передним входом содержит выступающие помещения с двух сторон.
- Эффектным архитектурным решением становится круглая пристройка в форме пагоды.
Проекты одноэтажных домов условно можно разделить на маленькие (до 100 кв. м), средние (до 150 кв. м) и большие (свыше 150 кв. м). Сначала рассмотрим самые востребованные категории проектов, а затем сделаем обзор нестандартных коттеджей.
До 100 кв. м
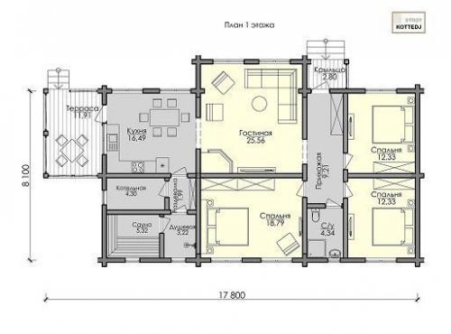
Здание в 100 кв. м как нельзя лучше сочетает в себе компактность и комфорт. Оно подходит семьям из 4-5 человек и может содержать гостиную и 2-3 спальни.
Для молодой семейной пары без детей или одинокого человека можно обратить внимание на более скромные варианты – чем меньше метраж дома, тем дешевле обойдется его строительство и обслуживание.
Небольшие дома до 100 кв. м легко расположить на компактном участке с любым грунтом и рельефом. Они возводятся быстро, им не нужен дорогой заглубленный фундамент, их легко обустроить коммуникациями. Внутреннее пространство таких зданий не имеют мертвых пустующих зон, в них рационально используется каждый сантиметр свободной площади.
К минусам проектов относят нехватку места. Особенно тесным покажется домик для тех, кто привык обрастать вещами. Чем меньше размеры коттеджа, тем скромнее выбор проектов, на планирование 2-3 жилых комнат много фантазии не требуется.
Предлагаем ознакомиться с планами домов, площадь которых не превышает 100 кв. м.
Вариант 1
Максимально простая планировка дома 6х6 кв. м содержит зал, спальню, кухню и совмещенный санузел. Небольшой тамбур помогает сохранять тепло в жилых помещениях.
Зоны для сна, отдыха, приема пищи в домике имеются, оплата за коммунальные услуги компактной площади будет небольшой. Идеальное место для проживания одного человека или семейной пары без детей.
Вариант 2
Коттедж 10,6х8,6 кв. м содержит внутреннюю площадь 72 кв. м. Пространство дома разделено тамбуром и коридором на две части. По правую сторону расположены спальня и кухня, по левую – зал и большая спальня. В конце коридора находится совмещенный санузел. Несмотря на небольшие размеры комнат, дом вполне подойдет семье из 3-4 человек.
Вариант 3
Маленький уютный домик 7,5х6,3 кв. м. Он не имеет тамбура, поэтому для сохранения тепла в помещениях желательно выстроить веранду. Холл 5,6 кв. м объединяет все комнаты в доме – гостиную, спальню, кухню, санузел и топочную.
Вариант 4
В одноэтажном доме 6х8 кв. м с комфортом может проживать семья из 3-4 человек, если увеличить площадь мансардой. Она не является полноценным этажом, поэтому расходов на ее возведение будет меньше.
Кроме прихожей, на первом этаже все пространство занимает гостиная, объединенная с кухней. На мансарде расположены две спальни. К сожалению, в этом проекте санузел вынесен за пределы дома.
Какие материалы и технологии можно использовать для строительства одноэтажного дома до 100 кв. м
Сегодня большинство частных домов строятся со свободной планировкой. Средняя площадь жилых помещений — 100–120 м2. В двухэтажных зданиях обычно первый этаж обычно отводят под общественные зоны, а на верхних располагаются спальни. В одноэтажных домах все зоны будут находится на первом этаже. Список помещений:
- Спальни . Их количество зависит от числа и возраста жильцов. Если позволяет площадь, в каждой спальне можно сделать свою душевую или смежный санузел.
- Гостиная . Можно сделать отдельный зоной или же соединить со столовой, кухней.
- Санузел и ванная . На площади свыше 100м2 целесообразно предусмотреть 2 санузла, душевую и ванную и расположить их в разных частях здания, чтобы покрыть потребности всех жильцов.
- Кладовые или гардеробные . Они позволят заменить все или большинство шкафов в доме. Из можно совместить со спальней или сделать близко к ней. Кладовая идеально впишется в кухонное пространство, позволит хранить здесь продукты с длительным сроком хранения.
- Прихожая, холл или тамбур . Обязательно нужно место для раздевания и хранения верхней одежды, обуви.
- Технические помещения — бойлерная, прачечная, сушилка.
- Кабинет и мастерская . Понадобятся тем, кто работает на удаленке, фрилансерам, ремесленникам.
Вариантов планировки дома много, но в основном в передней части, ближе к входу, находится большая гостиная, которая может быть совмещена с кухней или нет. Санузел и ванную комнату лучше расположить поближе к спальным комнатам. Также нужно предусмотреть место под бойлерную. Не стоит делать узкие коридоры, удобно, когда зоны соединены просторным холлом.
