Строительство дачного туалета. Дачный туалет своими руками пошагово
- Строительство дачного туалета. Дачный туалет своими руками пошагово
- Дачный туалет чертеж. Чертежи деревянных туалетов для дачи
- Туалет на даче варианты. Выгребная яма
- Как закрепить туалет на земле. Как делается уличный туалет на даче: варианты и пример поэтапного строительства
- На что поставить дачный туалет. Как построить дачный туалет из разного вида стройматериалов общие рекомендации
Строительство дачного туалета. Дачный туалет своими руками пошагово
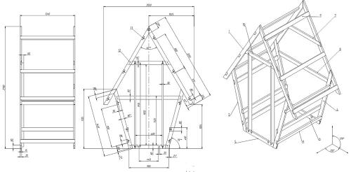
Двускатные конструкции типа «избушка» пользуются сегодня популярностью. Во-первых, такие туалеты смотрятся очень интересно.
Во-вторых, эти конструкции довольно просторны внутри и не занимают при этом много полезной площади снаружи. Ну и сделать их можно из остатков различных стройматериалов.

А чтобы сделать летний сортир пригодным для круглогодичного использования, нужно будет его утеплить (например, пенопластом).
Поэтому в рамках данной статьи мы рассмотрим самый простой и бюджетный способ, как сделать туалет на даче типа «избушка» (или как его еще называют — «теремок»).
Можно выделить несколько основных этапов:
- копка выгребной ямы, укрепление ее стенок;
- возведение каркаса;
- обшивка собранного каркаса плитами OSB;
- монтаж кровельного покрытия (Ондулин или профлист);
- установка двери и фурнитуры.
Схему строительства туалета своими руками вы можете посмотреть ниже в статье. Можно использовать ее за основу, или же взять на заметку некоторые моменты из нее. Это уже вам решать.
Выбор места
Сначала необходимо определить подходящее место на дачном участке, где будет располагаться сортир. Желательно придерживаться рекомендованных санитарных норм.
От жилого дома туалет должен находиться на расстоянии 10-12 м, от забора — минимум 1-1,5 м. Придерживаясь этих простых правил, вы сможете избежать проблем с соседями.
Также необходимо строить сортир на отдалении от колодцев и естественных водоемов, если они есть на участке. Нужно еще выбирать месторасположение туалета с учетом удобства дальнейшего обслуживания выгребной ямы.
Материалы которые понадобятся
Преимуществом строительства кабинки-избушки является то, что можно обойтись без использования дорогостоящих материалов в виде металла (профтрубы, уголки и т.д.) или кирпича.
Для реализации данного проекта мы будем использовать дерево — брусы, доски и листы OSB.
Чтобы правильно рассчитать количество материалов, без чертежа дачного туалета с размерами, конечно же, не обойтись. И если у вас нет возможности сделать его в программе на компьютере, то хотя бы нарисуйте от руки.
Для изготовления основания для туалета потребуется деревянный брус размером 10х10 см (всего — около 6 метров). Для сборки каркаса понадобятся бруски 5х5 см (приблизительно — 16 метров).
Чтобы обшить каркас, отлично подойдут листы OSB толщиной не менее 9 мм, надо будет четыре стандартных листа. Вход в туалет, как правило, закрывают дверью, но временно можно использовать шторку.
Дополнительно потребуется дюймовая доска шириной 18 см (порядка 40 метров) и доски для пола толщиной 30 мм. В качестве кровельного покрытия используются листы Ондулин в количестве 3 шт.

Также понадобятся саморезы, гвозди, бруски для обрешетки, сидушка для унитаза, антисептическая пропитка для дерева.
Дачный туалет чертеж. Чертежи деревянных туалетов для дачи
Первоочередной задачей приявляется сооружение туалета. Конструкция этого сооружения не сложная, но тем не менее нужно сделать схематический чертеж дачного туалета, чтобы избежать нежелательных последствий при строительстве. Есть несколько видов санузлов для улицы, рассмотрим их подробно. Кроме этого, разберем пошагово, как построить деревянный туалет на даче своими руками.
Виды туалетов
Простота конструкции позволяет обустроить туалет на даче своими руками чертежи, и типоразмеры которого, можно изучить в каталогах фирм или рассчитать самому. Древесина самый популярный и доступный материал, простой в обработке и не требующий специального инструмента для постройки. Сама конструкция состоит из каркаса, обшитого доской и накрытого кровельным материалом.просто, для этого не нужно производить сложных расчетов, достаточно знать стандартные размеры, изучить инструкцию по сооружению, подготовить материал и инструмент и начать отстраивать санузел.
Схема и проект деревянного туалета для дачи
Готовый собранный туалет из дерева на даче
Простая конструкция дачного туалета
Стоит отметить, что соорудить домик это половина дела, вторая половина заключается в создании специального резервуара для утилизации отходов. Есть несколько категорий туалетов, которые различаются по принципу переработки отходов.Люфт-клозет
В этом виде туалетов устанавливается только нижняя часть унитаза, с технологическим уклоном пола в сторону утилизационного резервуара. Благодаря ему остатки стекают всамостоятельно. Сама емкость для отходов обустраивается позади кабинки, и опорожняется по мере заполнения.
Схематическое устройство люфт клозета
Чертеж люфт клозета для дачи или дома
Эта конструкция хороша тем, что ее можно установить в помещении, создав, а накопитель отходов выкопать вне дома. Для этого прикрепить к унитазу полипропиленовую трубу диаметром 100-150 мм.В данной ситуации не нужно монтировать дорогостоящую полноценную коммуникацию.
Названия элементов люфт клозета
Важно! При обустройстве дачного люфт-клозета с выносом ямы за пределы дома, никаких посторонних запахов в санузле не будет.Стоит ответственно отнестись к обустройству резервуара для остатков, его качественно утепляют, накрывают герметизированной крышкой и грамотной.
Процесс постройки люфт клозета на даче
Минусом подобного туалета является то, что при его обустройстве придется нарушить целостность стены.Пудр-клозет
Самая простая конструкция и. Для ее сооружения достаточно выкопать яму, которая будет служить накопителем отходов, над которой. Для предотвращения появления запаха, отходы нужно пересыпать после похода в туалет. В качестве пудры применяют опилки, торф.
Чертеж с размерами устройства пудр клозета
Проект пудр клозета на даче
Построить туалет на даче своими руками чертежи составлять не обязательно, можно сделать простой схематический набросок, чтобы понимать представление об этапах работы. При покупке подобной конструкции в магазине, емкость с био-присыпкой входит в комплект к санузлу. Пользоваться ей просто, достаточно поставить ведро с опилками или торфом и пользоваться совочком для пудры.Процесс постройки пудр туалета на дачном участке
Плюсом этих туалетов является использование отходов в качестве удобрений. При заполнении ямы, конструкцию переносят, и засыпают землей резервуар, оставляя до получения перегноя.Минус почва будет загрязняться жидкими сточными водами, что не совсем полезно. Если донные воды пролегают близко к поверхности, то такую постройку на участке устанавливать не рекомендуется.Биотуалет
Это туалет, теремок из дерева, снабжается накопителем заводского производства, в котором отходы перерабатываются бактериями без доступа воздуха.
Чертеж с размерами для установки биотуалета на даче
Бактерии засыпаются в накопитель вместе с препаратом биологического происхождения. Он покупается отдельно в специализированном магазине. Отходы быстро перерабатываются, очищать контейнер часто не придется, отходы, возможно, сразу применить как удобрение для участка.кабинка с выгребным резервуаром
это не совсем комфортное сооружение, но простота конструкции и небольшие денежные вложения в строительство делают эту модель востребованной и популярной.Источник: https://postroivsesam.info/novosti/dachnyy-tualet-svoimi-rukami-s-nulya-s-vygrebnoy-yamoy
Туалет на даче варианты. Выгребная яма
Если рассматривается традиционный вариант с выгребной ямой, необходимо иметь в виду следующее правило: глубина шахты для отходов должна уступать самому высокому уровню грунтовых вод не менее, чем на 1 м. Как правило, пик уровня наступает в весеннее время после таяния снега. При определении объема ямы ориентируются на частоту посещения гальюна и число людей. Если на даче постоянно находится не больше 3-х человек, то вполне хватит объема в 1,5 м3. В тех случаях, когда загородный дом используется исключительно для уик-эндов, выгребную яму делают еще меньше.

Форма шахты может быть любой. Самые популярные варианты – квадрат и круг. Для укрепления стенок готовой траншеи применяется кирпич, бетон, бутовый камень или просмоленная древесина. Нередко для устройства дачного туалета покупают бетонные кольца. Как и в случае с питьевыми колодцами, после укладки колец необходимо тщательно герметизировать стыковые участки.
Эту же цель преследуют, когда вокруг готового сооружения обустраивают глиняный замок, уплотняя слой глины толщиной 20-30 см. Также есть более быстрый вариант с пропиткой готовой кладки специальным составом, увеличивающим уровень гидроизоляции отделанной поверхности. Чаще всего речь идет о материалах на основе битума или цемента.

Уличный туалет на даче должен обязательно иметь систему вентиляции. Для этого внутрь ямы монтируют трубу крупного сечения (от 100 мм). Ее второй конец должен возвышаться над крышей кабинки не менее, чем на 50-70 см. Кроме того, сама кабинка должна иметь духовое окошко.
Как правило, его размещают над дверью или на боковой стене. Когда объем скопившихся отходов в яме превысит 2/3, вызывают для откачки специальную машину-ассенизатор. Этот аспект необходимо учесть, заранее спланировав на участке подъезд для машины.
По типу организации выгребной ямы есть 2 вида дачных туалетов:
- Яма под домиком . Классический вариант конструкции.
- Люфт-клозет . Здесь яму копают в стороне. Такое ее расположение позволяет переместить унитаз внутрь жилого дома, обустроив для вывода нечистот уложенный под определенным уклоном трубопровод.

Решая, какой туалет выбрать для дачи, следует учесть дороговизну обустройства люфт-клозета. Подобные траты оправданы в том случае, если у дачного домика уже имеется пристройка, или если речь идет о жилом доме с постоянным проживанием. В таком случае необходимо организовать полноценную вентиляционную систему и водопровод для смыва. При укладке труб в землю ориентируются на уровень промерзания почвы в данной местности. Учитывая необходимость уклона, выгребная яма на даче должна иметь большую глубину.
Оптимальный наклон трубы для отвода стоков из внутреннего туалета – 2-3 см/ 1 м. Отклонятся в ту или иную сторону не рекомендуется, т.к. приведенные параметры являются наиболее оптимальными. Слишком пологий уклон неминуемо приведет к застаиванию отходов и забиванию труб. При превышении норматива жидкие составляющие будут быстро уходить, а твердые и более тяжелые включения начнут накапливать внутри, издавая известные зловония.
Как закрепить туалет на земле. Как делается уличный туалет на даче: варианты и пример поэтапного строительства
Туалет для дачи: общие положения
Унитаз для садового туалета можно приобрести готовый, выбрав из большого разнообразия продукции, представленной на рынке сантехнического оборудования. При желании сэкономить владельцы дачного участка могут соорудить бюджетную и не менее практичную конструкцию унитаза своими руками.
Окончательный выбор принимает владелец дачи, но перед этим следует ознакомиться с возможными вариантами.
- Бесплатный компост. Как известно, отхожее место предоставляет определенное количество удобрений, наличие которых увеличивает урожайность огорода.
- Разгрузка основного туалета на даче. Загородный участок редко подключается к центральной канализационной системе, при этом ее функции выполняет выгребная или септик, имеющие ограниченные объемы.
- У дачников нет необходимости заходить в дом. Во время ежедневных работ на огороде, приема в саду гостей, отдыха в тенистой беседке и в других ситуациях будет удобнее посетить ближний клозет.
- Декоративный эффект строения. При творческом подходе конструкция дачного туалета может стать привлекательным и стильным элементом общего дизайна дачи.
Дачный туалет, установленный в глубине дачного участка – необходимый элемент постоянного использования. Представленные на рынке в ассортименте материалы позволяют сделать комфортную и эстетичную постройку и легко установить удобный в эксплуатации унитаз.
Дачный уличный туалет может не только выполнять свои прямые функции, но и являться эстетичным дополнением экстерьера загородного участка
Эксплуатационные особенности дачного туалета позволяют его использование на любом загородном участке. Все садовые конструкции не требуют установки «колена», так как вода в них стоять не должна.
Виды унитазов для садового туалета
Для большинства людей туалет на улице ассоциируется с дискомфортом и отрицательными эмоциями. Однако, обустраивая современный дачный туалет, можно разместить удобный унитаз, что сделает его более современным и комфортным.
В частности, это заслуга производителей сантехнического оборудования, которые разработали востребованные у потребителей модели унитазов под выгребные ямы.
Унитазы, которые устанавливаются в садовом туалете условно разделяют на 2 группы: самодельные и готовые (заводского производства)
Популярным вариантом организации дачной жизни стал биотуалет . Для его установки необязательно выкапывать выгребную яму, так как, в отличие от традиционных дачных туалетов он не требует разгрузки содержимого в землю. Отходы попадают в специальный отсек, откуда удаляются при помощи очистителей.
По материалу изготовления основной санитарной части биотуалеты делятся на следующие виды:
- Пластиковый . Это самый распространенный вариант сантехнического оборудования для дачи. Каркас и сиденье унитаза изготовлены из высокопрочного пластика, при этом бачок отсутствует.
- Керамический . Отличается эстетичным внешним видом, легкостью ухода, долговечностью и большим весом, который усложняет процесс монтажа оборудования.
Классикой жанра является деревянный бокс, сооружаемый по каркасной технологии. Построить его можно самостоятельно или купить в готовом виде. Недолговечная уличная конструкция, которая представляет собой помост с выгребной ямой и отверстием. Существуют разные конфигурации унитазов: в виде стула, с сиденьем и т. д.
Любой садовый унитаз должен соответствовать требованиям. Среди них стоит особенно выделить легкость, прочность, износостойкость и долговечность конструкции. Не менее важно, чтобы унитаз для дачи был удобным, простым в уходе и доступным по цене.
В большую часть конструкций уличных садовых туалетов не включен сливной бачок. Его наличие нежелательно, так как с излишней жидкостью выгребная яма быстрее переполнится
Если для установки на дачном участке выбрать унитаз с большим весом, имеется риск провала устройства в выгребную яму. Поэтому опытные специалисты рекомендуют дачникам отдавать предпочтение более легкому материалу. Желательно выбирать конструкцию, которая легко и быстро монтируется и снимается.
О правилах опорожнения и чистки биотуалетов вы сможете прочитать в другой популярной статье нашего сайта.
Как установить торфяной туалет?
Существует модель сортира, приносящая двойную пользу. Это компостный туалет, который становится поставщиком удобрения для садовых культур. Рассмотрим да варианта – обычный и биологический.
На что поставить дачный туалет. Как построить дачный туалет из разного вида стройматериалов общие рекомендации
В строительстве дачных туалетов можно использовать различное сырьё, начиная от дерева, заканчивая бетонными блоками. Предлагаем вашему вниманию несколько разновидностей построек.
Деревянный туалет для дачи своими руками с чертежами
Многие не представляют, насколько интересными могут быть конструкции деревянных уличных сортиров. С помощью чертежей туалетов и прописанных на них размеров, на даче легко своими руками реализовать любую из моделей.

Кабинка в виде туалета-домика для дачи подойдёт для небольших участковФОТО: rmnt-aqua.ru

На крышу можно выкладывать любой вариант черепицыФОТО: legkovmeste.ru

Вариант классической будки-скворечникаФОТО: mastervdome.com
Для каждого варианта дачного туалета чертежи и размеры будут отличаться.
Как сделать туалет на даче своими руками из кирпича: интересные варианты
Этапы строительства при возведении кирпичного сортира совершенно не отличаются друг от друга. Данный вариант смотрится богато и реализуется просто. В итоге, стены не требуют дополнительной отделки. Рассмотрим несколько типов дачных туалетов, сделанных своими руками, на фото, которые могут пригодиться для обустройства.
Очень необычный вариантФОТО: domateplee.ru
Современный туалет и душ «два в одном» с освещениемФОТО: roomester.ru
Вариант с интересной задумкой внешнего видаФОТО: 1000dosok.ru
Уличный туалет своими руками из бетонных блоков:
Отхожее место на дачном участке также можно легко построить из бетонных или газобетонных блоков. Наиболее оптимально из такого материала изготавливать совмещённые конструкции: дачный туалет с душем. На видео можно рассмотреть, каким образом должны быть устроены перегородки для предложенного варианта.
Уважаемые читатели, если у вас возникли вопросы по теме или что-то не получается в ходе строительства, обязательно спрашивайте. Не забывайте оценивать публикацию и делиться личным мнением.