Баня с 2 спальнями. Проект каменной бани – продуманная рациональность
- Баня с 2 спальнями. Проект каменной бани – продуманная рациональность
- Баня 6 на 4 2 этажа. Комплектация бани 6х4 с мансардой (бюджетный вариант)
- Баня с жилым помещением. Технические нюансы строительства
- Баня 2 этажа с террасой. Преимущества проектов двухэтажных бань, особенности их составления
- Проект одноэтажной бани с двумя спальнями. Одноэтажный дом с гаражом и баней №155 с террасой, с двумя спальнями
Баня с 2 спальнями. Проект каменной бани – продуманная рациональность
На общей площади застройки в 210, 2 квадратных метров (внутри здания – 108, 5 квадратных метров) удалось реализовать продуманный до мельчайших подробностей вариант организации пространства.
Планировка помещения полностью соответствует поставленным задачам. Согласно проекта каменной бани со спальней ступеньки с двух сторон ведут на неотапливаемую веранду и зону барбекю. Открытая площадка, где вдоволь солнца и свежего воздуха, защищена раздвижными стеклопакетами и дверями от снега зимой и косого дождя летом. Входная дверь каменной бани ведет в компактный тамбур со встроенным шкафом, где можно оставить обувь и верхнюю одежду. Вблизи прихожей–холла расположено сразу несколько помещений – две спальни и санузел.

Сам холл плавно «перетекает» в репрезентативную зону, объединившую кухню и зону отдыха. Вдоль одной из стен расположили шкафы и современную технику, интересно обыграв наружный угол. В зоне отдыха просторный обеденный стол дополнен комфортной мягкой мебелью. Здесь же можно почитать книгу, посмотреть телевизор или просто спокойно пообщаться друг с другом. Благодаря панорамным окнам с двух сторон помещение наполнено солнечным светом. Широкая дверь соединяет кухню-столовую с беседкой барбекю и террасой. В хорошую погоду будет особенно приятно обедать или ужинать вблизи отблесков пламени очага, поэтому на открытой площадке отведено место для массивного стола.
Согласно проекту бани со спальней раздевалка, котельная, помывочная и парилка расположены очень компактно. Сюда можно попасть как со стороны холла и кухни, так и прямо с улицы через отдельный вход, что очень удобно.
Баня 6 на 4 2 этажа. Комплектация бани 6х4 с мансардой (бюджетный вариант)
| Фундамент: | Рассчитывается отдельно. ( подробнее ) |
|---|---|
| Обвязка: | Обрезной брус 100х150 естественной влажности. |
| Лаги пола и потолка: | Брусок 40х150 мм естественной влажности (шаг 800мм). |
| Стены: | Профилированный строганный брус 90х140 мм естественной влажности (профиль – блок-хауз), на джутовом полотне, перегородки – из профилированного бруса 90х140 мм (прямой профиль). ( подробнее ) |
| Высота: | Высота 1-ого этажа -220 см, мансарды -220 см. |
| Кровля: | Ондулин (цвет на выбор: зеленый, тёмно-красный или коричневый). |
| Полы: | Черновой пол 20 мм, паро/гидроизоляция, утеплитель URSA 50 мм, |
| Потолок: | Зашивается вагонкой 14-17 мм камерной сушки. |
| Стропила: | Брусок 40х100 мм (шаг 700-800мм). |
| Двери: | Филенчатые, обналиченные, без фурнитуры. ( Посмотреть фото ), вход в парилку - банная клиновая дверь. ( Посмотреть фото ). |
| Окна: | Деревянные с двойным остеклением, с фурнитурой, обналиченные. ( подробнее про окна ). |
| Крыша: | Обрезная доска 40х100 мм, обрешетка выполняется из обрезной доски 20 мм (через доску).|
| Углы бани: | Заделываются деревянным плинтусом шириной 6 см. |
| Фронтоны: | Зашиваются вагонкой 14-17 мм камерной сушки. |
| Наружные углы: | Зашиваются сухой вагонкой. |
| Утепление: | |
| Парная: | Обшивается сухой осиновой вагонкой с прокладкой фольги. ( Посмотреть фото ) |
| Полки в парной: | Двухъярусные, осиновые, сухие. ( Посмотреть фото ) |
| Моечная: | Устанавливается душевой поддон с сифоном.( Посмотреть фото ) |
| Печь: | Уточняйте у менеджера. Подробнее про банные печи читайте здесь . |
| Сборка: | Входит в стоимость. |
Баня с жилым помещением. Технические нюансы строительства
Строительство бань, совмещённых с жилыми помещениями, имеет некоторые нюансы, которые в обязательном порядке должны быть отражены в проекте. Так, например, если вы решите построить двухэтажное здание, вам потребуется значительно усилить фундамент строения. Если для обычной бани вполне достаточно лёгкого ленточного фундамента, двухэтажное строение потребует значительно заглубить его, а также использовать при его возведении армировочную сетку.
Кроме того, придётся уделить большое внимание обустройству дренажа фундамента, а также гидроизоляции, что не характерно для жилого помещения. Дело в том, что баня генерирует большое количество сточных вод, которые могут проникать в жилые помещения и портить их. Кроме того, плохо устроенная канализация может просто размыть фундамент здания. В связи с этим вам придётся дополнительно потратиться на создание хорошей дренажной и канализационной системы, а также на гидроизоляцию.
В бане создаются высокие температуры, которые могут сочетаться с повышенной влажностью. Моечная может выделять весьма неприятные запахи, которые могут разноситься по жилым комнатам.
Избавиться от них поможет только правильно выполненная мощная вентиляционная система. Естественно, что она будет стоить весьма приличных денег, поэтому эти расходы необходимо будет учесть ещё на стадии разработки.
Дизайн бани с жилыми помещениями также имеет свои особенности. Так, к примеру, обычно парилка не имеет окон, поэтому, если у вас будет построена двухэтажная баня, то первый этаж будет иметь всего лишь 1 окно – в предбаннике или моечной. Что касается отделки описываемого строения, то она может быть любой: керамическая плитка, сайдинг, металлопрофиль. При этом, если вы будете производить строительство из дерева, то вам вполне достаточно будет покрыть наружные стены лаком.
Баня 2 этажа с террасой. Преимущества проектов двухэтажных бань, особенности их составления
- компактность. Двухэтажная постройка дает возможность уместить все банные комнаты и жилые на небольшой территории, такой проект идеально подходит для участков с малой площадью;
- функциональность. Многие составляют проект двухэтажной бани-дома, объединяя в одном помещении жилую зону и зону отдыха. Не имеет смысла строить два отдельных здания, если можно сделать одно;
- экономичность. Баня со вторым этажом обойдется дешевле, чем возведение двух отдельных строений. Кроме того, при такой конструкции обогрев второго этажа сделать проще за счет горячего воздуха, поднимающегося вверх из парной.
В готовом двухэтажном доме-бане можно обустроить комнату отдыха, мастерскую, спальню и т. д. Здесь можно сделать террасу, зону барбекю, популярным является проект двухэтажных бань с бассейном.
Поскольку подобная планировка довольно компактна, на участке освобождается место, где можно оборудовать бассейн. Его можно сделать без крыши, расположить под навесом или вокруг него возвести стеклянную пристройку.
Особенно актуален бассейн в том случае, если рядом нет водоема. Приятно и полезно после посещения парной остудить тело, искупавшись в прохладной воде. Такая процедура закаляет, укрепляет организм, повышает иммунитет и благотворно сказывается на состоянии кожи.
Проекты двухэтажной бани с бассейном:
Учтите, что лучшие проекты двухэтажных бань – это готовые или составленные профессионалами. Если проект одноэтажного здания еще можно сделать самостоятельно, то двухэтажная постройка гораздо сложнее с технической точки зрения.
В проекте должны быть указаны все размеры помещений, дверные и оконные проемы. Заранее продумайте системы канализации и вентиляции.
Если вы планируете сделать на первом этаже печь для бани, а на второй камин, то для них нужно делать отдельные дымоходы.
Традиционным вариантом является баня с жилым вторым этажом, где на первом этаже располагаются непосредственно парная, моечная, комната отдыха, а на втором – спальные комнаты. Эта планировка считается наиболее удачной и удобной.
Хорошим выбором станет проект бани со вторым жилым этажом, дополненным балконом или даже небольшой террасой. Реализовать такой проект будет несложно, при этом будет невероятно приятно проводить вечер на уютном балконе, расслабляясь и наслаждаясь красотой природы.
Проекты бань со вторым жилым этажом невероятно разнообразны и дают возможность реализовать самые разные задумки. Можно сделать только основные помещения, и при этом они будут достаточно просторными. Можно добавить дополнительные комнаты, двух этажей хватит, чтобы дополнить баню кухней, санузлом и даже помещением для SPA. Если вы отдыхаете большой семьей или компанией, то хорошим вариантом будет разделение второго этажа на несколько жилых комнат с кроватями, где можно будет остаться на ночь.
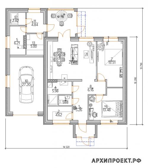
Проект одноэтажной бани с двумя спальнями. Одноэтажный дом с гаражом и баней №155 с террасой, с двумя спальнями

Одноэтажный дом с гаражом и баней — симпатичный проект дома с баней и гаражом. Простой и рациональный проект будет довольно выгодным с материальной точки зрения.

Главный фасад дома симметричен, слева находится гараж для одного автомобиля. Крыльцо дома имеет застекленную дверь спереди, двускатную крышу. На фронтоне имеется большое трапециевидное окно.
Одноэтажный дом с гаражом и баней — недорогой и экономичный

В гараже односкатная кровля, которая в задней части дома соединяется с односкатной кровлей террасой в двускатную.
Конструктив дома
- Фундамент дома — монолитная плита
- Пирог наружной стены — газобетон, облицовочный кирпич
- Перекрытия потолка — по деревянным балкам, или монолитное перекрытие
- Кровля — из металлочерепицы

На задний двор выходят окна спальни и гостиной, застекленная терраса и окно в раздевалке в бане. На фронтоне так же находится трапециевидное окно.
Планировка
Входя в дом через холодный тамбур можно попасть в холл дома. Слева дверь в гардероб, и два санузла. Справа по коридору остаются двери в спальни. Проходя прямо, можно попасть в гостиную-студию. В гостиной есть ТВ зона, зона столовой, готовки и небольшой камин. Из гостиной можно выйти на закрытую террасу. Из террасы можно пройти в раздевалку банного комплекса. Из раздевалки есть вход в душевую, парилку и в котельную дома.

