Дизайн проект бани с комнатой отдыха и террасой. Проектирование
- Дизайн проект бани с комнатой отдыха и террасой. Проектирование
- Проект бани с комнатой и террасой. Чем хороши бани с примыкающей террасой
- Проект бани с комнатой отдыха на втором этаже. Тонкости проектирования
- Небольшая баня с комнатой отдыха. Проект
- Баня с жилой комнатой и кухней. Плюсы и минусы планировки
Дизайн проект бани с комнатой отдыха и террасой. Проектирование
Чтобы при проектировании бани получить именно то, что вам нужно, необходимо иметь в виду следующее:
- на какое количество людей должен быть рассчитан моечный комплекс с открытой площадкой для отдыха;
- будет ли он использоваться только летом или также сможет эксплуатироваться зимой;
- какая планировка будет наиболее подходящей;
- из какого материала ее строить;
- какова допустимая цена строительства.

Если баней предстоит пользоваться только в теплое время, об утеплении предбанника можно особо не задумываться. Если баня эксплуатируется круглогодично, особенно важно становится расположение входа в нее.
Грамотная планировка позволяет сократить расходы на строительство. Так, если сделать удобную открытую площадку для барбекю, в которой легко размещается много людей, гостевая комната может и не понадобиться.

Иногда достаточно террасу пристроить к существующей бане, если она достаточно новая. Если же баня старой постройки, лучше расположить площадку для отдыха под крышей между строением для мытья и домом. Важно выбрать для нее место так, чтобы не нарушить существующую архитектурную и стилистическую идею.


Площадь бани может быть разной – от небольших размеров до внушительных, например, 6х4, 3 на 9 метров и так далее. На большом участке найдется место для сооружения размером 6 на 9 метров. Оно подходит для большой семьи и многочисленной компании. На таком пространстве запросто разместится не только парилка, моечная, но и кухня, санузел, комната отдыха, бильярдная и так далее. Баня при этом может быть двухэтажной. На втором этаже имеет смысл сделать просторную комнату для гостей . Терраса может быть оборудована печью, которая выглядит как камин.
Такой оздоровительный комплекс можно выполнить, например, из оцилиндрованного бревна. Возможны вариации планировки. Например, если устроить гостиную на первом этаже, отделив ее от террасы стеклянной стеной, в этой комнате будет всегда много света, а сама терраса сможет выглядеть больше. При изменении погоды гостям удобно будет перемещаться с открытой площадки в гостиную и обратно.
Некоторые проекты бань с мансардами предусматривают внешнюю лестницу на второй этаж со стороны террасы. Таким образом можно выиграть дополнительную площадь в самом доме . Хотя многие могут посчитать такое проектное решение спорным.


Баню иногда проще пристроить и к существующему дому, в том числе и с гаражом. В этом случае довольно будет пристройки 5х6 метров с террасой . Функционал жилья расширится, а в жару можно будет приятно проводить время на свежем воздухе в защищенном от солнца месте.
Можно взять на вооружение проект угловой бани с террасой. При таком подходе к планировке оно сможет занимать мало места на участке, оставаясь вместительным внутри. Такой проект будет особенно интересен, когда баньку размещают очень близко к жилому дому . Также существуют проекты угловых террас, которые есть смысл применить в таком случае.

Проект бани с комнатой и террасой. Чем хороши бани с примыкающей террасой
Посещение бани часто воспринимается в качестве одной из обязательных процедур при нахождении за городом. Эти сооружения помогают отдохнуть от городской суеты, снять стресс, получить энергетический заряд. Если в бане есть купель или небольшой бассейн, это значительно повысит положительный эффект для здоровья.

Баня может стоять отдельно или быть частью жилого строения.

Баня может быть частью жилого строения
Террасы, как правило, пристраиваются к одной из стен банной постройки, обычно там, где расположен вход в строение. У всего комплекса общий фундамент и единая кровельная конструкция.

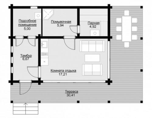
Проект бани с комнатой отдыха и террасой
Монтаж террасы позволяет использовать эту пристройку как отдельно, так и в сочетании с банными процедурами:
- на террасе можно прийти в себя после посещения парилки;
- есть возможность, при условии размещения соответствующего оборудования, приготовить пищу;
- за столом на террасе будет удобно провести время с семьей или друзьями за чашкой чая (в летние дни находиться на природе гораздо приятнее, нежели в душном помещении);
- в теплое время можно и не только отдохнуть, но поспать на открытом воздухе;
- красивая терраса одновременно служит и украшением бани.

Банно-гаражный комплекс
Пристройку можно установить у зданий, имеющих любые конфигурации. Она является отличной заменой отдельно стоящей беседке. Что важно — не приходится выделять для возведения обособленного строения участок земли. К тому же при помощи устройства террасы у бани можно без труда выдержать единый архитектурный стиль всей застройки.

Проект бани с комнатой отдыха на втором этаже. Тонкости проектирования
Проектировать баню самостоятельно – увлекательное занятие. Для этого надо запастись бумагой, карандашом и линейкой.
Для семьи из 4-5 человек и нескольких гостей оптимальным размером считается баня 6х6 метров с мансардой . На первом этаже размещается прихожая, парная, душевая с туалетом, комната отдыха или гостиная. Комнату для отдыха можно дополнить кухней, а второй этаж отводят под досуг и дополнительные места для размещения гостей или членов семьи. Входная зона второго этажа площадью 18 метров млжет быть занята под студию или бильярдную. За ней размещаются две симметричные спальни или комнаты для детей по 9 кв. метров.
Функционал бани значительно расширяется, и для этого не надо строить большой дом. Компактная планировка с санузлом удовлетворяет потребности среднестатистической семьи в загородном отдыхе.

С террасой
Баня с террасой – прекрасный вариант для летних трапез на свежем воздухе после банных процедур. Мангал для шашлыка можно разместить на площадке перед баней или ввести гриль-зону в пространство веранды. Для этого размер террасы должен быть увеличен так, чтобы обеспечить свободный доступ к жаровне и избежать задымленности обеденного стола и окон.
Минимальное расстояние между печкой и столом должно быть не меньше 2 метров. Жаровню ставят готовую металлическую или строят каменный мангал из кирпича с дымоходом. Для такого мангала возводят отдельный фундамент, который учитывают на стадии проектирования.

Пол террасы лучше сделать из тротуарной плитки или песчаника, если терраса открытая. Для застекленной террасы применяют и деревянный пол . Остекление выполняют из раздвижных алюминиевых или пластиковых рам. Пластиковые рамы используют для теплого остекления. Легкие алюминиевые конструкции защищают от непогоды, но температура внутри закрытого пространства будет только на пару градусов выше, чем снаружи.
Баня с мангалом и панорамным остеклением на веранде станет местом притяжения домочадцев после трудовой недели.
С бассейном
Польза банных процедур многократно увеличится при обустройстве бассейна или купели в комнате отдыха. Бассейн располагают недалеко от душевой.
Чаша бассейна выполняется из бетона и отделывается плиткой.
Плитка подбирается в тон общей отделке комнаты отдыха. Восточный колорит придаст цветочный орнамент и мозаика. Для бани в русском стиле подойдут камень, кирпич и деревянные бортики.
В одноэтажных банях часто проектируют комплекс из террасы с купелью под навесом. Купель изготавливают из дерева и располагают на деревянном помосте на свежем воздухе .
Небольшая баня с комнатой отдыха. Проект
Чтобы пребывание в комнате отдыха и парной приносило удовольствие и было комфортным, нужно хорошо продумать проект бани. Наличие комнаты для отдыха имеет большое количество плюсов. Если кому-то станет тяжело сидеть в парной, то можно спокойно отдохнуть в помещении с комфортной температурой воздуха.
Это отличное место не только для отдыха после парной, но и для посиделок с друзьями.

Большая баня с барбекю – это отличное решение для досуга компании. Такой проект подразумевает наличие не только всех необходимых помещений, но и вместительной веранды. Баня площадью 72 квадратных метров позволит вместить в себя большое количество людей. Верандой в этом случае можно пользоваться и как летней кухней.
Модными становятся строения с камином и верандой. Такая баня повысит статус своих владельцев. На территории бани обязательно должна быть зона для барбекю, каминная комната, вместительный холл и помывочная. Такая баня свободно может использоваться в качестве гостевого домика. За счет большой площади гостям и хозяевам будет комфортно пребывать в ней, не мешая другим.


Популярны бани из камня площадью в 40 квадратных метров. Строение имеет очень аккуратный и презентабельный вид. Благодаря кирпичным стенам такое здание убережет от ветра и дождя. Оно будет актуально и зимой, и летом. Летом терраса будет выполнять роль беседки, где можно комфортабельно расположиться всей семьей. Такой проект предполагает планировку бани с террасой, комнатой отдыха, парной и мойкой.


В бане из бруса размером 6 х 6 квадратных метров на втором этаже может располагаться балкон, который является дополнительным местом отдыха в теплое время года. Там же вполне может разместиться комната с бильярдным столом, большими диванами и телевизором.
Размеры бани 3х4 представляют собой недорогой вариант из дерева. Такие бани считаются традиционными. Эта одноэтажная баня вмещает в себя не только сауну, но и комнату отдыха с мягкой зоной и необходимой техникой.


Схема бани размером 6 на 3 метра из бруса отлично подойдет для ценителей русского стиля. Интересное строение с кухней, бассейном и террасой произведет на гостей незабываемое впечатление. План такого здания предусматривает наличие котельной с отдельным выходом.
Существует и одноэтажная дача, совмещенная с баней. Площадь такого сооружения обычно составляет 88 квадратных метров. Все помещения отделены друг от друга и расположены в виде цепочки.


Для хозяев большого дачного участка отличным выходом станет постройка бани с вынесенной площадкой для приготовления барбекю. Сооружение получится с большой террасой, гостиной, санузлом, кухней, бассейном, комнатой для хранения и, конечно же, парной.
На даче с большим участком можно добавить в проект бани некоторые дополнительные элементы. Кирпичная или из бруса баня может включать в себя дополнительную спальню. Верандой можно пользоваться и как зоной отдыха, и как местом приготовления еды в летний период. В проекте допустима пристройка для хранения различных приспособлений для бани.


Обустройство такой дачи – весьма затратный процесс. Но в итоге он себя обязательно окупит. Важно пристроить все необходимые помещения, продумать отопление и обогрев всего сооружения.
Какой бы проект ни был выбран, главное, чтобы он отвечал вкусам хозяев и умещался в их бюджет. Комната в зависимости от проекта может выступать местом отдыха после парной, а может являться полноценной гостиной или спальней.


Баня с жилой комнатой и кухней. Плюсы и минусы планировки
Все тонкости планировки стоит предусмотреть заранее, чтобы потом не возникало вопросов. Если на начальном этапе определиться, что баня будет с комнатой отдыха, то минусов у нее быть не должно, а плюсов сколько угодно. В бане всегда должны присутствовать парилка, моечная и предбанник. Все остальное уже зависит от площади, которая отведена под строительство здания. Плюсы тогда очевидны. Комната отдыха позволяет:
- полноценно отдохнуть после банных процедур;
- принять гостей и хорошо провести время;
- при необходимости комната отдыха в бане может временно послужить гостевой для задержавшихся друзей;
- в комнате можно хранить необходимые вещи для бани в специальном шкафчике;
- можно с помощью зонирования найти уголок, где можно приготовить несложные блюда.

Минусы планировки с комнатой отдыха могут возникнуть лишь от неправильно продуманного плана. Например, будет большим недостатком, если при входе в баню человек сразу попадает в комнату отдыха. Из-за этого тепло в помещении будет выветриваться быстрее, особенно в холодное время года, да и загрязняться это пространство будет быстрее. Поэтому все-таки нужен хотя бы небольшой предбанник.

Минусом может стать и слишком маленькая комната, но в этом случае нужно думать, какому помещению выделить больше места – парилке, моечной или комнате отдыха. Это зависит от того, сколько времени предстоит проводить в бане, сколько человек будет ею пользоваться одновременно.

Конечно, плюсами любой планировки станет, если к основным помещениям можно добавить не только комнату отдыха, но и отдельную кухню, спальни, бильярдную или, возможно, бассейн. Но все это зависит от возможностей хозяев участка.
