Разные типы задвижек: устройство и принцип работы
- Разные типы задвижек: устройство и принцип работы
- Связанные вопросы и ответы
- Какие основные типы задвижек существуют
- Конструкция
- Задвижка состоит из 3 основных частей.
- Рисунок 1. Конструкция
- На рисунке 1 представлены два типа задвижек:
- Отличие этих двух видов запорной арматуры заключается в следующем.
- Но кроме такого исполнения, выпускаются устройства, укомплектованные:
- Рисунок 2. Виды приводов
- Принцип работы
- Рисунок 3. Устройство затвора
- Материалы изготовления
- Стальные задвижки
- Рисунок 4. Затвор 30с41нж
- А вот из каких марок сталей изготавливаются остальные детали:
- Каково устройство шаровой задвижки
- В чем различие между задвижкой и вентильным клапаном
- Как работает дисковая задвижка
- Какие материалы используются для изготовления задвижек
- Какие преимущества у клиновой задвижки перед другими типами
- Как происходит герметизация в задвижках
- Какие задвижки лучше всего подходят для работы в агрессивных средах
Разные типы задвижек: устройство и принцип работы
Общий принцип действия задвижек основан на перекрывании потока жидкой или газообразной среду путем уменьшения проходного сечения трубопровода. По степени герметичности перекрытия задвижки делятся на классы А, В, C, D, B1, C1, D1, характеристики каждого класса регламентируются ГОСТ 9544-2005.
Конструктивно любая задвижка включает в себя корпус из чугуна или стали, крышку с рабочим запорным элементом и присоединительные патрубки, благодаря которым арматура подсоединяется к трубопроводной линии. В зависимости от способа присоединения выделяются следующие разновидности задвижек:
- Приварные. Патрубки выполнены в виде коротких труб, которые привариваются к основному трубопроводу. Соединение получается неразъемным, что создает сложности при демонтаже задвижки. Из-за этого приварной тип встречается относительно нечасто.
- Фланцевые . На концах присоединительных патрубков устанавливается диск с отверстиями – фланец. Фланцы соединяются между собой с помощью болтов или шпилек, резьбовое соединение затягивается гайками с шайбами или без них. Такое соединение при необходимости можно разобрать, при этом оно будет надежным и долговечным. При установке между фланцами устанавливается прокладка, она обеспечивает полную герметичность с защитой от утечки рабочей среды. Такое соединение стало наиболее распространенным.
- Муфтовые. Для соединения используется муфта. На обеспечивает герметичную фиксацию концов трубопроводной линии. Такое соединение имеет диаметр до 50 мм и встречается относительно редко.
Для изготовления корпуса задвижки могут использоваться не только сталь и чугун, но и латунь, и бронза. Цветные металлы и их сплавы не подвержены коррозии, поэтому арматура может работать очень долго.
Связанные вопросы и ответы:
Вопрос 1: Какие основные типы задвижек существуют и в чем их различия
Основные типы задвижек включают шаровые, клиновые, дисковые и конусные задвижки. Шаровые задвижки имеют поворотный шар с отверстием, который открывает или закрывает поток. Клиновые задвижки используют подвижный клин, который перемещается для перекрытия или пропуска жидкости. Дисковые задвижки оснащены поворотным диском, который вращается для регулирования потока. Конусные задвижки используют конусообразный затвор, который поднимается или опускается для управления потоком. Каждый тип задвижки имеет свои конструктивные особенности и применяется в зависимости от условий эксплуатации, таких как давление, температура и агрессивность среды.
Вопрос 2: Как работает шаровая задвижка и где она применяется
Шаровая задвижка работает за счет поворота шара с отверстием, который при вращении оси позволяет или препятствует прохождению жидкости или газа. Шар соединяется с ручкой или приводом, который обеспечивает поворот на 90 градусов. Шаровые задвижки применяются в различных системах, таких как водопровод, нефтепереработка и газовые сети, благодаря своей простоте, надежности и способности выдерживать высокие давления. Они особенно эффективны в условиях, где требуется быстрое открытие или закрытие потока.
Вопрос 3: В чем различие между задвижками с уплотнением "металл-металл" и "металл-пластик"
Задвижки с уплотнением "металл-металл" используют металлические поверхности для герметизации, что обеспечивает высокую прочность и устойчивость к абразивным и агрессивным средам. Они применяются в условиях высокого давления и температуры. Задвижки с уплотнением "металл-пластик" сочетают металлические и пластиковые элементы, что обеспечивает хорошую герметичность и снижает риск коррозии. Они чаще используются в системах с неагрессивными жидкостями и газами, где важна экономичность и легкость обслуживания.
Вопрос 4: Как устроена конусная задвижка и где она используется
Конусная задвижка состоит из корпуса, конусообразного затвора и управления. Затвор поднимается или опускается для регулирования потока жидкости или газа. Конусные задвижки применяются в системах с высоким давлением и температурой, таких как паровые и газовые трубы, благодаря своей прочности и способности выдерживать экстремальные условия. Они также используются в гидроэнергетических системах для управления потоком воды.
Вопрос 5: Как работают распределительные задвижки и в каких системах они применяются
Распределительные задвижки предназначены для распределения потока жидкости или газа в несколько направлений. Они имеют несколько каналов и могут переключать поток между ними. Эти задвижки управляются с помощью привода, который меняет положение затвора. Распределительные задвижки применяются в системах отопления, охлаждения и в промышленных процессах, где требуетсяflexible управление потоками. Они обеспечивают эффективное распределение ресурсов и минимизацию потерь.
Вопрос 6: Какие особенности тепловых задвижек, управляемых термодатчиками
Тепловые задвижки, управляемые термодатчиками, оснащены термодатчиками, которые реагируют на изменения температуры и автоматически открывают или закрывают задвижку. Эти задвижки используются в системах отопления и охлаждения для поддержания заданной температуры. Они обеспечивают автоматизацию процессов и повышают энергоэффективность. Тепловые задвижки особенно полезны в системах, где требуется точное регулирование температуры без вмешательства человека.
Вопрос 7: Какие преимущества электрических задвижек с приводом
Электрические задвижки с приводом управляются электрическим сигналом, что обеспечивает точное и быстрое управление потоком. Они могут интегрироваться в автоматизированные системы управления, что повышает эффективность и надежность эксплуатации. Электрические задвижки не требуют ручного вмешательства, что снижает затраты на обслуживание. Они также обеспечивают возможность дистанционного управления, что особенно важно в сложных и опасных условиях. Это делает их популярным выбором в современных промышленных системах.
Какие основные типы задвижек существуют
Для того, чтобы обеспечить технологические потребности всей трубопроводной отрасли, задвижки выпускаются с разными техническими характеристиками и разного назначения. Они различаются по:
- конструкции;
- типу привода;
- материалу изготовления;
- присоединительным размерам;
- типу присоединения;
- температурному режиму работы;
- виду транспортируемого вещества в трубе;
- климатическому исполнению;
- классу герметичности;
- конструкции клина;
- диаметру проходного отверстия;
- показателю максимального давления в системе;
- типу уплотнительных поверхностей затвора;
- типу уплотнений крышки и сальника.
Как видно из списка выше, задвижки имеют широкий диапазон характеристик. Чтобы упростить выбор изделия для конкретного производства со всеми его особенностями, установлен единый порядок маркировки устройств запорной арматуры. Он указан в документе СТ ЦКБА 036-2017.
Кроме того, заводы-изготовители дополнительно комплектуют задвижки информационными табличками, отражающими основные технические и эксплуатационные характеристики изделия. В следующих разделах обозначениям будет уделено достаточно внимания. Но сначала давайте познакомимся с конструкцией задвижки и ее принципом действия.
Конструкция
Задвижка состоит из 3 основных частей.
- Привод с приводным механизмом.
- Крышка с сальниковым узлом.
- Корпус с патрубками.
Рисунок 1. Конструкция
На рисунке 1 представлены два типа задвижек:
- с выдвижным;
- и невыдвижным шпинделем.
Отличие этих двух видов запорной арматуры заключается в следующем.
В первом варианте шпиндель, при подъеме затвора в положение «открыто», выдвигается вверх, обеспечивая требуемый ход клина. Такое исполнение имеет как преимущества, так и недостатки.
Плюсом является тот факт, что шпиндель не контактирует с рабочей средой, а значит, не подвержен коррозии.
Но за счет увеличенной строительной высоты, такая задвижка подойдет далеко не для всех условий монтажа.
Второй вариант лишен недостатка выдвижного шпинделя. Эту задвижку можно устанавливать в стесненных условиях. Но здесь шпиндель расположен внутри корпуса, а значит, в процессе работы на него будет воздействовать рабочая среда.
На рисунке 1 представлены конструкции задвижек с ручным приводом.
Но кроме такого исполнения, выпускаются устройства, укомплектованные:
- механическим редуктором;
- электроприводом;
- пневмоприводом;
- гидроприводом.
Рисунок 2. Виды приводов
Самыми востребованными являются задвижки с ручным, механическим и электроприводом. Это объясняется тем, что такие устройства – самые надежные и долговечные в эксплуатации. Использование пневмо- и гидропривода происходит очень редко, так как обслуживание резервуаров с жидкостью или воздухом под давлением требует дополнительных затрат.
Принцип работы
Рассмотрим принцип работы задвижки с выдвижным шпинделем.
Для того, чтобы перевести затвор в одно из крайних положений (открыто/закрыто), надо поворачивать штурвал по или против часовой стрелки. Вращение передается на приводную гайку, расположенную в центре маховика.
За счет резьбового соединения гайки со шпинделем, последний совершает вращательно-поступательное движение, увлекая за собой затвор. Клин и шпиндель соединены между собой т-образным соединением типа «шип-паз». По достижению затвора одного из крайних положений, ход штурвала резко затрудняется, сигнализируя о полном цикле работы.
Задвижки с невыдвижным шпинделем работают иначе. Из названия уже понятно, что шпиндель здесь не двигается вверх/вниз, а совершает только вращение вокруг своей оси. Приводная гайка в таком устройстве располагается непосредственно в клине, закрепленном с ней аналогичным т-образным соединением.
При вращении штурвала, движение передается от шпинделя к гайке. Она (гайка), наворачивается на ось шпинделя, увлекая за собой затвор. Для того, чтобы шпинделю было «куда деться», в клине образовано отверстие.
Рисунок 3. Устройство затвора
Задвижки с невыдвижным шпинделем имеют ограниченную область использования. Их применяют в трубопроводах, по которым транспортируют светлые нефтепродукты, масла, а также воду с низким содержанием солей щелочноземельных металлов кальция и магния (мягкая вода).
Материалы изготовления
Для сравнения рассмотрим 2 популярные задвижки марок 30с41нж и 30ч39р.
Стальные задвижки
Корпус 30с41нж выполнен из стали, о чем говорит буква «с» в маркировке. Приставка «нж» на конце означает, что уплотнительные поверхности дисков клина и седел корпуса изготовлены из нержавейки.
Рисунок 4. Затвор 30с41нж
А вот из каких марок сталей изготавливаются остальные детали:
- Крышка и корпус 30с41нж отливаются из 25Л. Литера «Л» в марке обозначает, что это сталь литейная, а числовое значение «25» указывает на содержание в сплаве 0,25% углерода.
- Шпиндель изготавливается из 20Х13. В составе этой стали присутствует 14% хрома, что позволяет отнести этот сплав к коррозионностойким (нержавейка). 20Х13 относится к мартенситному классу с температурным режимом работы до 6000С.
Каково устройство шаровой задвижки
Задвижка и вентиль – это два разных типа запорной арматуры, использующихся для управления движением рабочей среды в системах трубопроводов. В чем разница между задвижкой и вентилем:
- Конструкция. Задвижка обычно имеет плоское или коническое затворное устройство, двигающееся вдоль оси трубы для управления потоком (блокировка или пропускание). У вентиля же оно вращающееся или подвижное.
- Управление потоком. Задвижка предназначена главным образом для регулирования полной или частичной пропускной способности. У вентилей же есть разные конструкции, позволяющие контролировать рабочее вещество, регулировать его скорость или выполнить другие специфические функции. Например, предотвратить обратный поток.
- Типы затворов. В задвижках используется прямой или угловой затвор, перемещающийся вперед или назад внутри корпуса. У вентилей различные типы данных элементов. Например, шаровые, клиновые, пластинчатые или дисковые.
Работа среды. Задвижки часто используются для обработки жидкостей или сред с низким давлением. Вентили усеют работать с различными типами веществ, включая газы, пары, продукты с высоким давлением. - Применение. Задвижки, благодаря простоте конструкции и надежности, нашли применение в системах водоснабжения и канализации, а также в других промышленных системах. Вентили, благодаря своим широким функциям, получили распространение в различных отраслях. Например, нефтегазовой, химической и энергетической промышленности.
В чем различие между задвижкой и вентильным клапаном
Задвижки и дисковые затворы являются наиболее распространенными разновидностями промышленной трубопроводной арматуры. При этом они имеют целый ряд конструктивных отличий друг от друга, напрямую определяющих их достоинства и недостатки, сферы и условия применения.
Основным рабочим органом затвора является расположенный перпендикулярно потоку среды диск . Он жестко закрепляется на оси, которая в данном случае выступает в качестве штока, то есть служит для изменения положения запорного элемента. Полностью открытому положению затвора соответствует размещение диска вдоль оси корпуса арматуры. При полном закрытии он по всему периметру прилегает к седлу, тем самым перекрывая сечение. Таким образом, для полного закрытия или открытия затвора достаточно повернуть шток на 90 градусов.
Основной рабочий орган задвижки – шибер, клин или диск – перемещается перпендикулярно потоку среды между расположенными параллельно уплотнительными поверхностями . При этом в полностью открытом положении он находится вне проходного отверстия. Перемещение запирающего элемента осуществляется путем вращения выдвижного или невыдвижного шпинделя, который может приводиться в действие вручную при помощи штурвала, в том числе через редуктор, или автоматически –многооборотным электроприводом, гидроприводом или пневмоприводом.
Преимущества и недостатки задвижек и затворов
Основные преимущества дисковых затворов:
- небольшое гидравлическое сопротивление;
- малое время открытия и закрытия;
- простота конструкции, монтажа и обслуживания;
- небольшая строительная длина и высота;
- сравнительно небольшие габариты и масса.
К числу главных недостатков затвора относятся необходимость приложения значительных усилий для перемещения при сильном напоре и большом диаметре трубопровода, невысокая герметичность в закрытом положении, повышенный износ запирающего элемента, постоянно находящегося внутри потока, а также уплотнений, при частом закрытии и открытии. Первая проблема решается путем установки редукторов и приводных механизмов. Повышения ресурса уплотнительных поверхностей и герметичности позволяет добиться применение эксцентриковых затворов.
Основные преимущества задвижек:
- минимальное гидравлическое сопротивление в открытом положении;
- достаточно высокая герметичность;
- небольшая строительная длина;
- возможность перекрытия потока вязких и загрязненных сред;
- подходят для установки на трубопроводах с меняющимся направлением потока;
- высокая сейсмостойкость;
- незначительный износ уплотнительных поверхностей даже при частой смене положения запирающего элемента.
Главными недостатками задвижек являются обусловленная особенностями конструкции значительная монтажная высота и масса арматуры, а также невысокая скорость срабатывания, даже при условии использования исполнительных механизмов. Задвижки сложнее и дороже затворов с точки зрения монтажа, обслуживания и ремонта.
Сферы применения затворов и задвижек
Дисковые затворы устанавливаются в качестве запорной (реже запорно-регулирующей) арматуры на трубопроводах, предназначенных для транспортировки чистых сред. Они активно применяются в системах теплоснабжения и горячего водоснабжения в коммунальном хозяйстве, в пищевой промышленности и других сферах, когда не предъявляются повышенные требования к герметичности. Трубопроводную арматуру этого типа целесообразно устанавливать на трубопроводах большого диаметра.
Задвижки, в отличие от затворов, менее критичны к чистоте среды, давлению и температуре, при этом способны обеспечить высокую герметичность и применимы для регулирования. Их используют в системах водоснабжения и водоотведения, нефтяной и химической промышленности, когда не критичны скорость срабатывания и значительные размеры оборудования. Их целесообразно устанавливать в районах с повышенной сейсмической активностью.
Как работает дисковая задвижка
Задвижка - это элемент трубопроводной запорной арматуры , который широко применяется в трубопроводных системах. Каждая задвижка имеет запорный элемент, который перемещается перпендикулярно оси потока рабочей среды. При опускании запорного элемента поток рабочей среды перекрывается - положение «закрыто». При поднимании затвора поток рабочей среды перемещается без помех по трубопроводу - положение «открыто». Задвижки, как элемент трубопроводной запорной арматуры, до сих пор являются наиболее популярными в различных трубопроводных системах, таких как:
- нефтепроводы,
- газопроводы,
- системы водоснабжения, канализации и пожаротушения,
- системы химической и пищевой промышленности

Популярность использования задвижек на трубопроводных магистралях объясняется следующими факторами:
- простая конструкция;
- небольшая строительная длина;
- малое гидравлическое сопротивление.
Кроме того, задвижки отличаются большим диапазоном диаметров и небольшой стоимостью.
Для изготовления задвижек используют такие материалы как: сталь, чугун и алюминий. Задвижки из этих материалов имеют похожую конструкцию, но сам материал, из которого изготовлена задвижка определяет возможности эксплуатации, физико-механические свойства и самое главное - область применения задвижки.

Чугунные задвижки: технические характеристики и особенности
Чугунные задвижки применяются в трубопроводных системах, которые работают при небольших динамических нагрузках и малых температурах. Чугунная арматура применяется для перекрытия транспортируемой по трубопроводу среднеагрессивной и неагрессивной рабочей среды. Область применения чугунных задвижек - это в основном системы трубопроводов горячей и холодной воды, канализации. Для дополнительной антикоррозийной защиты задвижек на корпус наносится специальное эпоксидное покрытие.
Чугунные задвижки изготавливают из следующих видов чугуна:
- серый (СЧ) - представляет собой сплав железа с углеродом с волокнистыми включениями графита. Серый чугун обладает хорошими литейными свойствами;
- ковкий (КЧ) - обладает мягкостью, хрупкостью, пластичностью, стойкостью к химическому растрескиванию металла;
- высокопрочный (ВЧ) - отличается износостойкостью, повышенными механическими свойствами по сравнению с другими видами чугуна. В состав высокопрочного чугуна входят графитовые включения сфероидальной формы;
- белый чугун — применяется как основа для изготовления ковкого чугуна.
Корпуса чугунных задвижек изготавливаются при помощи метода литья. Данный способ создает "матовую” текстуру стенок. С чугунной арматурой нельзя использовать сварку, чугун не поддается действию автогена. Присоединение задвижки к трубопроводу происходит при помощи фланцев. Между фланцами устанавливают прокладку, которая увеличивает прижимную силу и устраняет протечки рабочей среды в местах присоединения чугунных задвижек к трубе. Ещё используется муфтовый способ присоединения чугунной арматуры. Запорная чугунная арматура применяется на трубопроводных системах с вязкой рабочей средой.
Одним из свойств чугунной задвижки является хрупкость материала, из которого она изготовлена.
Это свойство и накладывает определенные ограничения на область применения чугунной запорной арматуры:
- рабочее давление: до 16 кгс/см² (1,6 Мпа);
- температура транспортируемой рабочей среды: не более +225⁰C.

Стальные задвижки: технические характеристики и особенности
Задвижки из стали устанавливаются на трубопроводы и эксплуатируются в гораздо более суровом и резком климате, чем чугунные. Стальные задвижки очень устойчивы к воздействию на них агрессивных и высоко агрессивных рабочих сред, транспортируемых по трубопроводу. Они обладают большей прочностью, так же гораздо легче поддаются механической обработке. Также в зависимости от марки стали характеризуются морозоустойчивостью, жаропрочностью и жаростойкостью. Стальные задвижки изготавливают из следующих марок стали:
- ст. 20 - сталь улучшенной прочности, используется для работы с паром критической температуры, обладает повышенной твердостью;
- 09Г2С ‒ марка стали, которая позволяет эксплуатировать арматуру в холодных и умеренно-холодных климатических условиях, устойчива к заморозкам, не подвержена температурным деформациям;
- 12х18н10т ‒ коррозионностойкая сталь (нержавейка), выдерживает температуру агрессивных сред до +350⁰C;
- 20юч ‒ используется при транспортировке высокоагрессивных, опасных и токсичных рабочих сред.


Источник: https://postroivsesam.info/novosti/zadvizhka-vse-chto-nuzhno-znat-o-raznyh-tipah-i-ih-primenenii
Какие материалы используются для изготовления задвижек
Задвижка - это элемент трубопроводной запорной арматуры, который широко применяется в трубопроводных системах. Каждая задвижка имеет запорный элемент, который перемещается перпендикулярно оси потока рабочей среды. При опускании запорного элемента поток рабочей среды перекрывается - положение «закрыто». При поднимании затвора поток рабочей среды перемещается без помех по трубопроводу - положение «открыто». Задвижки, как элемент трубопроводной запорной арматуры, до сих пор являются наиболее популярными в различных трубопроводных системах, таких как:
- нефтепроводы,
- газопроводы,
- системы водоснабжения, канализации и пожаротушения,
- системы химической и пищевой промышленности и многих других.
Задвижки для трубопроводов различаются по множеству параметров.Основными параметрами, по которым различают задвижки являются:
- материал корпуса;
- тип шпинделя;
- конструктивное исполнение затвора;
- тип уплотнительных материалов затвора;
- тип привода;
- способу присоединения к трубопроводу.
По типу исполнения затвора задвижки бывают: с клиновым затвором, с клиновым двухдисковым (параллельным) затвором, с шиберным затвором.
Рассмотрим устройство и принцип работы запорного элемента клиновой и шиберной задвижки.
Клиновые задвижки
Каждый тип затвора, применяемый в задвижках, имеет свои достоинства и недостатки.
Клиновые задвижки отличаются наличием затвора клиновидной формы, расположенным между двумя наклоненными поверхностями. Принцип действия основывается на перекрытии потока рабочей среды клином, перемещающимся перпендикулярно направления потока.
Клиновые задвижки различаются по жесткости клинового затвора. Клин бывает жесткий, обрезиненный, двухсторонний, упругий.
Задвижки с жестким клином отличаются простотой конструкции, жесткостью, надежностью и герметичностью. Клин задвижки шарнирно установлен на шпиндель в верхней части крышки и спускается по корпусным направляющим. Основные недостатки задвижки такого типа — возможные заклинивания из-за температурных перепадов, износ уплотнительных колец и довольно сложный ремонт.
Задвижки с двухдисковым клином подразумевает наличие двух дисков, соединенных между собой разжимной деталью. Такая конструкция позволяет дискам самостоятельно выравниваться при примыкании к седлам, исключая возможность заклинивая и обеспечивая высокую герметичность затвора.
У таких изделий более сложная конструкция, но и более длительный срок эксплуатации. Седельные поверхности меньше изнашиваются, а для перекрытия прохода не требуется применять больших усилий. Такие задвижки оснащаются выдвижным шпинделем, могут иметь кольцевые уплотнения на дисках для повышенной герметизации проходного отверстия.
Задвижки с упругим клином представляют из себя разновидность изделий с двухдисковым клином. В таких задвижках привод затвора разделен на две части, между которыми размещен пружинящий элемент, способный деформироваться. При применении данной конструкции уплотнительные элементы могут передвигаться под углом друг к другу, обеспечивая лучший контакт с седлом. Применение в задвижках упругого клина исключает заклинивание при перепадах температур, но поверхности клина сильно стираются.
Шиберные задвижки
У шиберных задвижек в качестве запорного элемента выступает шибер.
Шибер – это в основном металлическая пластина, то есть заслонка, которая движется по направляющим и перекрывает поток рабочей среды.
Принцип работы шибера - это перпендикулярное перемещение потоку, открывая или закрывая проходное сечение.
Шиберный механизм герметично перекрывает (словно разрезает) проходное сечение за счет давления на его поверхность рабочей среды. Другими словами, шибер представляет собой заточенную пластину из прочной стали, которую можно перемещать, перекрывая полностью или частично поток рабочей среды.
Механизм шиберных задвижек таков, что они способны перекрывать поток рабочей среды и при этом измельчать или останавливать твердые и крупные частицы.
Поэтому, шиберные задвижки так же применяют для управления и перекрытия потока среды, которая имеет тяжелую и вязкую консистенцию. Шиберные задвижки легко обслуживать и ремонтировать.
С большим успехом шиберные задвижки применяются в коммунальном хозяйстве, в химической промышленности, в нефтегазодобывающей промышленности, а также в других сферах, таких как - горнодобывающая промышленность, электроэнергетика, пищевая, целлюлозно-бумажная, деревообрабатывающая, металлургическая, текстильная, в сельском хозяйстве, на очистных сооружениях и во многих других.

Какие преимущества у клиновой задвижки перед другими типами
Наверное, не нужно лишний раз говорить об опасности сероводорода и других агрессивных сред для трубопроводной арматуры. Главный вопрос — как с ним бороться? Исполнительный директор ООО «УЗСА» Александр Романцов считает, что при выборе средств коррозионной защиты нужно обратить внимание на следующие факторы:
- особенности коррозионной среды;
- условия работы трубопроводной арматуры (ТПА);
- конструктивные особенности узлов ТПА;
- возможность использования ингибиторов коррозии в рабочей среде;
- распространённость коррозионно-стойких сплавов на рынке.
Определившись с этими вопросами, можно перейти непосредственно к выбору метода защиты металла арматуры. Сегодня наиболее распространено использование специальных коррозионно-стойких сплавов. По словам Александра Романцова, этот способ может обеспечить сохранение работоспособности узлов арматуры на протяжении максимально долгого времени. К тому же в этом сценарии не нужно вкладываться в дополнительные средства защиты, а детали сохраняют коррозионную стойкость даже при абразивном износе. Однако есть и свои ограничения.
«В первую очередь это дороговизна. При этом важен строгий контроль качества используемых материалов. Наконец, нужный сплав не всегда можно найти на российском рынке», — отметил Александр Романцов.
Ситуация с доступностью отдельных марок стали сильно ухудшилась из-за санкций.
«Наиболее пострадавший сегмент — те производства, где нужна сталь карбамидного класса. Сейчас её найти можно только в КНР. Чаще всего китайские компании являются производителями и поставщиками данной арматуры на российском рынке. То есть для отечественного производителя и после ухода западных брендов этот сегмент не стал более доступным», — констатировал коммерческий директор ООО «Энергоресурс» Герасим Яковлев.
А что же российская металлургия? Стоит ли в ближайшие годы ждать сплавы для арматуры отечественного производства? Герасим Яковлев не видит предпосылок к прорыву на этом рынке.
«У нас складывается ощущение, что российские металлургические компании в большей степени ориентированы на рынок труб. Здесь идут разработки вместе с крупными заказчиками, такими как „Газпром нефть” и „Лукойл”. Их потребности очень высокие, поэтому металлурги готовы для них разрабатывать новые сорта стали. В основном это связано с повышением класса прочности для уменьшения толщины труб. Для арматуры это сейчас не имеет значения. То есть доступ к хорошей стали у арматурщиков скорее усложнился, чем вышел на какой‑то новый качественно лучший уровень», — прокомментировал ситуацию коммерческий директор ООО «Энергоресурс».

Как происходит герметизация в задвижках
Для проверки прочности корпуса и иных деталей арматуры и герметичности запорного органа, сальниковой набивки и других уплотнений проводят гидравлические испытания. Арматуру для систем отопления, холодного и горячего водоснабжения испытывают гидравлическим давлением 1 МПа в течение 120 с или пневматическим 0,15 МПа в течение 30 с; при этом не допускается падения давления.
При испытании на прочность арматуру закрепляют в приспособлении с помощью маховика и диска, которые прижимают арматуру к фланцу. Затем открывают кран и через трубопровод заполняют испытуемую арматуру водой. После того как из крана потечет вода, его закрывают и в трубопроводе, и в корпусе арматуры, соединенном с гидравлическим прессом, поднимают давление до заданного уровня, поддерживая его 120 с. В это время арматуру осматривают и выявляют дефекты. После ее осмотра открывают кран и снижают давление до атмосферного.
Для того чтобы проверить герметичность запорного крана, его закрывают и поднимают давление в нижней части корпуса до заданного уровня. Если вода не потечет из крана, то это означает, что запорный орган герметичный.
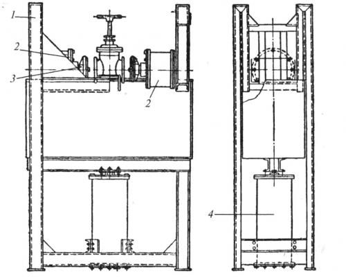
Задвижки диаметром от 2 до 6" испытывают в механизированной ванне (рисунок ниже). Зажим задвижек и подъем ванны с водой в зону испытания производят пневматическими цилиндрами. В ванне можно испытывать корпус и сальниковое уплотнение задвижек на плотность и герметичность.
Ванна для испытания задвижек на герметичность

Ванна состоит из следующих основных частей: рамы 1 с направляющими, по которым перемещается ванна с водой; пневмоцилиндра 4 для подъема ванны (он крепится к нижней части рамы); двух горизонтальных пневматических цилиндров 2, закрывающих входное и выходное отверстие задвижек; воздухопроводов с кранами управления. Для испытания задвижки на герметичность ее устанавливают на призму 3 и открывают кран управления горизонтальными цилиндрами 2. При этом цилиндры плотно закрывают фланцы задвижки. После этого открывают кран подачи воздуха в полость задвижки и кран цилиндра для подъема ванны. Ванна поднимается, и задвижка оказывается полностью погруженной в воду. В случае неплотности корпуса или сальникового уплотнения воздух в виде пузырьков поступает в воду, указывая место неплотности.
Какие задвижки лучше всего подходят для работы в агрессивных средах
Выбор задвижки — это ответственный процесс, от которого зависит надежность и безопасность всей системы. ️ При выборе задвижки необходимо учитывать несколько важных факторов:
- Рабочая среда: Какая среда будет проходить через задвижку? Это может быть вода, пар, газ, нефтепродукты или другие вещества. От этого зависит выбор материала корпуса и уплотнительных элементов задвижки.
- Номинальное давление: Какое максимальное давление будет действовать на задвижку? Задвижки выпускаются с различным номинальным давлением, которое указывается в паспорте изделия. Важно, чтобы выбранная задвижка могла выдерживать рабочее давление в системе.
- Диапазон температур: В каком диапазоне температур будет работать задвижка? ️ Задвижки из разных материалов имеют разные температурные ограничения. Необходимо выбирать задвижку, которая способна работать в заданном диапазоне температур без потери своих свойств.
- Герметичность: Насколько важна герметичность задвижки? Для некоторых систем, например, газопроводов, герметичность является критически важным параметром. В таких случаях необходимо выбирать задвижки с особыми уплотнительными элементами, обеспечивающими максимальную герметичность.
- Пропускная способность: Какое количество рабочей среды должна пропускать задвижка? Пропускная способность зависит от диаметра условного прохода задвижки. Необходимо выбирать задвижку с достаточной пропускной способностью для обеспечения нормальной работы системы.
- Метод присоединения к трубопроводу: Как задвижка будет соединяться с трубопроводом? Задвижки могут иметь фланцевое, муфтовое или сварное соединение. Выбор метода присоединения зависит от конструкции трубопровода и требований к монтажу.
- Габаритные размеры и условный проход: Важно, чтобы задвижка подходила по размерам к трубопроводу. Условный проход — это диаметр условного прохода задвижки, который должен соответствовать диаметру трубы.
- Способ присоединения: Как будет управляться задвижка? ⚙️ Задвижки могут иметь ручное управление (с помощью маховика), механический редуктор, гидропривод, пневмопривод или электропривод. Выбор способа управления зависит от условий эксплуатации и требований к автоматизации системы.