Строительство дачного туалета душ и кладовки своими руками: руководство для начинающих
- Строительство дачного туалета душ и кладовки своими руками: руководство для начинающих
- Связанные вопросы и ответы
- Что такое дачный туалет душ
- Какие материалы необходимы для строительства дачного туалета душ
- Как правильно рассчитать размеры дачного туалета душ
- Что такое кладовка и для чего она нужна на даче
- Какие материалы необходимы для строительства кладовки
- Как правильно рассчитать размеры кладовки
- Можно ли построить дачный туалет душ и кладовку своими руками без опыта
Строительство дачного туалета душ и кладовки своими руками: руководство для начинающих
Заголовок 1: Введение
В наши дни, когда стоимость услуг строительства растет, многие люди предпочитают строить свои дома и иные постройки своими руками. В этой статье мы расскажем о том, как построить дачный туалет душ и кладовку своими руками.
Заголовок 2: Выбор места
Перед тем, как начать строительство, важно выбрать подходящее место для дачного туалета душ и кладовки. Лучше всего выбрать место, которое находится на расстоянии от дома и других построек. Также следует учитывать удобство доступа к постройке и уровень освещенности.
Выбор места
Перед тем, как начать строительство, важно выбрать подходящее место для дачного туалета душ и кладовки.
Лучше всего выбрать место, которое находится на расстоянии от дома и других построек.
Также следует учитывать удобство доступа к постройке и уровень освещенности.
Важно, чтобы место было доступно для регулярной уборки и содержания, а также для обеспечения безопасности.
Кроме того, место должно быть защищено от внешних факторов, таких как ветер, солнечный свет и дождь.
Выбор правильного места для дачного туалета душ и кладовки – это важный шаг к успешному строительству.
Заголовок 3: Подготовка площадки
Перед тем, как начать строительство, необходимо подготовить площадку. Выровняйте площадку и удалите все растительность. Если площадка находится на склоне, то необходимо устроить дренажную систему.
Заголовок 4: Строительство фундамента
Фундамент является важным элементом любой постройки. Для дачного туалета душ и кладовки можно использовать бетонный фундамент или фундамент из камня. При строительстве фундамента необходимо учитывать размеры постройки и ее вес.
Заголовок 5: Монтаж стен
После того, как фундамент готов, можно начать монтаж стен. Для дачного туалета душ и кладовки можно использовать бетонные блоки или кирпич. При монтаже стен необходимо учитывать толщину стен и расстояние между ними.
Заголовок 6: Монтаж потолка
После того, как стены установлены, можно начать монтаж потолка. Для дачного туалета душ и кладовки можно использовать бетонные плиты или деревянные балки. При монтаже потолка необходимо учитывать его толщину и расстояние от стен.
Заголовок 7: Монтаж дверей и окон
После того, как стены и потолок установлены, можно начать монтаж дверей и окон. Для дачного туалета душ и кладовки можно использовать деревянные или металлические двери и оконные рамы. При монтаже дверей и окон необходимо учитывать их размеры и расположение.
Заголовок 8: Монтаж оборудования
После того, как постройка готова, можно начать монтаж оборудования. Для дачного туалета душ необходимо установить душ, умывальник и туалетную кабину. Для кладовой можно установить полки и шкафы. При монтаже оборудования необходимо учитывать его размеры и расположение.
Заголовок 9: Выбор материалов
При строительстве дачного туалета душ и кладовой важно выбрать качественные материалы. Для стен можно использовать бетонные блоки или кирпич. Для потолка можно использовать бетонные плиты или деревянные балки. Для дверей и окон можно использовать дерево или металл.
Заголовок 10: Заключение
Строительство дачного туалета душ и кладовой своими руками может быть непростой задачей, но в итоге это стоит того. При строительстве необходимо учитывать все детали и выбирать качественные материалы. С помощью этого руководства вы сможете успешно построить дачный туалет душ и кладовую своими руками.
Связанные вопросы и ответы:
Вопрос 1: Что такое дачный туалет душ
Дачный туалет душ - это тип туалета, который обычно используется на даче или в открытом воздухе. Он представляет собой небольшой домик, который может быть построен из различных материалов, таких как дерево, бетон или металл. Внутри туалета обычно есть душ, который позволяет очиститься после использования туалета.
Вопрос 2: Какие материалы можно использовать для строительства дачного туалета душ
Для строительства дачного туалета душ можно использовать различные материалы, такие как дерево, бетон, металл или пластик. Деревянные туалеты душ обычно более эстетичны и гармонично вписываются в природную среду, однако они требуют большего ухода и поддержания в хорошем состоянии. Бетонные туалеты душ более прочные и долговечные, но они могут быть более дорогими в строительстве. Металлические туалеты душ также прочные, но они могут быть холодными и не очень комфортными. Пластиковые туалеты душ легкие и удобные, но они могут быть менее прочными и долговечными.
Вопрос 3: Как построить дачный туалет душ своими руками
Чтобы построить дачный туалет душ своими руками, необходимо выбрать подходящий участок для строительства, собрать необходимые материалы и инструменты, а также составить план строительства. Затем необходимо выровнять площадку, выкопать яму для туалета и установить основание. После этого можно начать строительство самого туалета душ, используя выбранный материал. Внутри туалета необходимо установить душ и удобную ванну или какую-либо другую систему для очистки.
Вопрос 4: Что такое кладовка
Кладовка - это место для хранения различных предметов, таких как одежда, обувь, продукты питания, инструменты и т.д. Кладовка может быть как отдельным помещением, так и частью другого помещения, такого как гараж, подвал или даже туалет. Кладовка обычно оборудуется полками, шкафами, ящиками и другими средствами для упорядоченного хранения вещей.
Вопрос 5: Как построить кладочку своими руками
Чтобы построить кладочку своими руками, необходимо выбрать подходящий участок для строительства, собрать необходимые материалы и инструменты, а также составить план строительства. Затем необходимо выровнять площадку, выкопать яму для фундамента и установить основание. После этого можно начать строительство самой кладочки, используя выбранный материал. Внутри кладочки необходимо установить полки, шкафы и другие средства для хранения вещей.
Вопрос 6: Какие материалы можно использовать для строительства кладочки
Для строительства кладочки можно использовать различные материалы, такие как дерево, бетон, металл или пластик. Деревянные кладочки обычно более эстетичны и гармонично вписываются в природную среду, однако они требуют большего ухода и поддержания в хорошем состоянии. Бетонные кладочки более прочные и долговечные, но они могут быть более дорогими в строительстве. Металлические кладочки также прочные, но они могут быть холодными и не очень комфортными. Пластиковые кладочки легкие и удобные, но они могут быть менее прочными и долговечными.
Вопрос 7: Как организовать удобное хранения вещей в кладочке
Чтобы организовать удобное хранения вещей в кладочке, необходимо разделить ее на зоны для хранения различных предметов. Например, можно выделить отдельную зону для хранения одежды, обуви, продуктов питания, инструментов и т.д. Внутри каждой зоны необходимо установить полки, шкафы и другие средства для упорядоченного хранения вещей. Также можно использовать различные контейнеры, ящики и мешки для упаковки и хранения вещей. Важно также следить за чистотой и порядком в кладочке, чтобы все вещи были легко доступны и находились в хорошем состоянии.
Что такое дачный туалет душ
Для тех загородных участков, где отсутствует система централизованного водоснабжения и канализации (чаще всего так и бывает), вопрос обустройства приобретает особое значение. Во многих случаях оптимальным (и потому самым популярным) вариантом для дачного участка, предлагаемым производителями, служит хозблок. Такое сооружение является многосекционной конструкцией и совмещает под одной крышей хозяйственное помещение (дровник, кладовку), душ с раздевалкой и дачный туалет.
Профессиональные строительные компании значительно облегчают жизнь дачника, предлагая разнообразные модели совмещенных сооружений. Заказчик может приобрести только комплект и собрать постройку самостоятельно, или заказать сборку под ключ. Последний вариант предпочтителен по нескольким причинам:
- Проекты разрабатываются с учетом современных технологий и стройматериалов. Такой подход делает использование постройки максимально комфортным.
- Компании предлагают раз нообразные проекты, размеры которых легко изменить согласно пожеланиям будущего хозяина. Вы можете поменять местами расположение секций, заказать базовый проект или утепленный вариант, подходящий для использования в холодную и сырую погоду.
- Популярностью пользуются изделия из двух секций — хозблок с душем или туалетом, а также три в одном — хозблок с туалетом и душем, снабженным раздевалкой.
- Заказ под ключ означает выполнение всего комплекса работ. Заказчик получит полноценный санузел, если закажет постройку с электричеством, вентиляцией, водопроводом и канализацией.
- Туалет и душ для дачи поставляются в разобранном виде , что облегчает доставку на место строительства.
- Опытные строители осуществляют монтаж в выбранном месте садового участка , при этом строительная техника и манипулятор не применяются.
- Сборка хозблока осуществляется в один день с доставкой .
- Предоставляется гарантия на все выполненные работы.
Дачный туалет и душ: выбор материала и особенности деревянных моделей
При выборе проекта особое значение придается материалу, поскольку именно он задает параметры будущей конструкции. Наибольшим спросом пользуются деревянные постройки. Это объясняется просто — дерево стоит сравнительна недорого и славится хорошей теплоизоляцией, а деревянные стены приятны на вид. Такие постройки обладают несколькими особенностями:
- В качестве основания используется фундамент на блоках или винтовых сваях .
- В качестве каркаса используется брус 50х50 (или близких значений).
Какие материалы необходимы для строительства дачного туалета душ
Туалет на даче лучше всего делать из доступных, прочных и легко ремонтируемых материалов. Чаще всего это дерево. Но при желании возвести дачный туалет можно из камня или даже сделать полностью монолитную постройку. Вопрос не только в бюджете, а также в целесообразности. Поэтому важно решить:
- на какое время возводится дачный туалет. Будет ли это времянка или вариант постоянного гостевого и уличного туалета;
- время эксплуатации. Часто подобные «домики» используют по назначению только в дачный сезон — с весны по начало осени, а зимой они простаивают;
- бюджет и обслуживание. Сделать дачный туалет можно самостоятельно, сэкономив на монтажных работах и доставке материалов. Дополнительно стоит продумать дальнейшую эксплуатацию и обслуживание. Например, если постройка под покраску, то, скорее всего, через два-три сезона краску придется обновить. Отдельного внимание заслуживает обслуживание выгребной ямы или септика.
Наиболее популярный материал для возведения дачного туалета — дерево. Оно доступное, с ним легко работать и служит такая постройка долго. Но есть альтернативы. Рассмотрим, из чего можно сделать дачный туалет.
1. Деревянный
Дерево — сравнительно дешевый материал, при постройке из которого не нужны особые навыки, говорит Никита Поспелов, эксперт по строительству и ремонту СТД «Петрович». В зависимости от бюджета используют брус, доску или вагонку. Приоритет отдают хвойным породам. Они более плотные и долговечные, лиственные чаще всего используют в отделке.
«Чтобы дерево долго служило, его обязательно обрабатывают защитным средствами — антисептиками, огнебиозащитой, маслами). Без обработки оно сгниет, покроется плесенью и грибком или деформируется от влаги», — добавляет эксперт.
2. Из плит OSB или фанеры
Обшить каркас туалета на даче можно плитами OSB или фанерой. Оба материала состоят из спрессованных слоев шпона хвойных пород (фанера) или смеси древесной стружки с клеем (OSB). С ними удобно работать, для распиловки подходит обычный лобзик, листы фанеры или OSB бывают разной толщины. Минус материалов — их недолговечность (при условии, что они не защищены от влаги). Со временем от дождя они темнеют и разрушаются. Сохранить свойства материала поможет краска либо облицовка.
3. Кирпичный
Кирпич — более прочный и долговечный материал, но для постройки потребуется больше времени и средств, говорит Никита Поспелов. Кроме того, при строительстве нужен навык правильной укладки кирпича. Также стоит учесть, что вес конструкции будет внушительным, а значит, потребуется дополнительное устройство основания — фундамента.
Плюсы кирпича в том, что постройка будет капитальной. Например, к такому санузлу можно подвести водопровод и организовать сток вод в септик. Для зимней эксплуатации такого помещения можно продумать систему отопления.
4. Из пеноблоков
Также для постройки дачного туалета используют пено-, газо- и керамзитобетон. Они дешевле и проще в укладке, чем кирпич, но менее прочные, отмечает Поспелов. Для них также нужно ровное и прочное основание. При этом пено- или газоблоки выглядят менее приглядно, чем кирпич. Кроме того, без отделки материал способен впитывать лишнюю влагу. Это значит, что лучше всего укрыть, хотя бы снаружи, стены. Самое простое и доступное — штукатурка.
5. Металлический
В некоторых случаях используется металл. Тогда на каркас из профильной трубы монтируется профнастил. Это не всегда удобно, потому что каркас монтируется сваркой. При отсутствии сварочного аппарата и опыта придется приглашать специалиста. Также перед эксплуатацией металл лучше обработать антикоррозионным грунтом. Но учтите, что полностью обшитый металлом туалет летом будет сильно нагреваться.
Как правильно рассчитать размеры дачного туалета душ
Для строительства туалета с душем используют различные материалы. В нашем случае это будет каркасное сооружение на столбчатом фундаменте, имеющее двускатную крышу. Для каркасной постройки не нужен глубокий фундамент, так как она имеет относительно небольшой вес. Благодаря столбам, конструкция будет возвышаться над землей. Это обезопасит нижнюю обвязку сооружения от сырости и грибка. Вода не будет задерживаться под основанием. Двускатная крыша позволит оборудовать холодный чердак для хозяйственных нужд. Вода с такой крыши стекает быстрее, чем с односкатной.
Приобретая брусья и доски, нужно учитывать их влажность, степень которой не должна превышать 22%. Чтобы это опеределить, используют игольчатый влагомер.
Чтобы построить дачный туалет с душем, необходимо подготовить следующие материалы:
- Для нижней и верхней обвязки: четыре бруса длиной по 2750 мм и столько же — по 2000 мм, все сечением 100х100 мм;
- Для вертикальных опор нужны брусья сечением 50х100 мм, в количестве 24 шт., каждая из которых длиной по 200 см;
- Деревянные обрезные доски сечением 10х100 мм, для обрешётки;
- Брусья сечением 50х100 мм, длиной по 200 см, в количестве 12 шт. – для каркаса крыши;
- Для настила пола (в туалете) необходимы доски сечением 40х150 мм в количестве (минимум) 20 штук. В качестве чистового пола используются OSB листы;
- Если полы в душевой будут покрыты кафелем, то необходимо количество равное 2 м²;
- Пластиковые трубы и канализационный слив;
- Бетонная смесь (М-200) в количестве полутора куба;
- Фанерные листы для изготовления опалубки;
- Песок и гравий;
- Металлочерепица.
Все деревянные элементы не должны иметь сучков, трещин, плесени и повреждений от насекомых.
- В качестве чернового потолка используются листы многослойной фанеры, ДСП, ДВП или OSB плит.
- Для удобства крепления брусьев используются металлические уголки и пластины.
Что такое кладовка и для чего она нужна на даче
Подвал и кладовая – два наиболее подходящих помещения для хранения овощей, фруктов, ягод и консервации. Во-первых, там темно и прохладно, то есть шансы на длительную сохранность в этих местах урожая без потерь качества увеличиваются. А во-вторых, "спрятанные" в закрытых помещениях плоды и закатки не занимают место в доме и не попадаются на глаза.
Хранить продукцию и обустраивать для нее место правилами пожарной безопасности разрешено только в тех подвальных помещениях, которые были официально приобретены гражданами в собственность. За содержание пищевой продукции и других предметов в общественных местах подвального помещения можно обзавестись штрафом в размере 2000-4000 рублей. Более подробная информация содержится в Постановление Правительства РФ от 16 сентября 2020 г. N 1479 "Об утверждении Правил противопожарного режима в Российской Федерации", а также в статье 20.4 Кодекса Российской Федерации об административных правонарушениях.
В самом низу подвала или кладовой, на полу, обычно помещают один большой или несколько небольших встроенных или отдельно стоящих ящиков для хранения сырых овощей – картофеля, моркови, свеклы и т.д. Над ними традиционно обустраивают полки для прочего свежего урожая, а также маринованных овощей, закатанных салатов и других видов консервации.
В крайнем случае, вместо ящиков допустимо использовать большие картонные коробки. Они подойдут не только для хранения овощей, но также для банок с консервами. Если требуются более прочные конструкции, то вместо полок лучше соорудить настенные стеллажи.
Какие материалы необходимы для строительства кладовки
Важный фактор в процессе планирования строительства хозблока своими руками – это выбор места. Необходимо учитывать, что если построить хозблок в затененном месте, то пользоваться помещением такого здания будет крайне неудобно и неэкономично: придется проводить электричество для освещения и оборудовать дополнительные окна.
Месторасположение хозблока также должно планироваться, исходя из предназначения сооружения. Так, если предполагается, что хозблок будет использоваться в качестве хранилища садового инвентаря и инструментов, то и разместить строение нужно поближе к огороду. Хозблок-мастерская – поближе к основным строениям, к дому и гаражу.
Если все же предполагается использование электроэнергии в помещении хозблока, то следует выбрать месторасположение поближе к источникам электричества.
Качество грунта – немаловажный фактор, который следует учитывать при планировании строительства хозблока. Если площадка достаточно твердая и ровная, то можно строить хозблок, как и гараж без фундамента . Если же грунт недостаточно прочный, а площадка слишком рельефная, то стоит установить хотя бы бетонные блоки.
Теперь перейдем внутрь будущего строения и поговорим о планировке хозблока. Здесь все зависит от функциональных задач, которые возлагаются на здание. Что необходимо учитывать?
Например, планируется строительство хозблока, в котором будут совмещены мастерская и кладовая. Логично, что два таких специфичных помещения должны быть разделены в едином здании хозблока. Также логично, что по размерам помещение, в котором будет располагаться мастерская, будет больше, чем помещение кладовой.

В каждом конкретном случае необходимо ориентироваться на то, для чего предназначен хозблок. Если хозблок нужен для хранения садового инвентаря, то вполне подойдет сборно-разборный металлический контейнер , а есть хозблоки мультиформатного назначения и по размерам напоминающий дом.
Есть один нюанс, который объединяет все виды и типы хозблоков – это удобство использования. При строительстве хозблока под ключ изначально нужно исходить именно из этого фактора.
И еще один фактор, который обязательно необходимо учитывать при выборе места для хозблока – это расстояние будущего здания от соседей.
Как правильно рассчитать размеры кладовки
Модные тренды последних лет и желание увеличить полезную площадь наших скромных квартир во «вторичках» привели к тому, что часто выбирают расширение за счет сноса лишних, по мнению владельцев и дизайнеров, перегородок. В новостройках, в большинстве случаев, преобладают квартиры-студии, где этих перегородок изначально нет.
И складывается интересная ситуация – пространство расширили, а эргономика помещения пострадала. Это заставляет искать решения, как не захламить полученное пространство, куда убрать сваренное любимой бабушкой или мамой варенье, запасы других продуктов, спрятать от посторонних глаз сезонные вещи и предметы для ухода за чистотой жилища.
А ответ лежит на поверхности – в любом доме или квартире нужна система хранения, в которую входит кладовка. И это не склад невостребованных вещей, а функциональное помещение с особыми правилами обустройства. О том, где расположить и как обустроить такое необходимое место, пойдет разговор в этой статье.
Удобное место для кладовки в квартире
Для того чтобы разместить пищевые запасы, бытовую химию, пылесос, инструменты и технику, даже в маленькой квартире можно найти место. Если в процессе перестройки кладовую сохранили, то останется только продумать ее эргономику. При присоединении этого маленького помещения к другому можно произвести обратные действия и восстановить кладовую.
В случае, когда такое место в квартире не планировалось изначально, можно найти для него удобный уголок.
Варианты размешения кладовки
Торец коридора в прихожей
Всегда можно отгородить небольшое пространство конструкцией их гипсокартона и установить дверь. Зачастую часть коридора остается незадействованной в дизайне квартиры, и получить желаемое место хранения можно практически без ущерба общему пространству.
Неиспользуемая ниша
Более простого и удобного места найти трудно. Надо будет только установить двери или иной вариант изоляции. В квартире с толстыми стенами такую нишу можно создать искусственно.
Использование части кухни или комнаты
Достаточно распространенный вариант. Можно самому выбрать форму и объем места хранения. Определиться с тем, в каком виде будет вход в подсобку. Возможно это будут или перегородка, поддерживающая дизайн кухонного гарнитура, или полотна зеркал в системе типа купе.
Антресоль над дверью
Часто встречающейся вид в «хрущевках», по своему объему очень вместительный, но с большими неудобствами использования. Во всяком случае, если других вариантов нет, этот тоже можно заполнить сезонными вещами и коробками с обувью.
Иногда на антресолях хранят банки с солениями и компотами. Варианты месторасположения и оформления такого места разнообразны.
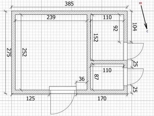
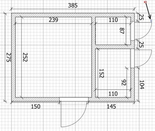
Можно ли построить дачный туалет душ и кладовку своими руками без опыта
Здравствуйте!
На дачном участке в средней полосе есть идея построить сарай 3 в 1: хоз. блок - склад + душ + туалет на имеющемся фундаменте из старого кирпича, оставшегося от предыдущего строения на этом месте.
Пока не определился с расположением помещений на план-схеме. Стоит вопрос где расположить душ и туалет. Логично, что если туалет будет в "низкой" задней части, то можно будет сделать вентиляционную трубу вдоль задней стены, но при этом нарушится СНИП о близости туалета к соседу. К слову, у него туалет вообще вплотную к забору. И вторая небольшая проблема будет в том, что лейка душа будет находится в самой высокой части строения, для стекания воды из бака нужно будет заднюю часть бака приподнимать, а это как раз южная сторона, логично ее, наоборот, опускать, чтобы солнечные лучи ложились более перпендекулярно. Так как не планируется подведение электричества, важно естественное освещение. Использовать квадратные стеклоблоки?
Думаю в душе надо еще предусмотреть окно для вентиляции.
Как я вижу строительство:
1. Текущий фундамент проинспектировать и укрепить. А лучше сломать верхние два ряда в полкирпича и залить бетоном пол (подъезд автотранспорта непосредственно к фундаменту затруднен, до дороги 25 метров), предварительно выполнив подсыпку, трамбовку частично имеющегося кладочного / кирпичного боя и песка. Обязательна гидроизоляция. Грунтовые воды очень близко - весной всего 1 метр. Склоняюсь к заливке плиты поверх старого фундамента.
2. Копка квадратной ямы для туалета до метра в глубину размерами 70*70см. Укрепление стенок или в половину кирпича, или листами оцинковки, оставшихся от крыши со сваркой металл каркаса. может быть, даже с укосинами. Не слишком широко? Стены не "поплывут" от пучения? Нагрузка на туалет предполагается небольшая. Один-два человека в сезон на выходных. Копка канавы водоотведения от душа в сторону от постройки для прокладки трубы от ассенизаторской машины, чтобы мыльная вода уходила по диагонали и вниз к забору на расстояние минимум 4 метра.
3. Возведение коробки в полкирпича… А может в кирпич? Возможно потом будет пристроен гараж к дачному домику, и потребность в хоз. блоке пропадет. Хоз. блок тогда будет легче переделать в баню, если само строение будет в кирпич, а дверь будет смещена к перегородке. Нужно просчитать разницу…
4. Расположение двери в хоз блок и дверей туалета и душа в удобных местах по кратности кирпича в кладке. Предполагается железная дверь в хоз блок и пластиковые двери шириной 60 см в душ и туалет. Соответственно, от того, где будет душ и туалет зависит и расположение дверей. Дверь в хоз. блок делать близко к перегородке, чтобы симметрично смотрелась с улицы или немного сдвинуть в бок для увеличения функциональности?
5. Односкатная крыша из металлопрофиля. Хочется еще козырек на двух опорных столбах над входом в туалет и душ, чтобы солнце и осадки меньше влияли на пластиковые двери. Плюс комфорт. Водоотвод делать, или "и так сойдет" - пусть малину за строением поливает?) С подшивкой крыши пока не понятно как она будет выглядеть…
6. Установка плоского бака из пластика для воды на крышу и проводка коммуникаций от водопроводной трубы в метре от строения.
7. Отделка евровагонкой туалета и организация подиума в форме буквы "Г" из бруса и также евровагонки сильно сьест место? А то можно отштукатурить и покрасить и вообще поставить дачный туалет. Газоотводящая труба с задней стороны в случае, если туалет у задней стены.
8. Гидроизоляция стен душа нужна? Отделка пластиковыми панелями стен душа или опять штукатурка и покраска водоустойчивой краской? Как она переносит зиму? напольной плиткой под уклон для слива воды. Важны ровные плоскости стен для последующей отделки.
9. Укладка плитки, выдерживающей перепады температур на пол в хоз. блоке. Чем отделывать стены пока не придумал. Наверно отштукатурить и покрасить чем то недорогим и стойким в светлом тоне.
10. Отмостка фундамента и прилегающей территории к дверям.
11. Покрытие наружних стен строения в "короед" или облицовка клинкерными панелями - пока даже не думал…
На фото представлен текущий фундамент и часть силикатного кирпича после сноса старого сарая. Еще приложил план-схемы вариантов желаемой бытовки 3 в 1.
Рассмотрю ваши советы и предложения, подкрепленные доводами.
Как я понимаю, самый долгий и затратный процесс это заливка плиты фундамента - пола.



