Маленькая баня с комнатой отдыха. Проекты
Маленькая баня с комнатой отдыха. Проекты
Обустройство мини-бани обычно подразумевает использование небольших помещений. Таких проектов намного больше, чем вариантов крупных строений. Даже в самом простом варианте предусматривается разделение на:
- парную;
- раздевалку (в сочетании с комнатой отдыха);
- душевую зону (в ряде проектов вместо нее располагают подвешиваемое ведро либо водяной бак).

Стоит учитывать, что зимние небольшие бани не всегда комфортнее и практичнее летнего аналога. Обычно коробку сооружают на некотором расстоянии от дома, поблизости от искусственного водоема либо бассейна. В одноэтажном варианте размещают:
- парильную комнату в русском стиле;
- кирпичную печь «каменку»;
- небольшой предбанник (он же комната для переодевания).


Важно: стоит отдавать предпочтение решениям типового характера. Они гораздо надежнее, чем придуманные самостоятельно. В подавляющем большинстве случаев проекты маленьких бань подразумевают использование дерева. Выбор между бревном, брусом либо каркасом с усиленным утеплением и покрытием сайдингом зависит от личного вкуса. Ценители финской сауны предпочитают проекты на основе СИП-панелей либо пустотных кирпичей.
В банях высотой 1 этаж, поставленных на сваи, тепло сохраняется довольно долго. Иногда оно остается свыше 18 часов. Если на первом месте стоит экономичность строительства, можно выбрать компактную баню в виде бочки. Ее монтируют на столбовой фундамент. Такое решение отлично подойдет для сезонных моечных процедур на дачном участке.
Но миниатюрная баня может быть выполнена и по классической русской схеме (сруб). Если он правильно сложен, срок эксплуатации составляет минимум 15 лет. Можно отказаться от утепления стен, ограничившись периодическим обновлением фасада и чеканкой стыков на окнах и нижних венцах. В некоторых случаях отдается предпочтение практичным саунам. Продумывая проект, рекомендуется занимать под них возвышенное место.
Самая лучшая сауна с точки зрения экономичности — это встроенный в дом вариант. В ней используются обогреватели, электрические каменки либо газовые печи. Особое внимание в совмещенных с домом саунах и банях надо уделить улучшению теплоизоляции и вентиляции. Иногда применяются инфракрасные конструкции, которые позволяют отказаться от использования пара.
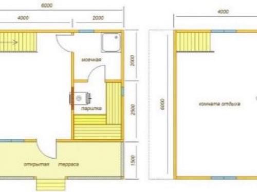
Бани и сауны размером 3х4 м отлично подойдут для участков площадью 5 или 6 соток. В них предусматривают парильное помещение, и величина парилки может достигать 8 кв. м. Внутри размещается 2 или 3 лежака. Прочие комнаты используются по мере возможности. Комната отдыха в типовом проекте имеет площадь 4,5 кв. м. В тамбуре размещают скромных размеров раздевалку.

Бани площадью 3х3 м еще компактнее, чем в предыдущем случае. Один из возможных вариантов включает:
- душевую и парилку по 2,75 м2;
- комнату отдыха 4,75 м2 (в этот размер, правда, входит и топочная зона);
- крыльцо размером 0,88 м2.

Проект бани с комнатой отдыха и террасой. Проектирование
Чтобы при проектировании бани получить именно то, что вам нужно, необходимо иметь в виду следующее:
- на какое количество людей должен быть рассчитан моечный комплекс с открытой площадкой для отдыха;
- будет ли он использоваться только летом или также сможет эксплуатироваться зимой;
- какая планировка будет наиболее подходящей;
- из какого материала ее строить;
- какова допустимая цена строительства.

Если баней предстоит пользоваться только в теплое время, об утеплении предбанника можно особо не задумываться. Если баня эксплуатируется круглогодично, особенно важно становится расположение входа в нее.
Грамотная планировка позволяет сократить расходы на строительство. Так, если сделать удобную открытую площадку для барбекю, в которой легко размещается много людей, гостевая комната может и не понадобиться.

Иногда достаточно террасу пристроить к существующей бане, если она достаточно новая. Если же баня старой постройки, лучше расположить площадку для отдыха под крышей между строением для мытья и домом. Важно выбрать для нее место так, чтобы не нарушить существующую архитектурную и стилистическую идею.


Площадь бани может быть разной – от небольших размеров до внушительных, например, 6х4, 3 на 9 метров и так далее. На большом участке найдется место для сооружения размером 6 на 9 метров. Оно подходит для большой семьи и многочисленной компании. На таком пространстве запросто разместится не только парилка, моечная, но и кухня, санузел, комната отдыха, бильярдная и так далее. Баня при этом может быть двухэтажной. На втором этаже имеет смысл сделать просторную комнату для гостей . Терраса может быть оборудована печью, которая выглядит как камин.
Такой оздоровительный комплекс можно выполнить, например, из оцилиндрованного бревна. Возможны вариации планировки. Например, если устроить гостиную на первом этаже, отделив ее от террасы стеклянной стеной, в этой комнате будет всегда много света, а сама терраса сможет выглядеть больше. При изменении погоды гостям удобно будет перемещаться с открытой площадки в гостиную и обратно.
Некоторые проекты бань с мансардами предусматривают внешнюю лестницу на второй этаж со стороны террасы. Таким образом можно выиграть дополнительную площадь в самом доме . Хотя многие могут посчитать такое проектное решение спорным.


Баню иногда проще пристроить и к существующему дому, в том числе и с гаражом. В этом случае довольно будет пристройки 5х6 метров с террасой . Функционал жилья расширится, а в жару можно будет приятно проводить время на свежем воздухе в защищенном от солнца месте.
Можно взять на вооружение проект угловой бани с террасой. При таком подходе к планировке оно сможет занимать мало места на участке, оставаясь вместительным внутри. Такой проект будет особенно интересен, когда баньку размещают очень близко к жилому дому . Также существуют проекты угловых террас, которые есть смысл применить в таком случае.

Проект бани с комнатой отдыха на втором этаже. Внутренняя баня
Сауна может легко находиться в подвале или на чердаке. Однако, если построить внутреннюю сауну рядом с ванной, можно использовать душ для ванной комнаты в качестве удобной раздевалки.
Двухэтажные бани могут варьироваться в размере от 3 на 4, 4х4, 6х4 м для одного человека до 10 х 14 м или более на 8 человек. Большинство домашних саун 6 на 9 м с потолком 7 на 8 м.
Чтобы выбрать наиболее подходящий проект двухэтажной бани, необходимо определить дополнительные функции, которые будет выполнять сауна.
Кроме того, необходимо учитывать следующую информацию:
- максимальное количество людей, которые будут находиться в бане одновременно, и планируемый размер помещений;
- тип почвы и местность участка (от этих данных будет зависеть тип возведенного фундамента);
- количество зданий на площадке, а также их размещение;
- необходимость построить балкон, террасу или веранду.
В зависимости от того, сколько человек будет посещать баню, нужно определить ее размер. Для семьи из 4-5 человек будет достаточно небольшого двухэтажного здания.
Если вы не планируете оборудовать полноценный второй этаж несколькими комнатами, вы можете выбрать баню с мансардой, конструкция которой позволит вам удвоить полезную площадь с минимальными затратами.
Для периодического отдыха гостей компании, или если вам нужно жить в доме более суток, вам нужно спланировать строительство более просторной сауны с несколькими комнатами на втором этаже, где вы можете оборудовать комнату для отдыха, спальню, зал с тренажерами, бильярдный стол или теннисный стол.
Все более популярным считается расположение на втором этаже банного мини-SPA-салона – для этого нужно будет украсить интерьер в стиле, подходящем для полноценного отдыха. В таком уголке, прекрасно дополняющем парную и мытье, вы можете оборудовать весь комплекс отдыха, создать массажный стол или вибромассажеры для отдыха.
Проекты бани с комнатой отдыха. Особенности
Проекты бани с комнатой отдыха можно разделить на три группы. Первая группа – традиционные одноэтажные бани. Они возводятся из капитальных строительных материалов с низкой теплопроводностью, имеют стандартный набор помещений: здесь есть парилка, душевая, комната отдыха, предбанник, иногда терраса.
Комната отдыха располагается на первом этаже рядом с парной и помывочной и соединяет в себе функции раздевалки. Это самый удобный вариант, который позволяет поддерживать оптимальную температуру во всех помещениях, так как печка равномерно обогревает все прилегающие комнаты с подачей пара в отделение сауны.
Такая планировка позволяет расположить топку печи и в парной, что не всегда удобно, и в комнате отдыха.
Истопник находится в комфортной температуре, к тому же легче убирать мусор после растопки. Современные технологичные печи длительного горения могут иметь стеклянный экран, что позволяет любоваться игрой пламени во время отдыха, создавая приятную каминную атмосферу и давая живое тепло обитателям комнаты. Простая планировка, тем не менее, включает все необходимое для банных процедур, имеет большую вариативность по площади.
Минимальная площадь строения – от 16 кв. метров , что удобно для небольших участков, максимальная – по желанию владельца. Этот варинант не требует больших капиталовложений из-за энергоемкости обогрева.
Вторая группа – проекты с комнатой отдыха, расположенной на мансарде или на втором этаже. Здесь потребуется возведение второго этажа или утепление кровли , что повлечет дополнительный расход материалов, фундамент потребуется усиливать на увеличение несущей нагрузки. Этот вариант удобен при небольшой площади строения.


На первом этаже размещают предбанник, раздевалку, парную, помывочную. На втором – комнату отдыха с балконом или без. Потребуется выделение пространства для лестничного марша. Красивая винтовая лестница может украсить интерьер бани.


Третья группа проектов – с вынесением комнаты отдыха на террасу. Такая планировка удобна для летнего использования. В холодное время года террасу потребуется застеклить и продумать систему обогрева. Однако такое расположение комнаты отдыха дает большой простор для воплощения дизайнерских решений.
Панорамный обзор пейзажа добавляет минутам отдыха эстетическое удовольствие.
Выбор планировки зависит от сезонности использования бани. Для круглогодичного применения подойдет первая и вторая группа проектов. Летом достаточно иметь комнату отдыха под навесом с гибким остеклением из пленки или поликарбоната для бюджетного варианта.
Большое значение имеет наличие свободной площади на участке, и если ее мало, то поднять на мансарду комнату отдыха будет хорошим выходом. Отопление второго этажа в холодное время года нуждается в устройстве воздушного или водного контура . Установка печи длительного горения с конвектором на первом этаже может решить эту проблему.
Размещение бани на участке должно отвечать нормам пожарной безопасности и удобству пользования. Окна комнаты отдыха желательно ориентировать на привлекательный видовой обзор . Приятно видеть красивые пейзажи перед глазами, а не забор или соседский сарай.
Желательно выбрать возвышенный участок для хорошей вентиляции и отвода воды . Эффектным дополнением может стать близость искусственного или естественного водоема.
Особое внимание уделяют материалам для строительства бани. Традиционно предпочтение отдается натуральному дереву в виде бруса или оцилиндрованного бревна липы, осины, кедра.
Сосна более доступна по цене, имеет красивый рисунок волокон сучковатой древесины и является популярным материалом для бани на даче. Недостатком ее является пористая структура древесины, которая сильно меняет показатели от нагрева и повышенной влажности, поэтому в парной и душевой сосну нужно обшить рейкой из твердых пород дерева, а для комнаты отдыха сосна с ее приятным запахом и эстетичным внешним видом будет оптимальным решением.
Кирпич – более дорогой материал, но он имеет самые лучшие показатели долговечности, устойчивости к перепадам температуры.
Бюджетную постройку можно возвести и из пеноблоков. Строительство бани из блоков можно выполнить своими руками, даже не имея специальных знаний.
Внутренние помещения обшиваются блок-хаусом, отделываются плиткой или натуральным камнем.
Оформление комнаты отдыха предполагает следование определенному стилю, в зависимости от дизайна подбирают отделочные материалы.
Проект бани 6 н. Тип постройки и ее размещение

Конечно, залогом истинного комфорта и удовольствия от бани становится также и правильное размещение проекта. С определения места и типа строительства вообще начинается любой проект, и баня в этом плане исключением быть не может.
Отдельное сооружение

Самый безопасный вариант, который рекомендуется экспертами и мастерами по причине его безопасности. При выборе строительных материалов для бани 4х6 без консультаций профессионалов не обойтись, так как разный вид почвы определяет разный подход к построению фундамента.
Особенно впечатляет планировка бани 4х6 на берегу реки или озера. Вот несколько фото с таким вариантом.



Конечно, у этого варианта планировки бани куча плюсов: нет ничего лучше после горячей баньки окунуться в слегка прохладную воду. Однако стоят такие участки, как правило, очень больших денег, да и далеко не всегда особенности рельефа той или иной местности позволяют в полной мере воплотить интересные инженерные задумки.
Пристройка к дому

Распространенный проект, который требует обеспечения хорошей изоляции пристройки. Ведь наличие общей стены обусловливает необходимость защиты дома от различных эксцессов. Да и от повышенная влажность также может негативно повлиять на основное сооружение, существенно снизив его эксплуатационные качества. Получается палка о двух концах: такой вариант планировки вроде бы и более экономичен, но при глубоком рассмотрении вопроса обнаруживается необходимость серьезных вложений в тепло и гидроизоляцию.