Баня с террасой и огромным бассейном. (+74 фото) Проекты бань с бассейном и комнатой отдыха
- Баня с террасой и огромным бассейном. (+74 фото) Проекты бань с бассейном и комнатой отдыха
- Современная баня с террасой. Особенности
- Проект угловой бани с террасой. Проект угловой бани: с террасой или беседкой, барбекю и бассейном
- Угловая баня с верандой и барбекю. Проекты бань с террасой и барбекю
- Проект бани с террасой и спальней. Обзор типовых проектов бань с терассой Обычно проекты бани с террасой и с комнатой содержат в себе четыре основные части:
Баня с террасой и огромным бассейном. (+74 фото) Проекты бань с бассейном и комнатой отдыха
Особенности
Вне зависимости от конструкции любого бассейна далеко не в каждую парную можно его разместить. Главная задача при подготовке бани под размещение бассейна – это гидроизоляция проводки, стен и потолка. Нельзя в уже готовую парилку просто взять и поставить его.
Поэтому лучше учесть его еще на стадии планирования, в противном случае адаптация под помещение будет стоить гораздо больших денег.

Учитывая большие объемы воды, система водоснабжения тоже полностью должна быть подготовлена к установке бассейна. Обычный слив под фундамент (который можно сделать в небольшой душевой) не подойдет. Тут необходим полноценный слив и оборудовать его нужно по стандартным правилам устройства канализации.
Правда, бывают случаи, что и канализационная система не справляется с огромными объемами воды.

Постройка проектируется с учетом расположения бассейна – на улице, под одной крышей с парилкой или в другом помещении.


Еще один важный вопрос – размещение инженерных сетей. К ним относятся вентиляция, фильтры для воды, освещение, система водоотведения.

Как выбрать проект для строительства
Строительный проект для возведения бани, разработанный специализированной организацией, включает эскизную, архитектурную части, конструктивный раздел и описание прокладки инженерных коммуникаций.
Каждый пункт содержит подробную информацию, которая поможет правильно подготовиться к строительству, произвести расчеты необходимых материалов, организовать и выполнить все этапы работ.
Баня с бассейном внутри – достаточно сложный объект, который, помимо предбанника, парилки и купели, может включать душевую, санузел, комнату отдыха. При проектировании пространство разбивают на зоны для удобного использования площади постройки.
Все коммуникации – водопровод, канализация, электрические и вентиляционные системы – должны быть разработаны заранее.
Расчет конструкций и описание последовательности работ – отдельная строительная часть проекта. И самое главное – учитываются меры защиты отдыхающих от опасных факторов: ударов током, травм, ожогов.

Проект бани с бассейном выбирают с учетом:
- Бюджета.
- Места постройки.
- Подводки коммуникаций.
- Предпочтений в материалах.
- Противопожарной безопасности.
- Особенностей рельефа.
- Типа грунта.
Правильный подбор проекта поможет избежать ошибок, которые могут привести к излишнему расходу материалов, затягиванию сроков строительства, неудобствам при эксплуатации и ремонте здания, даже к деформациям или разрушениям несущих конструкций.
В чем особенности бани с бассейном
В готовой парной не всегда можно устроить и оборудовать полноценный бассейн. Проектирование проводят заранее с учетом особенностей, которые возникают при устройстве этого гидротехнического сооружения.

Фундамент
Резервуар при наполнении водой создает колоссальную нагрузку на основание. Саму баню, как правило, возводят из легких материалов – дерева, пеноблоков. Часто сооружение выполняют по каркасной технологии с заполнением стен пористым утеплителем.
Соответственно, под такие ограждающие конструкции строят фундамент с небольшой несущей способностью из отдельно стоящих столбиков или в виде мелкозаглубленной железобетонной ленты.

Полноценный бассейн с размерами 3х4 метра и глубиной 1,4 м дает нагрузку на грунт не менее 17 тонн. Чем больше высота столба жидкости, тем значительнее давление на почву. К этому нужно добавить собственный вес рукотворного водоема, сантехнического оборудования, отделочных материалов.
Поэтому под купель устраивают достаточно мощный фундамент из монолитного железобетона.
Стены
Постоянная повышенная влажность агрессивно воздействует на материал стен и потолков. С квадратного метра поверхности бассейна каждый час испаряется 150-250 г воды. Конструкции и отделку, находящиеся в таких условиях, защищают от действия влаги гидроизоляцией, обрабатывают от гниения особенно тщательно.
Современная баня с террасой. Особенности
Просторная терраса – это, пожалуй, самая большая мечта любого жителя мегаполиса, который ценит отдых на открытом воздухе в компании близких друзей. Однако если ваш коттедж не оборудован верандой, как это нередко бывает в старых частных домах и современных типовых коттеджах, то можно компенсировать этот недостаток и соорудить во дворе баню, оборудовав ее функциональной зоной отдыха.
Благодаря этому можно решить сразу несколько задач:
- наличие бани «не отходя от дома»;
- присутствие террасы, которая может использоваться как самая обычная беседка, где можно устроить душевные посиделки в приятной компании;
- практичное решение задачи организации дружеского или семейного досуга;
- при необходимости решение злополучного «квартирного вопроса».
Террасы могут обустраиваться мангалами, грилями и барбекю, без которых не обходится ни один пикник. Есть и другие приятные бонусы подобных конструкций – прямо на веранде можно пожарить шашлыки и приготовить другие закуски.
Кроме того, совместное возведение бани и террасы позволяет выдержать единый архитектурный стиль и соблюсти концепцию ландшафтного дизайна на всем участке. Необходимость связывать расположенные отдельно объекты дорожками отсутствует, а это в значительной степени увеличивает общую полезную площадь земельного участка, который можно использовать под клумбу, рокарий или газон.
Ну и, безусловно, совмещение бани с местом отдыха позволяет экономить на строительных работах, так как при этом стена бани одновременно выполняет роль стены веранды, а это существенно снижает расход необходимых материалов.
Следует отдельно заострить внимание на том, что стыковать террасу с баней намного сложнее, нежели сооружать их единовременно.
Если общее основание не было заложено еще на этапе строительства фундамента, то от идеи баня+терраса «2 в 1» лучше отказаться, особенно если грунт пучинистый. В этом случае обе части будут давать разную усадку, что приводит к растрескиванию стен.
Если же вы твердо намерены совместить две функциональные постройки, то стоит продумать базовые аспекты этого технологического процесса.
Веранду оптимально строить только по окончании усадки здания , после этого обустраивают столбчатый фундамент и возводят на нем периметр застройки.
Чтобы снизить вероятность появления перекосов, террасу можно попросту не соединять с основной стеной банного комплекса, а все появившиеся зазоры замаскировать при помощи монтажной пены либо с использованием скользящих креплений.
Кровлю лучше обустроить отдельно для обоих элементов конструкции , а чтобы между крышей бани и покрытием веранды не заливалась вода, оборудуют отлив Г-образной формы. Его располагают на 2-3 см выше террасы и монтируют к бревну сруба.
Проект угловой бани с террасой. Проект угловой бани: с террасой или беседкой, барбекю и бассейном
В этой статье мы расскажем о том, как расположить баню на участке в угловой зоне. О планировочных решениях такой постройки и возможном использовании зон внутри и снаружи.
 Также поговорим о зоне бассейна в комплексе и его плюсах.
 Также поговорим о зоне бассейна в комплексе и его плюсах.
Как правило основное место на участке отдается главной постройке – дому. И очень часто возникает ситуация расположения бани в одном из свободных углов приусадебной территории. Это расположение диктует несколько объемно пространственных и планировочных вариантов.
Мы расскажем с какими сложностями можно столкнуться при такой посадке бани. Ниже поговорим об одном из них.
Все о нашем проекте угловой бани
По заданию нашего заказчика нам предстояло решить непростую задачу – удобно расположить сразу несколько разных зон бани при её угловом расположении. Перечислим их для понимания:
- Зона отдыха с большим диваном с раскрытием на телевизор и стеклянную дверцу банной печки
- Бассейн, размером зеркала воды 8х3 метра
- Близкое расположение парной, душевой и санузла к бассейну
- Выход из помещения бассейна на террасу с барбекю
- Веранда с дровяником при входе
- Отдельное расположение топочной и котельной
- Передаточное окно для дров из топочной в комнату отдыха
- Открытая веранда для загара с шезлонгами
- Витражное остекление основных зон

В итоге наши специалисты придумали очень лаконичную планировку для угловой бани. При входе расположили дровяник на веранде. Также хранение дров предусматривается в специально отведенном помещении, откуда есть окно для подачи дров в зону отдыха. Такое решение позволит сохранить чистоту. А со стороны зоны отдыха передаточное окно выполнено в виде ниши. Её можно сделать вертикально или горизонтально – это будет эффектным элементом дизайна в современном стиле.
Вариант 1 с бассейном

Вариант 2 с террасой кухней и комнатой отдыха

Вариант 3 с террасой, гостевой комнатой, дровяником и котельной

У нас новая услуга — заполните небольшое тех задание и мы разработаем планировку первого этажа Вашей бани.
Близость бассейна к сауне позволит принимать «контрастные» водные процедуры. Для особо экстремальных посетителей, можно зимой место для загара превратить в специальную зону для ныряния в снег и расположить горячую ванну на улице — Японская баня «Офуро». Длина бассейна позволит заниматься любительским плаванием для поддержания иммунитета и здоровья членов семьи нашего заказчика.
Все зоны нашей бани очень удачно сообщаются между собой. Наш заказчик оценил предложенную планировку и остался очень доволен. Удобство и функционал – главные плюсы нашего предложения.
Вариант 1

Вариант 2 с открытой большой террасой

Вариант 3 с закрытой трассой в темном дереве

Внешняя архитектура банного комплекса исполнена в современном стиле. Модные вставки дерева на фасаде в сочетании с искусственным камнем и клинкерной плиткой на фоне белой декоративной штукатурки придают зданию стильный вид. Многоуровневая кровля повторяет зонирование планировочной структуры. Большие свесы кровли защищают фасад здания и формируют восприятие бани как добротного дома. Большие витражи дают много света и гармонируют в общем стиле.
Вариант 1

Вариант 2

Вариант 3 в темном дереве с гостевой

Вид на дровяник

Как удобно разместить барбекю или беседку под одной крышей в угловой бане с верандой?
Главный архитектор проекта совместно с заказчиком утвердили очень удачное решение – совмещенная беседка-барбекю с открытой площадкой для загара. Этот прием позволит отдыхать как под крышей, так и без — в зависимости от погоды. Открытая веранда может выполнять несколько функций. Например, её можно использовать как сцену. Вдруг компания детей захочет показать взрослым свою творческую нотку, и устроить показ спектакля – это легко можно сделать на открытой веранде. Она может стать центром притяжения всего комплекса!

В свою очередь, барбекю удобно расположена с торца корпуса с бассейном, под общей крышей. В ненастный вечер гости будут надежно защищены большими свесами кровли и уютным очагом печи со звуком потрескивающих дров.
Проект угловой бани – цены
Если Вам понравился наш проект современной бани в угловом расположении, мы предлагаем приобрести готовый эскизный проект. Архитектор выполнит привязку объекта на участке и Вам останется заказать у нас проект рабочих чертежей для возведения коробки бани. Или наши специалисты готовы разработатьпо Вашим пожеланиям.
Понравился проект бани? Приобретайте эскизный проект за 20 000 рублей. Бесплатно внесем корректировки в планировку без изменений 3д вида.
Проект угловой бани фото
В этом разделе статьи мы публикуем картинки банного комплекса с разных сторон.
Угловая баня с верандой и барбекю. Проекты бань с террасой и барбекю
Встреча друзей, беседа и отдых у нас накрепко связаны с шашлыками. Где шашлык — там мангал. А лучше переносного мангала может быть только стационарный барбекю. Вот и планируют часто бани с террасой и барбекю.

Большая терраса и вынесенная площадка для барбекю
В этом проекте бани терраса охватывает баню с трех сторон. Приличная площадь позволит расположиться с комфортом любой кампании. При желании часть террасы можно сделать закрытой. В ней можно будет отдыхать в прохладные дни. На отдельном выносе можно установить барбекю или сделать это в одном из глухих углов.
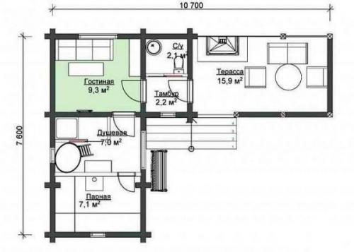
По внутренней планировке проекта бани. Обратите внимание на то, как установлена печь. Она греет сразу четыре примыкающих комнаты. Если планируется помещение бани и в зимнее время, придется предусмотреть еще отопление для комнаты отдыха, так что мощность потребуется большая. Но комната отдыха потребует отдельного источника тепла: она имеет приличные размеры, а банной печью не отапливается.
В случае всесезонной бани необходимо будет часть комнаты отдыха выгородить под тамбур или прихожую. Чтобы холодный воздух не мешал отдыхать после бани.

Баня с барбекю и террасой
В этом проекте бани есть два входа — один с крыльца, второй с террасы. В здании предусмотрен отдельный санузел и довольно просторная кухня, но и площадь, занимаемая всем строением с пристройками немалая: 14*7 м. При входе с крыльца есть отдельный тамбур. Этот вход планировался как зимний. Летом можно открыть широкие раздвижные двери, сделав террасу еще больше.

Проект угловой бани с террасой и барбекю
Достаточно функционален вариант планировки угловой бани. Она занимает минимум пространства, имея все необходимые помещения. Душевая достаточно просторна для установки в ней двухместной деревянной купели . Печь топится из парилки, что при таких габаритах возможно. Сместив двери можно печь установить ближе к углу, и врезать ее в стену. Таким образом будет топиться она из душевой, что в некоторых случаях более удобно. Для остальных помещений необходимо будет продумывать систему отопления (если баня будет использоваться зимой).

Проект небольшой бани с крыльцом и террасой
Эта планировка имеет «болезнь» многих проектов: нет тамбура для зимнего использования. Но тут присутствует раздевалка, что несомненно, хорошо. Единственная проблема в том, что из моечной будет поступать влажный воздух, а влажная одежда — это недопустимо. Потому в этом помещении должна быть очень хорошая вентиляция. Обязательно требуется предусмотреть входное и выходное вентиляционное отверстие, а также на выходном поставить вытяжной вентилятор. Только в этом случае можно обеспечить быстрое удаление влаги.
Проект бани с террасой и спальней. Обзор типовых проектов бань с терассой Обычно проекты бани с террасой и с комнатой содержат в себе четыре основные части:
- Парилку
- Помывочную
- Предбанник
- Террасу
- Комнату отдыха
- Раздевалку