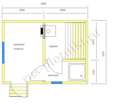
Планировки бань с комнатой отдыха. 3 на 4
- Планировки бань с комнатой отдыха. 3 на 4
- Планировки бань с комнатой отдыха и террасой. Баня с террасой на свайном фундаменте
- Лучшие проекты бань. Проекты бань. Чертежи и фото
- Проект бани с бассейном и комнатой отдыха из пеноблоков. Особенности, достоинства и недостатки бани из пеноблока
- Планировки бань с комнатой отдыха и туалетом. Особенности стационарных конструкций
- Баня планировка. Помывочная или душевая комната
- Видео баня с Комнатой отдыха. ПЛАНИРОВКУ как МЕЧТАЛ так и ПОСТРОИЛ. Раздает ПРОЕКТ ВСЕМ!
Планировки бань с комнатой отдыха. 3 на 4
Чем дальше — тем веселее. Планировки бани 3 на 4 внутри, конечно, не могут похвастаться такой вариативностью, как у решений с общей квадратурой полезной площади, превышающих 50 квадратных метров, но, тем не менее, позволяют грамотно распределить все необходимые функциональные зоны с единственно верной целью — сделать использование банного помещения действительно приятным и запоминающимся.
Разумеется, на общей площади в 12 квадратных метров трудно разместиться большой компании. Поэтому при размещении тех или иных зон следует учитывать наиболее вероятный факт: такой небольшой баней, скорее всего, будет пользоваться семья из 2-3 человек либо дружеская компания на столько же человек. Все, что свыше, так или иначе, но будет немного снижать уровень комфорта. Взглянем на варианты внутренней планировки бани 3 на 4 с объединенными мойкой и парилкой.




Если вы используете печь-каменку, то логично разместить ее между парной и предбанником, чтобы распространить тепло по всей площади постройки. К тому же, вынос топочной части в предбанник позволяет вам увеличивать температуру пара, даже не заходя в парную и не растрачивая, тем самым, тепло, которое так или иначе, но выходит через открытую дверь.
Особое внимание следует уделить оформлению парной:
- не располагайте верхний лежак чересчур высоко — есть риск, что человек будет ударяться головой о потолок, когда будет слазить;
- при обустройстве лежаков учитывайте, сколько человек будет регулярно пользоваться баней;
- не располагайте лежаки чересчур близко от печи в своем стремлении сэкономить место — это не только не приносит удовольствие, но даже опасно для жизни
Вариант планировки 3х4 с мойкой и парилкой отдельно
Если проявить смекалку и некоторую инженерную хитрость, то можно осуществить внутреннюю планировку бани 3х4 с раздельным размещением мойки и парилки. В этом есть немало плюсов:
- принимать душ в прохладном помещении куда приятнее;
- возможность раздельного и одновременного использования моечной и парной;
- температура в парной всегда высокая, а пар — сухой и приятный.
Посмотрите на то, какие есть варианты планировки бани 3х4 именно с раздельной интеграцией двух зон.





Планировки бань с комнатой отдыха и террасой. Баня с террасой на свайном фундаменте
Распространены проекты бани с комнатой отдыха и террасой на свайном фундаменте, так как вес деревянной конструкции намного легче монолитной или кирпичной, поэтому нет смысла заливать дорогостоящий монолитный фундамент. Еще один плюс свайного фундамента в том, что он во многом облегчает отвод воды из бани в канализацию.
Варианты планировки бани
Основными помещениями в бане являются парилка, моечная и предбанник. В зависимости от размеров бани при внутреннем планировании здания можно добавить санузел, комнаты отдыха, спальни и даже бассейн. Также проекты бань с террасой под одной крышей, предусматривают наличие мансарды, балкона и беседки. Не исключением являются и проекты бань с комнатой отдыха закрытого типа.
Обратившись в строительную организацию, можно выбрать понравившийся проекты бани с комнатой отдыха и террасой из каталога. Но на что обратить внимание при выборе материала для бани, смотрите в следующем видео:
Вариантов достаточно много, но среди них условно можно выделить три, взяв за основу этажность постройки и ее размеры: одноэтажные бани; двухэтажные или бани с мансардой; банные коттеджи.
Одноэтажные бани
По сути, представляют собой как небольшие домики с минимальным набором комнат (парилка и моечная), обеспечивающим комфортное времяпровождение, так и большие одноэтажные дома с расширенным набором комнат, включая санузлы и комнаты отдыха. Кроме этого зона отдыха может быть вынесена за пределы бани на террасу или веранду. Выбирая проект большой одноэтажной бани с зоной барбекю можно не переживать где разместить отдыхающих гостей, так как зона отдыха делиться на две части – комната внутри бани и терраса.
Двухэтажные бани
Бани с полноценным вторым этажом встречаются крайне редко – чаще такими называют бани с мансардой. В любом случае, благодаря наличию добавочного этажа увеличивается полезная площадь застройки и комнат отдыха можно сделать уже две: одну на первом этаже, вторую – на втором. Благодаря дополнительным площадям баня может вместить большее количество отдыхающих людей, что является отличным вариантом для отдыха большой компанией. Недорогой проект двухэтажной бани с террасой предполагает наличие двух комнат отдыха и террасы.
Банные коттеджи
Это большие банные комплексы с зонами отдыха на улице, несколькими комнатами отдыха внутри дома, спальнями, бассейном и кухней. Это место для отдыха не только телом, но и душой. Чаще всего такой комплекс строится для последующей сдачи в аренду. Обслуживание такого здания требует больших затрат, что является нерентабельным для частного использования.
Лучшие проекты бань. Проекты бань. Чертежи и фото
Проекты бань. Чертежи и фото Проекты бань. Чертежи и фото

Нет ничего лучше, чем отдых на даче или в загородном доме. Особенно если в этот отдых включено такое наслаждение для тела, как баня. Продумывая проект бани, важно учесть множество нюансов. Это выбор места, стройматериалов, вопрос, как провести внутренние отделочные работы, как правильно установить печь, и многое другое. В этой статье мы собрали для вас информацию, которая станет полезной на этапе принятия решения. С ее помощью вы определитесь с тем, как обустроить свое индивидуальное место для релакса.
При проектировании бани следует учитывать такие факторы:
- расположение на участке, будет ли она отдельным зданием или выступает как пристройка к дому;
- мощность обогревателя;
- сколько будет посетителей;
- толщина стен, отделка, наличие или отсутствие утеплителя.

Виды бань
Многообразие бань возникает от разницы культур и традиций. Благодаря этому изобилию мы можем выбирать тот микроклимат в бане, который оптимально подходит нам по температуре, влажности и выработке пара.
Наиболее важен для самочувствия микроклимат, и в соответствии с ним бани подразделяются на виды.
Паровая баня: турецкий хамам
В такой бане температура достигает 40-45°, влажность 90-100%. За счет такой невысокой температуры создается мягкий микроклимат. В бане можно не только хорошо отдохнуть, но и заняться собой, порадовав тело косметическими процедурами.
Паровая сауна: русская баня
45-70° по температуре и невысокая влажность – 40-65%. Пар конденсируется на коже, образуя своеобразную пленку, а организм нагревается намного сильнее вследствие теплопроводности воды.
Суховоздушная (финская) баня
Небольшая влажность, 8-20%, сочетается с высокой температурой 70-110°. Отсутствие пара и высокая температура способствуют максимальному прогреванию организма;
Влажная сауна: спортивная
Температура 75-95° при 100% влажности . Является одним из подвидов финской бани. Температура специально повышается за счет полива камней водой. Такая сауна становится местом соревнований на выносливость и представляет для организма вред и даже опасность.
Водяная баня: японская баня офуро
Традиционная баня с температурой 40-60° и влажностью 100%, является экзотической разновидностью бани. Это обычно деревянная бочка, которая подогревается. Прогревание кожи под водой способствует потоотделению и вымыванию шлаков и пота.
В банях также различается способ подогрева и нагнетания пара . Зная эти особенности, вы выберете баню с характеристиками, которые максимально устроят вас и вашу семью.

Основные помещения в бане
Каждый тип бани включает такие функциональные помещения:
- предбанник (раздевалка);
- парная;
- моечное помещение;
- комната отдыха.

Предбанник (раздевалка)
Предбанник еще называют тамбуром. Здесь посетители оставляют свою одежду, здесь хранятся веники и дрова. Предбанник выполняет ряд функций :
- является зоной с функцией буфера, выравнивающей переход температур от климата снаружи до температуры внутри бани;
- служит местом для досушивания дров;
- зачастую служит также комнатой, в которой отдыхают.
Дверь предбанника должна открываться наружу.



Парная комната
Эта комната является основным, базовым помещением постройки. Здесь поддерживается самая высокая температура и размещается печь. В углу парной находятся камни, с помощью которых создается пар. Под ними должно находиться жароустойчивое покрытие.
Здесь же находятся лавки, размещенные ступеньками. Две, как правило, предназначаются для сидения, одна – лежания. Обустраивая парную комнату, необходимо продумать нюансы:
- для материала, которым обшиваются потолок и стены, характерны определенные теплоизоляционные свойства, с их учетом рассчитывается глубина теплоизоляции комнат, используются конструктивные приемы;
- эффективная работа системы вентиляции обеспечивается специальным коробом или распахивающимся окном, имеющим двойное остекление. Расположение окна – напротив печки;
- дверной проем проектируется с повышенным порогом: так под дверь не проходит прохладный воздух и не снижается теплоэффективность. Сама дверь распахивается наружу;
- парное и моечное помещения должны разделяться, иначе снижается качественные показатели пара и температуры, увеличивается расход топлива.


Моечная комната
Моечная комната, зачастую это душевая кабинка, размещается возле парной . Если размеры строения позволяют, эти зоны являются отдельными друг от друга, в маленьких постройках совмещены. В крупных строениях здесь же оборудуется бассейн или купель.
Средняя площадь моечного помещения составляет 2000х2000мм, тогда есть где принимать водные процедуры и размещать емкости с водой, горячей и холодной.
Окно строится в полтора раза больше окна в парной. Увеличен и дверной проем – 1800х800мм, чтобы обеспечить больший комфорт. По сохранению тепла требования меньше, чем в парной. Порог делается высокий, а пол укладывается из специальной плитки во избежание скольжения и сопутствующих травм.
Проект бани с бассейном и комнатой отдыха из пеноблоков. Особенности, достоинства и недостатки бани из пеноблока
Такой материал, как пеноблок, обладает особенностью, которая заключается в том, что этот материал пористый и изготовляется из цементной смеси, воды, а также песка. Его структура неоднородная. Посему, он обладает легким весом, что существенно облегчает строительные работы при масштабной стройке. Кроме того, данный материал, отлично подходить для строительства бани, так как его легко обработать в нужную форму с помощью обычной ножовки, что существенно облегчает работу с различными формами. Конечно, если использовать брёвна в качестве материала, то баня сможет подарить не только хороший отдых и температуру, но и восхитительный аромат древесины. Однако, по сравнению с пеноблоками, древесина намного дороже, чем пеноблок. Посему, при скромном бюджете следует смотреть, как выглядит баня из пеноблоков с бассейном: фото, план, советы. Кроме того, пеноблок обладает рядом преимуществ:
- Малые строки строительства бани и пристроек;
- Бани, а также иные постройки из пеноблока не оседают;
- С пеноблоком может работать даже начинающий строитель;
- Большая баня с комнатой отдыха или иными помещениями будет легче, чем бани из другого материала, невзирая на размеры постройки;
- Пеноблок обладает высоким уровнем сопротивления огню и температурам;
- Обладает приемлемой стоимостью и дешевле многих аналогов.

Однако, какими бы достоинствами и восхитительными особенностями пеноблок не обладал, всё же он имеет определенный ряд недочётов и недостатков, которые заключаются в том, что:
- Со временем есть вероятность появления конденсата в стенах;
- Обладает не столь высоким уровнем экологии, как древесина;
- По сравнению с кирпичом имеет меньший срок эксплуатации
Исходя из вышесказанного, следует уделять особое внимание поставщикам и марке производителя пеноблока. Кроме того, рекомендуется соблюдать определенную технологию, а также метод строительства бани из пеноблока, а также ознакомиться, как строится баня из пеноблоков с бассейном: фото, план, советы.
Планировки бань с комнатой отдыха и туалетом. Особенности стационарных конструкций
Стационарный санузел в бане может быть в виде отдельного изолированного помещения внутри строения или небольшой пристройки с внешней стороны. Такой туалет имеет оборудованный постоянный канализационный сток и вентиляцию.
Пристроенный санузел может изготавливаться одновременно со строительством самой бани. В этом случае его фундамент становится продолжением банного основания, а вход организуется изнутри строения. Если туалет пристраивается уже к действующему объекту, то он возводится непосредственно возле фундамента бани. Вход в него может быть нескольких вариантов:
- изнутри, когда в стене прорубается дверь;
- в тамбуре: для того, чтобы связать туалет и баню строится еще и тамбур (сени);
- с улицы: вход в туалет расположен на улице, но в непосредственной близости от банного входа.
Фото 1. План бани с туалетом внутри помещения

Проект бани с туалетом в тамбуре

Проект пристенного блока с туалетом к бане
Совмещение бани и санузла (фото 1 наглядно иллюстрирует его) с внутренним его размещением закладывается в проект сооружения. Существует множество типовых проектов, которые позволяют реализовать такую мысль с оптимальным расположением всех отделений. Дело в том, что туалет является достаточно специфическим помещением, и он не должен нарушать комфорт отдыхающих людей.
Важное условие! Для туалета в бане необходим стационарный канализационный отвод нечистот.
Он может иметь несколько вариантов исполнения:
- Отдельный накопительный септик за пределами бани, в который по трубе самотеком направляется сток нечистот. Как правило, он располагается недалеко от банной стены, но изолирован и не издает запахов.
- Общая канализационная система. Туалетный сток совмещается с банным сливом из парилки и моечного отделения, если оборудована система полной местной канализации с несколькими септиками.
- Выгребная яма. Такой вариант подходит только для пристроенного санузла.

Ддля выведения нечистот из бани можно соорудить септик или выгребную яму
Другим важным требованием для стационарного внутреннего туалета является наличие воды для смыва в унитазе. Система смыва может быть организована такими способами: центральный водопровод; собственный водопровод из скважины или колодца; накопительная емкость.


Баня планировка. Помывочная или душевая комната
Душевое помещение должно быть отделено от других, так как в нем, прежде всего, температура должна быть ниже, чем в парной, а само функциональное назначение этой комнаты подразумевает скрытность процесса. Чтобы не тратить и без того небольшой объем энергоносителей на обогрев помывочной, ее делают небольшой – в пределах 2-3 квадратных метров. Такую площадь под душевую можно выделить в любом, даже самом маленьком, проекте. А если баня предназначена исключительно для мужских посещений, то душевую вообще можно сделать миниатюрной – около 0,5 м2. Зато за ее счет можно расширить комнату отдыха.
Душевое помещение в русской бане
Если планировка бани 6 на 4 метра вас устраивает, то душевую можно организовать так, как показано на рисунке выше – это небольшое, но достаточно удобное и функциональное помещение.
Для семейной бани, чем более с детьми, душевая должна быть большой, удобной и многофункциональной, что подразумевает включение в ее состав отделения (или отдельного помещения) для стирки и других нужд. Из-за большой площади такая помывочная может быть даже основным помещением в бане, поэтому следует предусмотреть хорошую принудительную и естественную вентиляцию, естественное и искусственное помещение, правильно рассчитать схему отопления и площадь помещения по максимальному количеству посетителей. Если составлен именно такой план бани, то комнату отдыха можно вообще исключить из проекта, и перенести ее в дом.