Баня с беседкой и бассейном. Особенности
- Баня с беседкой и бассейном. Особенности
- Готовые проекты бани с беседкой. Баня с беседкой — 120 фото лучших проектов и уникальных дизайнерских решений
- Беседка к бане. Баня совмещенная с беседкой: варианты проектов, материалы, размеры, оформление
- Проекты баня с беседкой и летней кухней. Варианты проектов
- Баня с беседкой и мангалом москва. Бани и сауны с беседкой и мангалом
- Баня с беседкой и мангалом. Лучшие идеи для реализации
Баня с беседкой и бассейном. Особенности
У жителей частных домов жизнь зачастую вертится вокруг дел по дому и забот в огороде, но рано или поздно такой круговорот надоедает и хочется чего-то иного.
Самым простым и в то же время полезным вариантом будет строительство бани. Данное место поможет расслабиться после тяжелого дня, отдохнуть от повседневных хлопот и побыть наедине с собой, если есть такая потребность. Строить такое здание нужно только зная, как это делать, иначе проект может быть неудачным, а постройка не только не функциональной, но и опасной для жизни.

Для того чтобы в бане можно было попариться и обмыться, необходимо предусмотреть как минимум два помещения, но лучше всего дополнить их санузлом для полного комфорта .
Занимаясь постройкой бани, особое внимание уделяется проводке, которая должна быть полностью защищена от влаги и заземлена. Лучше всего для таких ответственных работ нанимать профессионалов, чтобы быть полностью уверенным в качестве работы.


Задумавшись о бане, первым делом нужно продумать ее будущий проект. Кроме того, что в парной можно дать организму возможность побыть какое-то время под воздействием высоких температур, а потом принять контрастный душ, очень приятными бывают дружные посиделки в хорошей компании.
Для того чтобы не отрываться от процесса и один этап плавно перетекал в другой, лучше всего комнату для отдыха предусмотреть либо в самой бане, либо около нее .

Наиболее удобным и полезным вариантом является постройка бани с беседкой под одной крышей. Это не только упрощает строительство, но и дает возможность легко перемещаться из одной зоны в другую.
Правильно запланировав беседку и разместив в ней мангал и барбекю, можно после бани потешиться вкусными блюдами и отдохнуть по-настоящему. Если в беседке проводиться достаточно много времени, в ней стоит оборудовать освещение и поставить удобную и мягкую мебель для максимально уютной атмосферы.

Проект совмещения двух построек под одной крышей позволяет решить сразу несколько задач. Это экономия места на участке, возможность размещения общей коробки с электричеством и организация места сбора после банных процедур на шашлыки или на ужин всей семьей.
Готовые проекты бани с беседкой. Баня с беседкой — 120 фото лучших проектов и уникальных дизайнерских решений
Не все обладатели земельных и дачных участков могут похвастаться их габаритами. Большинство дачников имеет небольшие наделы земли, поэтому каждый метр на вес золота, а так хочется разместить на них дом, гараж, хозяйственные постройки, мангал, беседку и всеми любимую баньку. О последних постройках и расскажет наша статья.

Одним из вариантов рационального расположения беседки и бани на участке скромных размеров считается объединение этих двух сооружений в единое целое и даже под одной крышей.

Выбрать нужный проект для постройки бани с беседкой довольно не просто, хотя существует их достаточное количество. Некоторые идеи, фото, достоинства и недостатки такого объединения рассмотрим прямо сейчас.
Кстати, если хотите посчитать стоимость ландшафтного дизайна участка, то воспользуйтесь онлайн калькулятором. У ребят хорошие отзывы на Яндексе и адекватные цены. Переходите!
Открытый формат бани с беседкой
Открытый формат сооружения бани с беседкой не считается самым популярным, однако, он доступный по цене и несложный в реализации.

В данном случае беседка сооружается вплотную к строению бани, и внешне напоминает обычный навес в классическом стиле или открытую веранду.

Баня с беседкой и другими удобствами
Как правило, беседка, расположенная вплотную к бане, является местом отдыха перед посещением парилки и после неё. По центру беседки обычно располагают стол, за которым можно собраться большой компанией.

Кроме того для поддержания беседы положено накрывать стол. Поэтому знатоки бани оборудуют беседку необходимыми приспособлениями: печкой, мангалом и барбекю.

При обустройстве бани с беседкой и мангалом (барбекю или печкой) необходимо заранее предусмотреть технику безопасности и оборудовать достаточную тягу, чтобы избежать трагедии.

Обустройство бассейна
Небольшой бассейн, также является одной из составляющих банного комплекса, который также можно расположить под одной крышей с остальными постройками.

Однако, такое дорогое удовольствие доступно далеко не каждому дачнику. Кроме того, за бассейном требуется специальный уход и время.

Угловой формат бани с беседкой
При необходимости, можно сэкономить пространство и расположить баню с беседкой в углу участка. Но при этом, вы должны иметь в виду, что всю поросль в данном месте придется удалить.

Кроме того, продумайте еще один момент, не будут ли ваши гости, посещающие баню, смущать людей с соседних участков.

Баня и беседка из кирпича
Выбрать подходящий проект постройки кирпичной бани с беседкой не составит особого труда. Такой вариант сооружений для тех, кто любит фундаментальность и прочность. Но помните, что переместить капитальное строение невозможно, а на строительство уйдут огромные деньги.
На фото представлены наиболее удачные проекты планировки и размещения бани с беседкой на дачном участке.

Строение из деревянных брусьев
Наиболее доступным в финансовом плане и простоте сооружения считается строительство бани с беседкой из деревянных брусьев. Хотя при постройке бани вам придется слегка потратиться, но зато сможете сэкономить на обустройстве беседки.
Конструкция бани из профилированного бруса относится к современным и оригинальным сооружениям. В плане эстетики мнение относительно того, какой материал лучше использовать для постройки, брус или бревно, расходятся кардинально. Поэтому выбор за вами.
Бревенчатый вариант строений
Вариант строительства бани из бревен относится к классическому стилю. И, и беседка, сделанные из деревянных бревен, выглядят потрясающе.
Любители и ценители банных традиций высоко ценят бани из сруба. Поэтому такой вариант считается идеальным. К тому же при огромном желании, но отсутствии достаточной финансовой возможности, не сложно найти подходящий сруб, разобрать конструкцию и сложить свой банный комплекс под одной крышей.
Беседка к бане. Баня совмещенная с беседкой: варианты проектов, материалы, размеры, оформление
Хозяева, которые купили дачный участок для отдыха вдали от городской суеты на свежем воздухе, обязательно захотят дополнить его такой постройкой, как баня с беседкой. Это отличный вариант для отдыха семьей или с шумной компанией друзей. Уместна будет установка барбекю, мангала. В зависимости от площади сооружение дополняют комнатой отдыха, бассейном, достраивают второй этаж.

Спроектировать, возвести и оформить конструкцию владельцы могут сами или пригласить для этого мастеров.
Рекомендуем ознакомиться с другими статьями:
- Штукатурка для печей
Разнообразие проектов бани с беседкой
Для экономии времени на разработку, можно воспользоваться уже готовыми стандартными чертежами, схемами. Но при этом стоит учесть климатические особенности региона, тип почвы, глубину ее промерзания и правильно выбрать место.
Выбор в пользу беседки, пристроенной к бане, дает хозяевам такие преимущества:
- Появляется дополнительная площадка для летнего отдыха, а если остеклить и утеплить, то и для зимнего.
- Совместный проект пристроя с баней позволяет экономично расходовать стройматериалы, сокращая затраты на них до 15%.
- Повышенный уровень комфортности отдыха. После пребывания в парной гости смогут переместиться на свежий воздух, где их ждет еда, приготовленная на огне.
- Пристраивать беседку не только дешевле, но и быстрее, чем возводить две отдельно стоящих конструкции с фундаментом.
- Можно оформить интерьер в разных стилях или в одном.
Разберем самые часто встречающиеся проекты.
Под одной крышей

Проект бани с террасой
Подразумевает строительство беседки одновременно с баней. Фундамент выбирается ленточный, на подвижных грунтах – свайный, крыша – односкатная. Такое размещение позволяет равномерно распределить несущую нагрузку. Пристройка зачастую представляет навес, огороженный со всех сторон перилами.

Деревянная баня с верандой под двускатной крышей
Проект под общей кровлей обойдется недорого. Его не так сложно построить своими силами. Еще один плюс в том, что упрощается чистка зимой от снега.
В беседке размерами 2,6*2 м помимо обеденной зоны (стола со стульями) компактно разместится и барбекю.

Встречаются проекты с более сложными конструкциями крыш – вальмовой, двухскатной. При выборе направления для покатой крыши во внимание берется роза ветров.
Чаще всего делают баню с беседкой под общей крышей размером 6*4 м.
Пользователи часто ищут:
- Какие камни для бани лучше выбрать
С барбекю или мангалом
Соединить баню с беседкой и барбекю – это значит, получить сразу две зоны отдыха.

Среди других преимуществ такого решения:
- Сокращение затрат на прокладку коммуникаций (водоснабжения, канализации, электричества). Уменьшение объема земляных работ.
- Обустройство беседки в виде закрытого домика позволит эксплуатировать банный комплекс круглый год, дополнив барбекю печью или камином для обогрева.
- Оформление конструкции в одном дизайне сделает ее красивым дополнением двора.

Установка барбекю требует четкого соблюдения норм пожарной безопасности. Уличные приспособления снабжают трубой для отвода дыма, строят стену из кирпича, которая будет защищать мангальную установку от сильного ветра.
Барбекю ставят вдали от входа в беседку или баню, чтобы дым не мешал отдыхающим. По этой же причине при крепеже дымоходной трубы учитывается направление ветра, чтобы посиделки у костра не вызвали недовольство соседей.

Не рекомендуется ставить постройку на низменных местах, в впадинах. Лучший выбор – равнина или возвышенная точка на усадьбе. Так перед глазами будет открываться красивый вид.

Разрабатывая план конструкции, обязательно согласовывайте его с местными архитекторами, проверяйте на соответствие действующим нормам СНиП.
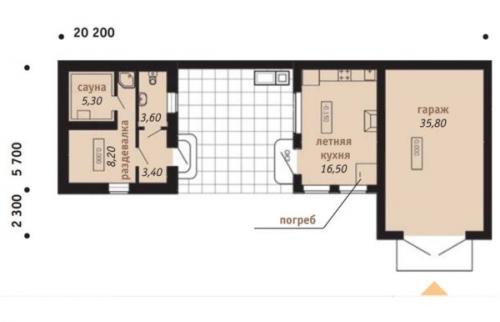
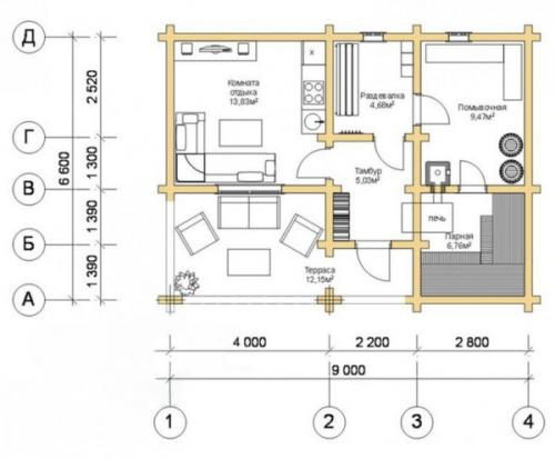
Проекты баня с беседкой и летней кухней. Варианты проектов
План объединенной постройки, в основном, исходит из площади территории. Ее размеры могут доходить до десяти метров по одной стене.

Баня с кухней из дерева
Виды проектов:
- Кухня в бане. Даже в самое небольшое помещение можно уместить парную, душевую, комнату для отдыха, уборную. Подобная планировка предусмотрена для небольшой семьи. Чтобы сэкономить место, устанавливают раскладные диван и кресла, что позволяет оставаться здесь на ночь;

- Баня с летней кухней и террасой. Здесь предусматривается кухня закрытого типа, размещенная в обособленной комнате. Подобное решение уместно для тех, кто желает иметь на придомовой территории помимо бани, домик для гостей. Если есть тамбур, то баню можно посещать и в холодный период времени. Здесь можно разместить компактную парную, просторную помывочную, санузел. Если позволяет место обустраивают купель или маленький бассейн. На террасе часто устанавливают гриль или барбекю;
Заметка для читателя! Возможно вам также будет интересно посмотреть проекты летних кухонь с барбекю и печью .

- Гараж с баней и летней кухней. Такой проект уместен при наличии отдельного дома, но при отсутствии гаража и бани. Группировка этих построек сохраняет полезное пространство. Гараж с баней лучше разделять летней кухней, чтобы избавиться от возведения усиленной гидроизоляции, а также спасти гараж от повышенной влажности, присущей банной зоне;


- Двухэтажная угловая баня с кухней. На нижнем этаже расположены основные комнаты – кухня, гостиная, уборная, тамбур, котельная и парная. На втором этаже размещена спальня с отдельным санузлом. Важную роль здесь играет расположение лестницы – ее делают удобной, не сильно крутой и не занимающей много полезного пространства. Таким образом, подобное сооружение не только выполняет свои основные функции, но и выступает отличным местом для проживания небольшой семьи;

- Баня с летней кухней, верандой и санузлом под одной крышей. Это решение также является аналогом полноценного загородного коттеджа. В нем найдется все для проживания — кухня, комната отдыха, санузел и для отличного отдыха – парная, помывочная, раздевалка, тамбур, терраса с летней кухней. Подобное строение подходит для всесезонного использования. Летом организуют пикник на летней кухне, даже в ненастную погоду, так как у террасы имеется крыша. А зимой проживают в доме, где тоже есть своя кухня;


- Зимний вариант. Если по периметру строения провести отопительные трубы от водонагревателя, то им можно пользоваться круглый год. Теплоэнергия от топки обогревает все пространство. Здесь предусматривается баня с сухим паром для уменьшения влажности, а для сушки делают качественную вентиляцию. Есть небольшая раздевался, кухня-гостиная с обеденной зоной и просторная веранда;

- Двухэтажное строение с мансардным этажом. У такой постройки компактные размеры и большая полезная площадь. На первом этаже расположена кухня, гостиная, тамбур, санузел, парная и помывочная. На мансардном этаже сделана спальня. Труба от печки поддерживает комфортную температуру на мансарде.


Баня с беседкой и мангалом москва. Бани и сауны с беседкой и мангалом
Баня Береста
Адрес: Москва, улица Клары Цеткин, 3
Вид парной: русская баня баня на дровах
Кухня: мангал европейская кухня русская кухня бар
Услуги: веники ароматерапия кальян банщик спа-терапия оздоровительный массаж
Сервис: бильярд охраняемая парковка бассейн спутниковое тв караоке
Вместимость: 15 чел.
Кол-во залов: 1 зал
от 2500 руб./час
0 отзывов
Войковская 1.94 км
Адрес: Москва, Ангарская улица, 1к1
Вид парной: финская парная
Кухня: европейская кухня русская кухня бар мангал разливное пиво можно со своими продуктами
Услуги: веники кальян оздоровительный массаж
Сервис: бильярд охраняемая парковка бассейн джакузи спутниковое тв караоке
Вместимость: от 7 до 15 чел.
Кол-во залов: 2 зала
от 700 руб./час
0 отзывов
Петровско-Разумовская 6.93 км
Адрес: Москва, 1-й Варшавский проезд, 2к1
Вид парной: финская парная
Кухня: мангал европейская кухня бар русская кухня разливное пиво
Услуги: веники кальян банщик стриптиз-шоу спа-терапия оздоровительный массаж
Сервис: караоке бильярд охраняемая парковка бассейн джакузи спутниковое тв Wi-Fi
Вместимость: 10 чел.
Кол-во залов: 2 зала
от 1100 руб./час
0 отзывов
Каширская 2.88 км
Варшавская 5.21 км
VIP-клуб Амазон
Адрес: Москва, Смоленская набережная, 2
Вид парной: финская парная турецкий хамам
Кухня: мангал европейская кухня русская кухня разливное пиво
Услуги: веники ароматерапия кальян банщик стриптиз-шоу оздоровительный массаж
Сервис: караоке бильярд охраняемая парковка бассейн спутниковое тв
Вместимость: 25 чел.
Кол-во залов: 1 зал
от 4000 руб./час
0 отзывов
Смоленская 0.56 км
Сауна Айвенго
Адрес: Москва, улица Академика Арцимовича, 3б
Вид парной: финская парная турецкий хамам
Кухня: мангал европейская кухня русская кухня бар разливное пиво
Услуги: веники ароматерапия банщик спа-терапия оздоровительный массаж
Сервис: спутниковое тв караоке бильярд бассейн
Вместимость: 10 чел.
Баня с беседкой и мангалом. Лучшие идеи для реализации
Учитывая, что, этот сегмент рынка стремительно растёт, спрос порождает предложение, и дизайнеры создают сотни интересных и эксклюзивных решений.
Закрытые беседки можно считать полноправными комнатами в банных домиках. Поэтому для придания уюта в них добавляют камины, а иногда даже барбекю и мангалы. Камин создаст приятную атмосферу, и находиться в помещении станет приятно в любое время года. Панорамные окна с удобной мебелью и камином выглядят очень притягательно:
Отличной идей станет установить на веранде раздвижные двери. Это позволит устраивать частые посиделки в помещении в летнее время, превращая её практически в открытое помещение:
Другой компромиссный вариант возведения бани с беседкой: сделать пристройку по полуоткрытому варианту. В таких конструкциях необходимо построить и присоединить лишь две стены. Это позволит более комфортно чувствовать себя, чем в закрытом помещении, т.к., сквозняков и духоты не будет. Это отличный вариант для тех, кому нужна баня с барбекю под одной крышей, ну или можно добавить кирпичный камин, как это показано на фото:
Двухэтажные бани под ключ из бруса – их преимущества, используемые материалы, проекты и стоимость
Материалы для строительства
Выбор материалов для строительства бани с террасой и барбекю под одной крышей довольно широк. С эстетической точки зрения владельцам комбинированных вариантов зон отдыха, рекомендуется учитывать стилистические особенности прилегающего ландшафта.
Зачастую для возведения подобных сооружений используют:
- Пенобетон. Работать с данным материалом очень просто, особенно если он в виде блоков. Из-за относительно небольшого веса беседки не понадобится укреплять основание бани, если терраса будет строиться не одновременно с баней, а пристраиваться позже. Блоки легко распиливаются ножовкой. При выборе пенобетона рекомендуется уделить внимание вентиляции и качеству пароизоляции. Этим следует заняться ещё при составлении плана. Гидроизоляционные работы желательно вести во время кладки.
- Брус. Этот стройматериал давно используют для строительства различных объектов, т.к., он проверен временем. Его плюсы: экологичность и небольшая теплопроводность. Благодаря второму преимуществу получится немало сэкономить во время выполнения теплоизоляционных работ. При стройке бани с беседкой из бруса внутри всегда будет приятный древесный аромат, который полезен для здоровья из-за целебных свойств и приятен для обоняния.
- Кирпичи. Их не просто так называют искусственным камнем. Они не боятся морозов и жаростойкие. Поэтому отлично подходят для бани. Выполненная из кирпича беседка с баней прослужит не одно десятилетие. Но, также, если дом с беседкой под одной крышей сделан из кирпича, – это будет выглядеть довольно красиво:
- Камни. Из-за дороговизны, используется чаще только как отделочный материал. По сравнению с деревом камень долговечнее, однако не всем нравится, как он выглядит. В каменных банях с беседками нужно сделать теплоизоляцию и приточно-вытяжную вентиляцию. Отличительной чертой каменных бань является небольшая усадка.
- Деревобетон. Больше известен, как арболит. Этот материал начали использовать для стройки в 20 веке. В состав деревобетона входят: камыши, щепа или небольшие опилки, органика и солома. Как вяжущая основа выступает цемент. Главные преимущества – прочность, гасит звуковую волну, устойчив к перепадам климата. Но, из-за отсутствия эстетичного вида, понадобится провести декоративные работы после возведения стен.
Как построить баню: все, что надо знать – от расположения во дворе до вариантов отделки, фото и
Советы по обустройству
Если баня с беседкой и барбекю под одной крышей готова, следует переходить к последнему этапу: обустройству новой комнаты. Без стола, стульев и компактных кресел сложно представить уютную беседку. При желании можно добавить кресло-качалку или мягкий диван. Пользуется спросом мебель с мягкими подушками. При наличии мангала отличным дополнением к нему станет барная стойка.
Учитывая, что в беседке проводят время в позднее время, следует позаботиться о качественном освещении. Свисающие вниз люстры добавят атмосферности. Для этой задачи также рекомендуется поставить цветы по углам. Выбирать тип люстры следует в соответствии с остальными элементами декора.