Баня со спальней. Внутреннее оформление комнаты отдыха
Баня со спальней. Внутреннее оформление комнаты отдыха
Как видно по названию, комната отдыха предназначена для расслабления и отдыха, поэтому при ее оформлении и отделке нужно использовать исключительно мягкие цвета. Агрессивные и яркие оттенки могут применяться лишь незначительно, в небольших декоративных элементах, в противном случае расслабиться и отдохнуть в помещении будет затруднительно.
Интерьер комнаты отдыха может быть выполнен в разных стилях: классике, модерне, кантри и др.
Лучший материал для оформления и отделки бани – это, конечно же, дерево. Если вы делаете баню из бруса, то во внутренней отделке нет необходимости, но если баня из кирпича, газобетона или керамзитобетона, то для отделки подойдет вагонка.
В то время как для парной нужно использовать дерево лиственных пород, но никак не хвойных, здесь все наоборот. Для отделки комнаты отдыха лучше использовать именно хвойное дерево. Оно дарит помещению приятный хвойный аромат, который полезен для здоровья.
Для комнаты отдыха подойдет мягкое освещение, не переусердствуйте со светильниками. Достаточно расставить по периметру несколько небольших светильников рассеянного света.
Как уже говорилось, обязательным минимумом являются стол и стулья. Мебель должна быть из натуральных материалов, лучше подойдет также дерево, другой вариант – ротанг. Такая мебель прослужит вам долго, при этом она абсолютно неприхотлива в уходе.
Если планируете оставаться с ночевкой, то в комнате нужно также поставить диван или софу.
Для развлечения многие устанавливают телевизор или музыкальный центр. Если позволяет площадь, также хорошими вариантами будут бильярдный стол и стол для тенниса. Но не стоит сильно нагромождать помещение, поскольку в этом случае по нему будет неудобно передвигаться.
Если комната отдыха имеет большую площадь, и у вас есть финансовые возможности, то можно сделать камин. Главное назначение комнаты отдыха – расслабление, а что может лучше настроить на расслабление, чем вид огня и звук потрескивающих бревен?
Добавьте также элементы декора. Деревянные фигурки, сувениры в виде домового, банные шапочки, веники и прочие мелочи добавляют уют и помогают в создании атмосферы.
Обязательно в комнате отдыха должна быть и посуда, чтобы можно было перекусить и попить чай. Хорошим вариантом будет мини-кухня, если же ее нет, то приготовьте хотя бы чайник, чашки, тарелки, пару больших мисок, вилки, ложки, ножик и доску для резки. Этот минимальный набор в любом случае вам пригодится.
Проект бани с комнатой отдыха не требует огромной площади участка, даже небольшая баня может предусматривать наличие этого помещения. Безусловно, лучше выбирать проект с комнатой отдыха, в этом случае использование бани станет более удобным, и повысится качество отдыха.
Баня со спальней и кухней. Типовые проекты

Небольшая постройка 6 х 4 из профилированного бруса, досок с навесом
Проект небольшой бани с маленькой террасой, без барбекю, может разместиться на 20 м. кв. Как правило, это небольшое строение прямоугольной формы с банными комнатами (парилкой, моечной с душем, небольшой раздевалкой) и комнаткой для отдыха.
В такой бане достаточно печки-каменки, чтобы обогреть весь домик и небольшую комнату отдыха. Прямоугольная форма практичная, обеспечивает равномерный обогрев помещения изнутри.

Сруб из калиброванного бруса для комфортного отдыха
Бани с террасой от 35–40 м2— комплекс, включающий элементы бани и зоны отдыха с достаточно просторной открытой площадкой. Террасу к фасаду здания можно пристраивать к одной из стен позже, если средства ограничены, на отдельном фундаменте.

Здание с просторной пристройкой, барбекю для приготовления шашлыка
В условиях ограниченного пространства дачного участка, в сочетании с желанием построить полноценный комплекс для отдыха, реализуют проекты бань с мансардой.
Преимущества проектов:
- значительно увеличивается полезная площадь, при компактности постройки
- крыша накрывает сразу террасу и строение
- труба от печки парилки служит дополнительным источником тепла для мансардного этажа
- на втором этаже под террасой можно оборудовать балкон для отдыха, он станет дополнением архитектурного ансамбля

Оздоровительный комплекс со спальней на мансардном этаже
Среди лучших проектов двухэтажные бани с мансардой, просторной террасой, барбекю. Выступают в роли летней кухни. По сути, — это небольшой коттедж, жилой дом. Интересны проекты с раздвижной стеклянной стеной между комнатой отдыха и пристроенной беседкой.

Еще одни проект бани с террасой и большой комнатой отдыха 7,5 х 5,5 м
Лестницу чаще устанавливают на первом этаже в комнате отдыха. На втором этаже делают спальни, бильярдную комнату. Если рядом есть бассейн, искусственный пруд, на террасе уместно установить шезлонги.
Баня со спальней и террасой. Проекты бань. Чертежи и фото
Проекты бань. Чертежи и фото Проекты бань. Чертежи и фото

Нет ничего лучше, чем отдых на даче или в загородном доме. Особенно если в этот отдых включено такое наслаждение для тела, как баня. Продумывая проект бани, важно учесть множество нюансов. Это выбор места, стройматериалов, вопрос, как провести внутренние отделочные работы, как правильно установить печь, и многое другое. В этой статье мы собрали для вас информацию, которая станет полезной на этапе принятия решения. С ее помощью вы определитесь с тем, как обустроить свое индивидуальное место для релакса.
При проектировании бани следует учитывать такие факторы:
- расположение на участке, будет ли она отдельным зданием или выступает как пристройка к дому;
- мощность обогревателя;
- сколько будет посетителей;
- толщина стен, отделка, наличие или отсутствие утеплителя.

Виды бань
Многообразие бань возникает от разницы культур и традиций. Благодаря этому изобилию мы можем выбирать тот микроклимат в бане, который оптимально подходит нам по температуре, влажности и выработке пара.
Наиболее важен для самочувствия микроклимат, и в соответствии с ним бани подразделяются на виды.
Паровая баня: турецкий хамам
В такой бане температура достигает 40-45°, влажность 90-100%. За счет такой невысокой температуры создается мягкий микроклимат. В бане можно не только хорошо отдохнуть, но и заняться собой, порадовав тело косметическими процедурами.
Паровая сауна: русская баня
45-70° по температуре и невысокая влажность – 40-65%. Пар конденсируется на коже, образуя своеобразную пленку, а организм нагревается намного сильнее вследствие теплопроводности воды.
Суховоздушная (финская) баня
Небольшая влажность, 8-20%, сочетается с высокой температурой 70-110°. Отсутствие пара и высокая температура способствуют максимальному прогреванию организма;
Влажная сауна: спортивная
Температура 75-95° при 100% влажности . Является одним из подвидов финской бани. Температура специально повышается за счет полива камней водой. Такая сауна становится местом соревнований на выносливость и представляет для организма вред и даже опасность.
Водяная баня: японская баня офуро
Традиционная баня с температурой 40-60° и влажностью 100%, является экзотической разновидностью бани. Это обычно деревянная бочка, которая подогревается. Прогревание кожи под водой способствует потоотделению и вымыванию шлаков и пота.
В банях также различается способ подогрева и нагнетания пара . Зная эти особенности, вы выберете баню с характеристиками, которые максимально устроят вас и вашу семью.

Основные помещения в бане
Каждый тип бани включает такие функциональные помещения:
- предбанник (раздевалка);
- парная;
- моечное помещение;
- комната отдыха.

Предбанник (раздевалка)
Предбанник еще называют тамбуром. Здесь посетители оставляют свою одежду, здесь хранятся веники и дрова. Предбанник выполняет ряд функций :
- является зоной с функцией буфера, выравнивающей переход температур от климата снаружи до температуры внутри бани;
- служит местом для досушивания дров;
- зачастую служит также комнатой, в которой отдыхают.
Дверь предбанника должна открываться наружу.



Парная комната
Эта комната является основным, базовым помещением постройки. Здесь поддерживается самая высокая температура и размещается печь. В углу парной находятся камни, с помощью которых создается пар. Под ними должно находиться жароустойчивое покрытие.
Здесь же находятся лавки, размещенные ступеньками. Две, как правило, предназначаются для сидения, одна – лежания. Обустраивая парную комнату, необходимо продумать нюансы:
- для материала, которым обшиваются потолок и стены, характерны определенные теплоизоляционные свойства, с их учетом рассчитывается глубина теплоизоляции комнат, используются конструктивные приемы;
- эффективная работа системы вентиляции обеспечивается специальным коробом или распахивающимся окном, имеющим двойное остекление. Расположение окна – напротив печки;
- дверной проем проектируется с повышенным порогом: так под дверь не проходит прохладный воздух и не снижается теплоэффективность. Сама дверь распахивается наружу;
- парное и моечное помещения должны разделяться, иначе снижается качественные показатели пара и температуры, увеличивается расход топлива.


Моечная комната
Моечная комната, зачастую это душевая кабинка, размещается возле парной . Если размеры строения позволяют, эти зоны являются отдельными друг от друга, в маленьких постройках совмещены. В крупных строениях здесь же оборудуется бассейн или купель.
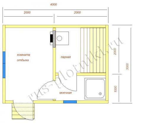
Средняя площадь моечного помещения составляет 2000х2000мм, тогда есть где принимать водные процедуры и размещать емкости с водой, горячей и холодной.
Окно строится в полтора раза больше окна в парной. Увеличен и дверной проем – 1800х800мм, чтобы обеспечить больший комфорт. По сохранению тепла требования меньше, чем в парной. Порог делается высокий, а пол укладывается из специальной плитки во избежание скольжения и сопутствующих травм.
Баня со спальней планировка. 3 на 4
Чем дальше — тем веселее. Планировки бани 3 на 4 внутри, конечно, не могут похвастаться такой вариативностью, как у решений с общей квадратурой полезной площади, превышающих 50 квадратных метров, но, тем не менее, позволяют грамотно распределить все необходимые функциональные зоны с единственно верной целью — сделать использование банного помещения действительно приятным и запоминающимся.
Разумеется, на общей площади в 12 квадратных метров трудно разместиться большой компании. Поэтому при размещении тех или иных зон следует учитывать наиболее вероятный факт: такой небольшой баней, скорее всего, будет пользоваться семья из 2-3 человек либо дружеская компания на столько же человек. Все, что свыше, так или иначе, но будет немного снижать уровень комфорта. Взглянем на варианты внутренней планировки бани 3 на 4 с объединенными мойкой и парилкой.




Если вы используете печь-каменку, то логично разместить ее между парной и предбанником, чтобы распространить тепло по всей площади постройки. К тому же, вынос топочной части в предбанник позволяет вам увеличивать температуру пара, даже не заходя в парную и не растрачивая, тем самым, тепло, которое так или иначе, но выходит через открытую дверь.
Особое внимание следует уделить оформлению парной:
- не располагайте верхний лежак чересчур высоко — есть риск, что человек будет ударяться головой о потолок, когда будет слазить;
- при обустройстве лежаков учитывайте, сколько человек будет регулярно пользоваться баней;
- не располагайте лежаки чересчур близко от печи в своем стремлении сэкономить место — это не только не приносит удовольствие, но даже опасно для жизни
Вариант планировки 3х4 с мойкой и парилкой отдельно
Если проявить смекалку и некоторую инженерную хитрость, то можно осуществить внутреннюю планировку бани 3х4 с раздельным размещением мойки и парилки. В этом есть немало плюсов:
- принимать душ в прохладном помещении куда приятнее;
- возможность раздельного и одновременного использования моечной и парной;
- температура в парной всегда высокая, а пар — сухой и приятный.
Посмотрите на то, какие есть варианты планировки бани 3х4 именно с раздельной интеграцией двух зон.





Баня со спальней проект. Русская парная
Сердце и сама суть русской бани – парная. Обустраивается такое помещение на максимальном отдалении от входной двери. Не имеет оконных проемов и отличается небольшими габаритами. Если размеры постройки могут быть произвольными, то вот чертежи парилки соответствуют нормам, которые рассчитываются исходя из:
- Материалов, которые использовались для отделки помещения и строительства;
- Особенностей обустройства вентиляционной системы;
- Количества человек, которые будут одновременно пользоваться парной;
- Мощности и типа печи, которая стоит в бане и количества тепла, которое приходится непосредственно на парилку;
- Требований пожарной безопасности;
- Эргономии и конструкционных решений парной, то есть, сколько полок и каким образом они расположены в помещении, где и как стоит печь, как организован вход и прочее.
При этом высота потолков имеет очень небольшой разброс: от 2,1 метра до 2,4. А вот длина и ширина комнаты даже для двух человек может существенно различаться: от 840*1150 мм, до 1900*2350 мм. И это только весьма скромные, малогабаритные проекты. Чем больше помещение самой бани, тем больше простора и возможностей появляется при проектировании парилки.
В том случае, если парной будет пользоваться 1-2 человека, то можно сделать это помещение весьма компактным, предусмотрев только сидячие места для парящихся.
Проект и планировка бани 5×5 с прихожей, моечной и санузлом
Если место позволяет, то планировка бани может включать полки для горизонтального размещения. При каскадном обустройстве полок парную можно сделать более вместительной, чем при классическом варианте обустройства.