Баня с двумя спальнями. Проект каменной бани – продуманная рациональность
- Баня с двумя спальнями. Проект каменной бани – продуманная рациональность
- Баня с двумя спальнями одноэтажная. Одноэтажный дом с гаражом и баней №155 с террасой, с двумя спальнями
- Современная баня. Проекты бань. Чертежи и фото
- Баня для двоих. Баня для пары
- Баня с гостевой комнатой проект. Что такое гостевой домик-баня? Преимущества проектов гостевых бань
- Баня с двумя спальнями и террасой. Составление проекта бани с комнатой отдыха
- Баня с двумя спальнями проект. 3 на 4
- Видео #Обзор_Баня 51м2 с 2 спальнями 360 обзор
Баня с двумя спальнями. Проект каменной бани – продуманная рациональность
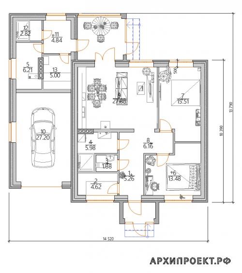
На общей площади застройки в 210, 2 квадратных метров (внутри здания – 108, 5 квадратных метров) удалось реализовать продуманный до мельчайших подробностей вариант организации пространства.
Планировка помещения полностью соответствует поставленным задачам. Согласно проекта каменной бани со спальней ступеньки с двух сторон ведут на неотапливаемую веранду и зону барбекю. Открытая площадка, где вдоволь солнца и свежего воздуха, защищена раздвижными стеклопакетами и дверями от снега зимой и косого дождя летом. Входная дверь каменной бани ведет в компактный тамбур со встроенным шкафом, где можно оставить обувь и верхнюю одежду. Вблизи прихожей–холла расположено сразу несколько помещений – две спальни и санузел.

Сам холл плавно «перетекает» в репрезентативную зону, объединившую кухню и зону отдыха. Вдоль одной из стен расположили шкафы и современную технику, интересно обыграв наружный угол. В зоне отдыха просторный обеденный стол дополнен комфортной мягкой мебелью. Здесь же можно почитать книгу, посмотреть телевизор или просто спокойно пообщаться друг с другом. Благодаря панорамным окнам с двух сторон помещение наполнено солнечным светом. Широкая дверь соединяет кухню-столовую с беседкой барбекю и террасой. В хорошую погоду будет особенно приятно обедать или ужинать вблизи отблесков пламени очага, поэтому на открытой площадке отведено место для массивного стола.
Согласно проекту бани со спальней раздевалка, котельная, помывочная и парилка расположены очень компактно. Сюда можно попасть как со стороны холла и кухни, так и прямо с улицы через отдельный вход, что очень удобно.
Баня с двумя спальнями одноэтажная. Одноэтажный дом с гаражом и баней №155 с террасой, с двумя спальнями

Одноэтажный дом с гаражом и баней — симпатичный проект дома с баней и гаражом. Простой и рациональный проект будет довольно выгодным с материальной точки зрения.

Главный фасад дома симметричен, слева находится гараж для одного автомобиля. Крыльцо дома имеет застекленную дверь спереди, двускатную крышу. На фронтоне имеется большое трапециевидное окно.
Одноэтажный дом с гаражом и баней — недорогой и экономичный

В гараже односкатная кровля, которая в задней части дома соединяется с односкатной кровлей террасой в двускатную.
Конструктив дома
- Фундамент дома — монолитная плита
- Пирог наружной стены — газобетон, облицовочный кирпич
- Перекрытия потолка — по деревянным балкам, или монолитное перекрытие
- Кровля — из металлочерепицы

На задний двор выходят окна спальни и гостиной, застекленная терраса и окно в раздевалке в бане. На фронтоне так же находится трапециевидное окно.
Планировка
Входя в дом через холодный тамбур можно попасть в холл дома. Слева дверь в гардероб, и два санузла. Справа по коридору остаются двери в спальни. Проходя прямо, можно попасть в гостиную-студию. В гостиной есть ТВ зона, зона столовой, готовки и небольшой камин. Из гостиной можно выйти на закрытую террасу. Из террасы можно пройти в раздевалку банного комплекса. Из раздевалки есть вход в душевую, парилку и в котельную дома.


Современная баня. Проекты бань. Чертежи и фото
Проекты бань. Чертежи и фото Проекты бань. Чертежи и фото

Нет ничего лучше, чем отдых на даче или в загородном доме. Особенно если в этот отдых включено такое наслаждение для тела, как баня. Продумывая проект бани, важно учесть множество нюансов. Это выбор места, стройматериалов, вопрос, как провести внутренние отделочные работы, как правильно установить печь, и многое другое. В этой статье мы собрали для вас информацию, которая станет полезной на этапе принятия решения. С ее помощью вы определитесь с тем, как обустроить свое индивидуальное место для релакса.
При проектировании бани следует учитывать такие факторы:
- расположение на участке, будет ли она отдельным зданием или выступает как пристройка к дому;
- мощность обогревателя;
- сколько будет посетителей;
- толщина стен, отделка, наличие или отсутствие утеплителя.

Виды бань
Многообразие бань возникает от разницы культур и традиций. Благодаря этому изобилию мы можем выбирать тот микроклимат в бане, который оптимально подходит нам по температуре, влажности и выработке пара.
Наиболее важен для самочувствия микроклимат, и в соответствии с ним бани подразделяются на виды.
Паровая баня: турецкий хамам
В такой бане температура достигает 40-45°, влажность 90-100%. За счет такой невысокой температуры создается мягкий микроклимат. В бане можно не только хорошо отдохнуть, но и заняться собой, порадовав тело косметическими процедурами.
Паровая сауна: русская баня
45-70° по температуре и невысокая влажность – 40-65%. Пар конденсируется на коже, образуя своеобразную пленку, а организм нагревается намного сильнее вследствие теплопроводности воды.
Суховоздушная (финская) баня
Небольшая влажность, 8-20%, сочетается с высокой температурой 70-110°. Отсутствие пара и высокая температура способствуют максимальному прогреванию организма;
Влажная сауна: спортивная
Температура 75-95° при 100% влажности . Является одним из подвидов финской бани. Температура специально повышается за счет полива камней водой. Такая сауна становится местом соревнований на выносливость и представляет для организма вред и даже опасность.
Водяная баня: японская баня офуро
Традиционная баня с температурой 40-60° и влажностью 100%, является экзотической разновидностью бани. Это обычно деревянная бочка, которая подогревается. Прогревание кожи под водой способствует потоотделению и вымыванию шлаков и пота.
В банях также различается способ подогрева и нагнетания пара . Зная эти особенности, вы выберете баню с характеристиками, которые максимально устроят вас и вашу семью.

Основные помещения в бане
Каждый тип бани включает такие функциональные помещения:
- предбанник (раздевалка);
- парная;
- моечное помещение;
- комната отдыха.

Предбанник (раздевалка)
Предбанник еще называют тамбуром. Здесь посетители оставляют свою одежду, здесь хранятся веники и дрова. Предбанник выполняет ряд функций :
- является зоной с функцией буфера, выравнивающей переход температур от климата снаружи до температуры внутри бани;
- служит местом для досушивания дров;
- зачастую служит также комнатой, в которой отдыхают.
Дверь предбанника должна открываться наружу.



Парная комната
Эта комната является основным, базовым помещением постройки. Здесь поддерживается самая высокая температура и размещается печь. В углу парной находятся камни, с помощью которых создается пар. Под ними должно находиться жароустойчивое покрытие.
Здесь же находятся лавки, размещенные ступеньками. Две, как правило, предназначаются для сидения, одна – лежания. Обустраивая парную комнату, необходимо продумать нюансы:
- для материала, которым обшиваются потолок и стены, характерны определенные теплоизоляционные свойства, с их учетом рассчитывается глубина теплоизоляции комнат, используются конструктивные приемы;
- эффективная работа системы вентиляции обеспечивается специальным коробом или распахивающимся окном, имеющим двойное остекление. Расположение окна – напротив печки;
- дверной проем проектируется с повышенным порогом: так под дверь не проходит прохладный воздух и не снижается теплоэффективность. Сама дверь распахивается наружу;
- парное и моечное помещения должны разделяться, иначе снижается качественные показатели пара и температуры, увеличивается расход топлива.


Моечная комната
Моечная комната, зачастую это душевая кабинка, размещается возле парной . Если размеры строения позволяют, эти зоны являются отдельными друг от друга, в маленьких постройках совмещены. В крупных строениях здесь же оборудуется бассейн или купель.
Средняя площадь моечного помещения составляет 2000х2000мм, тогда есть где принимать водные процедуры и размещать емкости с водой, горячей и холодной.
Окно строится в полтора раза больше окна в парной. Увеличен и дверной проем – 1800х800мм, чтобы обеспечить больший комфорт. По сохранению тепла требования меньше, чем в парной. Порог делается высокий, а пол укладывается из специальной плитки во избежание скольжения и сопутствующих травм.
Баня для двоих. Баня для пары
Вы планируете романтическое свидание? Находитесь в поисках необычного времяпрепровождения вдвоем? Баня для пары – отличное решение, которое позволит вам остаться наедине и насладится обществом друг друга, к тому же вы сможете не только порелаксировать, но и получить мощный оздоровительный заряд, посетив комплексные СПА-программы «на двоих».
Загородный оздоровительный комплекс «Таёжные бани» - это баня на двоих в Москве. Такие услуги пользуются у нас весьма большой популярностью, ведь мы предлагаем действительно достойные интерьеры и высококлассный сервис. У нас всегда приятно находиться – богатые и эксклюзивные интерьеры, лучшие банщики и массажисты, избранные оздоровительные программы – мы подарим вам эмоции!
Вы можете выбрать любой из понравившихся по дизайну срубов по приемлемой цене, а если попадете на акцию, которые кстати случаются регулярно, то скидка за аренду может составить до 50%. Мы предлагаем почасовую оплату на домики с парной или хамамом, а также ряд дополнительных услуг. Для того, чтобы сделать романтическое свидание незабываемым, вы можете заказать услугу «Винной бочки» или «Бочки с шампанским». Тайский массаж СПА или массаж с травяными мешочками, программы комплексного оздоровления и многое другое – вы можете составить индивидуальную программу и провести досуг незабываемо. Наш комплекс идеально подходит для того, чтобы провести у нас брачную ночь или «медовые» выходные. Ведь «Таёжные бани» - это не просто банный центр, а настоящий загородный комплекс. После того, как вы посетите у нас в Москве русскую баню на дровах на двоих, вы можете отправится в ресторан, где вам предложат изысканные блюда от нашего шеф-повара, а потом мы предложим вам снять номер в нашем отеле. Утро вы можете начать активно, забронировав пару часов на профессиональном теннисном корте. Насытьте свое романтическое свидание разноформатными событиями и тогда выходные запомнятся вам надолго.
Русская баня на дровах в Москве на двоих недорого
Вас впечатлил наш сценарий, но у вас ограничен бюджет? «Таёжка» - это баня на двоих в Москве недорого. Мы предложим вам индивидуальный подход и предоставим существенную скидку при заказе комплексных услуг. Если же вы хотите просто тихо, уютно и по-семейному попариться, тогда забронируйте исключительно аренду сруба с услугами банщика. Стоимость аренды сруба по акции в нашем комплексе начинается от 3 000 рублей. Это небольшая цена за «идеальное» свидание. Не так ли?
Сделайте незабываемый сюрприз своей второй половинке и не важно, в начале вы отношений или их уже требуется «освежить». Все больше клиентов однажды попробовав такой формат отдыха в дуэте, возвращаются к нам снова – ведь это отличная возможность побыть вдали от вечного напряжения и стрессов и посвятить себя друг другу без остатка.
Обратитесь к нашему администратору и обозначьте цель вашего пребывания, и мы поможем сориентироваться в многообразии «романтических» услуг в нашем комплексе. Официальной статистики конечно никто не ведет, но мы точно знаем, что в стенах нашего комплекса было сделано ни одно предложение руки и сердца. Очень многие пары приходят к нам постоянно и пробуют разные процедуры. Среди самых любимых – ароматический ойл-массаж. Такой формат позволяет не только получить 100% релакс, но и дружно обсудить свои ощущения после каждой из процедур.
Загородный воздух, полный сервис, вкусная кухня и нескончаемая романтика. «Таёжные бани» - это отличное место для ваших свиданий!
Баня с гостевой комнатой проект. Что такое гостевой домик-баня? Преимущества проектов гостевых бань
Гостевой домик-баня – это настоящий рай для тех, кто постоянно проводит свое время в городе. Неудивительно, что многие готовы отдать значительные средства, чтобы отдохнуть на природе в подобном домике: легкий пар, приятный эфирный аромат и дружная компания помогут снять любой стресс.
Баня-домик не является обычным жилым помещением, в которое встроена парилка. Это жилое помещение, где весь организационный смысл и дизайнерская идея начинаются с парной, а дизайн интерьера подстраивается по ее особый режим эксплуатации.
Обычно в гостевом домике-бане присутствуют:
- кухня, обычно небольших размеров;
- санузел, включающий душевую кабину;
- спальня;
- налаженная система водопровода;
- система отопления помещений.
Гостевой домик-баня с подобными удобствами может использоваться как периодически, так и как жилой дом. Однако все же существуют важные отличия, которые отличают гостевой дом от полноценного дома с баней:
- весь дизайн интерьера отталкивается от парильной, моечной и предбанника;
- эти три части гостевого домика-бани занимают как минимум 50% площади постройки;
- при постройке здания применяются исключительно экологические материалы, т.к. основное назначение домика-бани – оздоровление организма.
Как вы видите, гостевая баня все же имеет свои отличия от гостевого дома-бани, И если было принято решение посещать такой домик иногда, а не жить в нем, стоит задуматься над решением некоторых проблем, в частности, отопления дома в отсутствие хозяев.
Проекты гостевых домиков с баней имеют свои преимущества. Главным достоинством такой постройки является экономия места и денежных средств. Баня с гостевой займет значительно меньше места, чем аналогичные отдельные постройки. Одно большое здание обойдется дешевле, чем два отдельных.
Гостевой дом также удобен в эксплуатации. После посещения парной не нужно идти через улицу в соседний дом, чтобы отдохнуть, это можно сделать в гостевой комнате.
Баня с двумя спальнями и террасой. Составление проекта бани с комнатой отдыха
Решив, что баня с комнатой отдыха — идеальный вариант, хозяин приступает к планированию. Прежде всего, обдумываются вопросы общего плана:
- Размер . Его ограничителями выступает величина участка и бюджета.
- Панируемый график использования . Важна сезонность и интенсивность.
- Вместимость . Количество человек, которые могут пользоваться баней одновременно.
- Конструктивные особенности . Нужна ли терраса, мансарда, крыльцо или балкон.
- Особенности планировки и оснащения (выбор модели печи, системы вентиляции).
- Возможности подключения инженерных коммуникаций .
За основу можно взять готовый проект и провести небольшую перепланировку. В чертеж проекта бани включают основные помещения, часто с совмещенными функциями: раздевалку, моечную, парилку, комнату отдыха, санузел, а также веранду или террасу. При перепланировке учитывают
- Площадь комнаты отдыха . Для бани площадью около 30 м2на эту комнату выделяют 8-10 м2. Если в доме рады гостям и те часто остаются с ночевкой, размер лучше увеличить.
- Терраса или веранда . Может располагаться вдоль одной стены бани или между баней и жильем, выполняя связующую роль. Будет удобнее, если предусмотреть несколько входов, снаружи и изнутри. Часто террасу заменяют крыльцом.
- Если на террасе будет печь-барбекю , надо позаботиться об удлинении трубы (иначе дым помешает полноценному отдыху).
Каркасная баня под ключ: особенности выбора и фото-примеры
Разновидности бань с комнатой отдыха
Наиболее удобными деревянными банями признаются постройки общей площадью 6х6, 6х8 и 6х9 м. В число популярных одноэтажных вариантов планировки входят:
- Баня с полноценной комнатой отдыха . Большой земельный участок позволяет соорудить комфортную баню с обширной террасой и зоной барбекю.
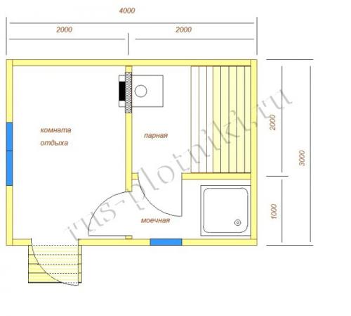
Баня с двумя спальнями проект. 3 на 4
Чем дальше — тем веселее. Планировки бани 3 на 4 внутри, конечно, не могут похвастаться такой вариативностью, как у решений с общей квадратурой полезной площади, превышающих 50 квадратных метров, но, тем не менее, позволяют грамотно распределить все необходимые функциональные зоны с единственно верной целью — сделать использование банного помещения действительно приятным и запоминающимся.
Разумеется, на общей площади в 12 квадратных метров трудно разместиться большой компании. Поэтому при размещении тех или иных зон следует учитывать наиболее вероятный факт: такой небольшой баней, скорее всего, будет пользоваться семья из 2-3 человек либо дружеская компания на столько же человек. Все, что свыше, так или иначе, но будет немного снижать уровень комфорта. Взглянем на варианты внутренней планировки бани 3 на 4 с объединенными мойкой и парилкой.




Если вы используете печь-каменку, то логично разместить ее между парной и предбанником, чтобы распространить тепло по всей площади постройки. К тому же, вынос топочной части в предбанник позволяет вам увеличивать температуру пара, даже не заходя в парную и не растрачивая, тем самым, тепло, которое так или иначе, но выходит через открытую дверь.
Особое внимание следует уделить оформлению парной:
- не располагайте верхний лежак чересчур высоко — есть риск, что человек будет ударяться головой о потолок, когда будет слазить;
- при обустройстве лежаков учитывайте, сколько человек будет регулярно пользоваться баней;
- не располагайте лежаки чересчур близко от печи в своем стремлении сэкономить место — это не только не приносит удовольствие, но даже опасно для жизни
Вариант планировки 3х4 с мойкой и парилкой отдельно
Если проявить смекалку и некоторую инженерную хитрость, то можно осуществить внутреннюю планировку бани 3х4 с раздельным размещением мойки и парилки. В этом есть немало плюсов:
- принимать душ в прохладном помещении куда приятнее;
- возможность раздельного и одновременного использования моечной и парной;
- температура в парной всегда высокая, а пар — сухой и приятный.
Посмотрите на то, какие есть варианты планировки бани 3х4 именно с раздельной интеграцией двух зон.




