Строительство гаража на участке своими руками. Строительство гаража своими руками: начало воплощение идеи
- Строительство гаража на участке своими руками. Строительство гаража своими руками: начало воплощение идеи
- Построить гараж своими руками из пеноблоков. Проектирование – шаг первый
- Как построить гараж 6 н. Как построить каркасный гараж
- Сборный гараж своими руками. Какой вариант конструкции разборного гаража выбрать
- Построить гараж своими руками недорого. Как построить недорого гараж
- Гараж своими руками из профнастила. Выбор конструкции: типовые проекты и чертежи
Строительство гаража на участке своими руками. Строительство гаража своими руками: начало воплощение идеи
Специалисты рекомендуют начинать возведение любого строения с разработки проекта. У многих этот процесс ассоциируется с кучей технических документов, но это не совсем так. Вы можете взять обычный лист и схематически нарисовать свое «видение» гаража. При этом, постарайтесь в этом проекте отобразить:
- Тип возводимого строения: отдельное помещение или пристройка к уже существующему зданию.
- Габариты: необходимо учесть под какую марку автомобиля строится гараж и предусмотреть место для ремонта в случае необходимости.
- Ленточный, столбчатый или монолитный фундамент: определитесь с типом фундамента, на котором будет построен гараж.
- Параметры крыши : предусмотрите в проекте кровельные материалы и параметры уклона если нужно.
- Материал стен: кирпич , пеноблоки или металлический каркас .
На заметку! У многих автовладельцев возникает вопрос – нужно ли оформлять разрешение на строительство гаража? Согласно Градостроительному кодексу РФ возведение такого помещения допускается без выдачи разрешения в случае строительства на земельном участке, предоставленном физическому лицу для ведения садоводства, дачного хозяйства либо для целей, не связанных с осуществлением предпринимательской деятельности.
Таким образом, составленный проект должен отвечать на следующие вопросы:
- Предусматривает ли строительство гаража место для проведения ремонтных работ?
- На сколько автомобилей рассчитан гараж?
- Планируется ли обустройство смотровой ямы или погреба?

Построить гараж своими руками из пеноблоков. Проектирование – шаг первый

В первую очередь необходимо взять в руки листок бумаги и карандаш, чтобы спланировать будущее строительство. Наличие проекта позволит вам сделать приблизительный анализ по расходу строительного материала и, соответственно, финансовых средств. Более того, необходимо произвести анализ почвы, а именно на какой глубине находятся грунтовые воды. Также определить особенность структуры грунта. Уже отталкиваясь от полученной информации можно будет решать какой тип фундамента предстоит воздвигать.
Проект гаража из пеноблоков можно выполнить при помощи специальных компьютерных программ. Однако сделать его можно и самостоятельно. Так, вы сможете учесть в проекте особенности вашей местности и сделать планировку по своему усмотрению.
Кроме всего прочего, стоит решить – будет ли гараж выполнять другие функции помимо хранения автомобиля. Например, подумайте вот о чем:
- будет ли обустраиваться смотровая яма;
- необходим ли подвал для хранения консервации и других продуктов в зимнее время;
- будут ли устанавливаться стеллажи для инструментов;
- нужна ли дополнительная рабочая зона, например, стол, верстак и т.п.
Отталкиваясь от этого, следует выполнить такой проект, который будет соответствовать назначению гаража. Соответственно определяете тип фундамента, его длину и ширину, а также высоту стен и потолка. Если взять для примера стандартные габариты такого строения, то они находятся в следующих пределах:
- Ширина 3–3,5 м.
- Высота 3 м.
- Длина 4,5–6 м.
В конце этой статьи предоставлен ряд проектов и чертежей для постройки гаража. Если вас устраивает тот или иной проект, то можно воспользоваться им. Но при этом обязательно учтите особенности вашей местности: уровень залегания грунтовых вод и структуру грунта.
Как построить гараж 6 н. Как построить каркасный гараж
Любую стройку следует начинать с проекта. Поэтому, прежде чем начать строить хозяйственную постройку или каркасный гараж своими руками, необходимо определиться с функционалом строения и все тщательно рассчитать. Задаём себе вопросы: сколько машин ставить – одну или две, что будет храниться, нужно ли оставить место под станки, гаражные инструменты, стройматериалы и т.д. Отсюда: двигаясь от общего к частному, т.е. конкретным узлам, мы переходим к расчёту размеров строения. Интересен ход мыслей Alano.
Alano Пользователь FORUMHOUSE
Я решил построить гараж, в котором будет храниться садовый инвентарь, строительные материалы, инструменты, станки и т.д. Т.е. гараж предполагается больше использовать не для автомобиля, а как мастерскую.

Разобравшись с требованиями к функционалу строения, Alano перешёл к расчёту размеров и конструктива гаража. Соорудить его он решил по каркасной технологии, как оптимального способа строительства в одни руки. Ширину и длину: 6000х7700 мм, и высоту в 3000 мм пользователь высчитал так.
Длина стандартного пиломатериала – 6 метров, а значит, приведя ширину каркасного гаража к этому размеру, мы упрощаем строительство и делаем его более дешевым, т.к. не нужно сращивать стропила и обрезать их. Длина гаража в 7 метров позволит без труда хранить шестиметровые доски и металлопрокат в виде уголков, труб и т.д. Но оказалось, что выбрав такую длину, придётся резать металлочерепицу. Чтобы уйти от необходимости обрезки кровельного покрытия, длину каркасного гаража увеличили до 7.7 метров.

Подогнав габариты строения под стандартные размеры стройматериалов, мы удешевляем и упрощаем строительство, т.к. уменьшаем количество отходов.
В качестве фундамента каркасного гаража Alano, после долгих раздумий, выбрал деревянные столбы — брус 15х15 см.

Решение закапывать дерево в землю спорное. Оно вызвало среди пользователей, следящих за ходом строительства, дискуссию: сгниёт или не сгниёт брус через 5-10 лет. О том, почему пользователь выбрал такой тип фундамента, мы расскажем немного позже.

Зимой закупили весь необходимый для строительства пиломатериал:
- Брус 15х15 см – 2 м³.
- Доски 15х5 см – 3 м³.
- Доски 2.5х15 см – 3 м³.
Итого: 8 м³.

Купили металлочерепицу – 70 кв. м, и водостоки.

Следующий этап — расчистка площадки и строительство фундамента под каркасный гараж.

Сборный гараж своими руками. Какой вариант конструкции разборного гаража выбрать
Основное отличие разборного варианта от всех остальных типов конструкций заключается в использовании для сборки так называемого метизного крепежа, проще говоря, соединения типа шпилька- гайка или болт- гайка. Возможно, это не самый удачный вариант крепежа, но, в отличие от саморезов или сварочного соединения, отдельные узлы и детали гаража можно собирать и разбирать не по одному десятку раз.
Все разборные схемы разделяют на четыре типа:
- Металлический гараж на несущем каркасе из труб или уголка. Наиболее известный и популярный тип разборного помещения для хранения автомобиля. Относительно легкая конструкция, просто и быстро устанавливается своими руками практически на любом типе грунта;
- Разборный вариант, сделанный на основе типовых железобетонных панелей и балок. Учитывая запредельный вес, собрать, разобрать или перевезти такую конструкцию можно только с помощью подъемно-кранового оборудования и тяжелого грузовика;
- Пластиковый вариант из профилированных полихлорвиниловых или полипропиленовых панелей. По устройству и способу монтажа такая разборная конструкция больше напоминает игрушки «Лего».
Из всех перечисленных типов под определение «разборный» больше всех подпадает пластиковый вариант. Производитель продумал до мелочей детали конструкции и способы сборки. Купленный комплект разборного гаража может установить и смонтировать даже подросток или взрослый человек, не имеющий никакого опыта в возведении подобного рода конструкций.
К сведению! Стоимость гаражного помещения из разборного пластика в нашей стране явно не соответствует заявленным производителем стойкости и прочности конструкции, поэтому массовой популярности у автолюбителей подобные разборные схемы не завоевали.
Что стоит разобрать и собрать гараж своими руками, секреты разборных конструкций
Главное правило разборных конструкций гласит — если один человек собрал, второй всегда сможет разобрать. Устройство разборных гаражей практически не отличается от неразборных систем, правила монтажа и выполнения сборочных работ примерно такие же. Последовательность сборки и демонтажа конструкции обязательно указывается производителем в прилагаемой к паспорту инструкции или сборочному чертежу.
Зачастую опытные автолюбители, имеющие немалый стаж ремонта автомобилей, пренебрегают рекомендациями производителя и выполняют сборку или демонтаж разборного каркаса на свое усмотрение. И совершенно напрасно.
Совет! Производитель указывает последовательность выполнения сборочных и разборочных работ специально таким образом, чтобы избежать деформации длинномерных конструкций гаража и сделать процесс безопасным.
Например, разборные металлические гаражи могут изготавливаться двух типов: в виде крупнопанельной или наборной конструкции. Последний тип потребует умения внимательно и точно читать чертеж, так как потребуется собрать каркас, крышу и установить большое количество болтовых соединений, не перепутав при этом стойки и несущие элементы с тем, как указано на чертеже.
Второй тип намного проще для сборки. По сути, такой вариант разборного гаража представляет собой несколько основных крупногабаритных узлов — три стены, потолочное перекрытие, ворота и крышу. Перепутать невозможно, но для сборки конструкции своими руками потребуется хороший глазомер и сноровка, так как малейший порыв ветра при установке может выгнуть длинномерную панель стены пропеллером или даже травмировать человека.
Еще более напряженным в монтаже является разборный бетонный гараж. Конструкция такого здания практически не отличается от любых построек, но есть одна особенность. Соединение бетонных плит в каркас здания выполняется с помощью стальных уголков, приваренных к железному каркасу арматуры. После обустройства фундамента потребуется с помощью крана установить плиту стены в точно вертикальном положении и попасть монтажными отверстиями уголка на анкерные болты или резьбовые шпильки. Учитывая тот факт, что вес железобетонных плит и балок очень большой, нарушение правил и порядка сборки может привести к разрушению каркаса.
Построить гараж своими руками недорого. Как построить недорого гараж
Как построить недорого гараж, да ещё и самостоятельно — в этом нужно разобраться. При проектировании и строительстве гаража своими руками, максимум внимания необходимо уделять полам — наиболее важному элементу здания. Так как именно полы подвергаются наибольшим нагрузкам статическим и динамическим, а так же абразивному износу и химическому воздействию.
Как недорого построить гараж своими руками
Первое, что нужно сделать, это собрать необходимые документы на строительство объекта.
Только после того, как будут получены все разрешительные документы, можно приступать к строительству.
1 этап. Далее, согласно документам, по разметке, вбиваем колышки и натягиваем шнур. Тщательно выравниваем диагональ. Если в гараже предусмотрен подвал, его нужно выкопать заранее. Обложить кирпичом и положить плиты перекрытия.
2 этап . Выкопать траншею под фундамент, согласно разметке.
3 этап . Сделать опалубку.
5 этап. Залить бетоном фундамент

Фундамент без плиты
6 этап. После укладки фундамента в соответствии с технологией можно заливать пол. Процесс потребует некоторых подготовительных работ: засыпать поверхность слоем песка и сформировать наклонную плоскость с углом в 2-3 градуса, чтобы обеспечить сток для воды.

Фундамент с плитой
Следующим слоем укладывают рубероид, который заливают бетонным раствором марки не ниже М 300.
Специалисты рекомендуют сохранить слой не менее 12 см. Исключение составляет, если бетонный пол заливает поверх бетонного основания, в этом случае достаточно 7 см. покрытия. Армирование поверхности металлической сеткой образует дополнительный запас прочности.
Укладка цементного пола начинается с фунта и щебня, которые нужно смешать, затем тщательно утрамбовать и залить цементным раствором.
Процесс разделяется на два этапа(рекомендовано):
- на первом этапе раствор заливается толщиной 4-5 см и оставляется для застывания на 4 дня;
- затем производится заливка более жидким цементом слоем 2 см.
На протяжении недели поверхность пола необходимо увлажнять для полноценного и качественного схватывания. В этот же период следует позаботиться о решетке для стока воды.
В качестве финишного напольного покрытия можно использовать специальную краску, наливные полы или керамогранитную плитку. Основным требованием к материалу напольного покрытия является его пожаробезопасность и этому пункту нужно уделить особое внимание.
Обратите внимание!
Какой бы отделочный материал не был выбран начинать его укладку можно только через 21 день после окончания работ с бетоном.
После этого специалисты рекомендуют дополнительно выровнять поверхность бетонной стяжкой и только потом настилать покрытие.
Как построить гараж из кирпича самостоятельно
7 этап. Строительство коробки. При самостоятельном строительстве капитального гаража владельцы часто отдают предпочтение возведению стен из кирпича. Это обусловлено тем, что кирпич гораздо прочнее, чем пеноблок. Это затруднит ворам выломать стены или ворота.
Для кладки выбирают белый или красный силикатный кирпич, как материал оптимально соответствующий особенностям постройки и не требующий больших затрат. Построить гараж из такого кирпича будет недорого.
При этом промежуточные столбы размещают примерно на расстоянии 2 метра, чтобы впоследствии использовать как опору для балок крыши.
Такой способ кладки считается экономным и удобным, так как образовавшиеся ниши легко превратить в стеллажи.
Достигший максимальной прочности фундамент очищают и при необходимости выравнивают бетонной стяжкой, после чего по углам устанавливают порядовки.

Порядовки
Эти деревянные рейки имеют равномерные зарубки через каждые 7,7 см. Их закрепляют четко вертикально, проверяя по отвесу, что необходимо для укладки кирпичей ровными рядами, а после натягивают вдоль стен специальный шнур.

Возведение стен
Цементный раствор слоем в 8-9 мм наносится равномерно мастерком, на него кладется кирпич. Каждый следующий кирпич сдвигают в сторону предыдущего, так чтобы шов между ними плотно заполнился цементом.
Характерным постукиванием ручкой мастерка по поверхности кирпич усаживается глубже в раствор и выравнивается до параллельного шнуру положения. Возведение стен завершается подготовкой проема под гаражные ворота.
Крыша гаража своими руками

Двухскатная крыша
8 этап . Как построить крышу гаража. Гараж может быть не только местом стоянки вашего авто, но и иметь дополнительные помещения. К примеру, чердак, который может стать кабинетом, библиотекой, бильярдной или просто вашим личным пространством.
В этом случае оптимальным выбором станет крыша мансардного типа, которую вполне можно сделать своими руками.

Гараж своими руками из профнастила. Выбор конструкции: типовые проекты и чертежи
В основу возведения гаража из профнастила заложен принцип каркасного строительства. Технология создания короба одинакова для всех видов металлопрофильных сооружений. Выбирая тип постройки, необходимо ориентироваться на устройство кровли и обособленность от других зданий. Типовые чертежи и фото гаражей из металлопрофиля помогут определиться с выбором.
Компактный проект
Гараж из профлиста с односкатной крышей ↑
Традиционная конструкция – постройка с односкатной крышей. Это самый простой и доступный вариант возведения гаража. Скат располагается параллельно короткой или длинной стене коробки. Рекомендуется нижнюю часть кровли разворачивать к наветренной стороне.
Односкатный гараж из профнастила
При расчете важно грамотно соблюсти уклон, обеспечивающий свободный сход воды и снега. Определение угла ската основывается на следующих факторах:
- Климата региона. Пологая кровля в 5-7° актуальна для местности с умеренным выпадением осадков или районов повышенной ветровой активности.
- Тип покрытия. Профнастил – универсальный материал, который применим на пологих и крутых крышах.
- Общий архитектурный ансамбль. При строительстве гаража часто приходится подстраиваться под соседние сооружения.
Важно! Угол наклона односкатных гаражных крыш не должен превышать 30°.
Гараж на два авто с хозблоком
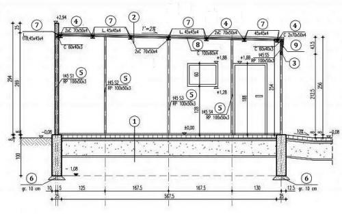
Схема возведения гаража из металлопрофиля своими руками отображена ниже.
Обозначения по рисунку:
- фундамент, состоящий из песчаной подушки, песчано-цементной подсыпки и бетона слоем 10 см;
- крыша (профилированный лист, обрешетка и утеплитель);
- рама ворот;
- панели обрешетки;
- опорные металлические столбы;
- бетонные сваи;
- крепежные кронштейны;
- балка перекрытия;
- вентиляционный зазор.
Чертеж односкатной постройки
Отдельно стоящая двускатная постройка из профнастила ↑
Двускатная кровля, как правило, устанавливается на гаражах из металлопрофиля большой площади или при невозможности устройства односкатной – в регионах с сильными ветрами и обильными осадками.
Совет. В северных регионах с большими снегопадами наклон двускатной крыши должен составлять не меньше 40-45°.
Фото двускатного гаража из металлопрофиля
Достоинства двускатных гаражных построек:
- возможность обустройства вместительного чердачного помещения;
- привлекательный внешний вид.
Вместительный гараж под двускатной кровлей
Недостатки двускатной конструкции гаража из профиля:
- сложность самостоятельного возведения – устройство стропильной системы требует от исполнителя определенного опыта;
- удорожание – расход материалов и время на выполнение работ увеличивается.