Баня с спальней. Внутреннее оформление комнаты отдыха
Баня с спальней. Внутреннее оформление комнаты отдыха
Как видно по названию, комната отдыха предназначена для расслабления и отдыха, поэтому при ее оформлении и отделке нужно использовать исключительно мягкие цвета. Агрессивные и яркие оттенки могут применяться лишь незначительно, в небольших декоративных элементах, в противном случае расслабиться и отдохнуть в помещении будет затруднительно.
Интерьер комнаты отдыха может быть выполнен в разных стилях: классике, модерне, кантри и др.
Лучший материал для оформления и отделки бани – это, конечно же, дерево. Если вы делаете баню из бруса, то во внутренней отделке нет необходимости, но если баня из кирпича, газобетона или керамзитобетона, то для отделки подойдет вагонка.
В то время как для парной нужно использовать дерево лиственных пород, но никак не хвойных, здесь все наоборот. Для отделки комнаты отдыха лучше использовать именно хвойное дерево. Оно дарит помещению приятный хвойный аромат, который полезен для здоровья.
Для комнаты отдыха подойдет мягкое освещение, не переусердствуйте со светильниками. Достаточно расставить по периметру несколько небольших светильников рассеянного света.
Как уже говорилось, обязательным минимумом являются стол и стулья. Мебель должна быть из натуральных материалов, лучше подойдет также дерево, другой вариант – ротанг. Такая мебель прослужит вам долго, при этом она абсолютно неприхотлива в уходе.
Если планируете оставаться с ночевкой, то в комнате нужно также поставить диван или софу.
Для развлечения многие устанавливают телевизор или музыкальный центр. Если позволяет площадь, также хорошими вариантами будут бильярдный стол и стол для тенниса. Но не стоит сильно нагромождать помещение, поскольку в этом случае по нему будет неудобно передвигаться.
Если комната отдыха имеет большую площадь, и у вас есть финансовые возможности, то можно сделать камин. Главное назначение комнаты отдыха – расслабление, а что может лучше настроить на расслабление, чем вид огня и звук потрескивающих бревен?
Добавьте также элементы декора. Деревянные фигурки, сувениры в виде домового, банные шапочки, веники и прочие мелочи добавляют уют и помогают в создании атмосферы.
Обязательно в комнате отдыха должна быть и посуда, чтобы можно было перекусить и попить чай. Хорошим вариантом будет мини-кухня, если же ее нет, то приготовьте хотя бы чайник, чашки, тарелки, пару больших мисок, вилки, ложки, ножик и доску для резки. Этот минимальный набор в любом случае вам пригодится.
Проект бани с комнатой отдыха не требует огромной площади участка, даже небольшая баня может предусматривать наличие этого помещения. Безусловно, лучше выбирать проект с комнатой отдыха, в этом случае использование бани станет более удобным, и повысится качество отдыха.
Баня с спальней под ключ. Варианты
Если баня – это образ жизни или коммерческое вложение денег, то можно рассмотреть варианты с дополнительными опциями, которые украсят времяпрепровождение и отдых. Комбинированные варианты также пользуются популярностью.


С террасой
Если комната отдыха – это закрытое помещение, то на террасу приятно будет выйти, чтобы подышать свежим воздухом. На лето можно вообще перенести зону отдыха на улицу, оборудовав ее удобными креслами, столиком, гамаком или диванчиками с креслами. Зимой на террасу можно выйти остудиться.




Размер также может быть индивидуальным. Если терраса планируется как уличная зона отдыха, то ее можно сделать во всю ширину бани, а так же с поворотом. Просторную квадратную открытую веранду на одном фундаменте с баней и под одной с ней крышей использовать в качестве беседки в любое время.
Существует возможность обустройства бассейна на габаритной террасе
Навес не позволит воде сильно нагреваться от солнечных лучей, что так важно, когда хочется освежиться, а также в бассейн не будут лететь листья и пух в большом количестве


С бассейном
Если не хочется устанавливать бассейн на террасе, можно это сделать внутри бани. Для бассейна может быть выделено отдельное помещение, куда можно попасть сразу из парной, но чаще встречаются проекты, в которых бассейн находится непосредственно в помещении комнаты отдыха.


Небольшой вариант 2х2 с холодной водой может служить в качестве речной проруби. Подогрев понадобится для плавательных бассейнов. Для комфортного пребывания подойдет размер примерно 6х3. В качестве развлечения в таком банном водоеме можно установить водопады, водяные пушки или систему гидромассажа.
Контрастные окунания можно получить без сложного монтажа бассейна. Небольшие купели, напоминающие огромную бочку, есть в продаже в магазинах с оборудованием для бань. Для них не требуется рытье котлована, сложная отделка и система фильтров. Для комфортного погружения к купели ведет лесенка.
Баня с спальней под крышей. Проекты бань. Чертежи и фото
Проекты бань. Чертежи и фото Проекты бань. Чертежи и фото

Нет ничего лучше, чем отдых на даче или в загородном доме. Особенно если в этот отдых включено такое наслаждение для тела, как баня. Продумывая проект бани, важно учесть множество нюансов. Это выбор места, стройматериалов, вопрос, как провести внутренние отделочные работы, как правильно установить печь, и многое другое. В этой статье мы собрали для вас информацию, которая станет полезной на этапе принятия решения. С ее помощью вы определитесь с тем, как обустроить свое индивидуальное место для релакса.
При проектировании бани следует учитывать такие факторы:
- расположение на участке, будет ли она отдельным зданием или выступает как пристройка к дому;
- мощность обогревателя;
- сколько будет посетителей;
- толщина стен, отделка, наличие или отсутствие утеплителя.

Виды бань
Многообразие бань возникает от разницы культур и традиций. Благодаря этому изобилию мы можем выбирать тот микроклимат в бане, который оптимально подходит нам по температуре, влажности и выработке пара.
Наиболее важен для самочувствия микроклимат, и в соответствии с ним бани подразделяются на виды.
Паровая баня: турецкий хамам
В такой бане температура достигает 40-45°, влажность 90-100%. За счет такой невысокой температуры создается мягкий микроклимат. В бане можно не только хорошо отдохнуть, но и заняться собой, порадовав тело косметическими процедурами.
Паровая сауна: русская баня
45-70° по температуре и невысокая влажность – 40-65%. Пар конденсируется на коже, образуя своеобразную пленку, а организм нагревается намного сильнее вследствие теплопроводности воды.
Суховоздушная (финская) баня
Небольшая влажность, 8-20%, сочетается с высокой температурой 70-110°. Отсутствие пара и высокая температура способствуют максимальному прогреванию организма;
Влажная сауна: спортивная
Температура 75-95° при 100% влажности . Является одним из подвидов финской бани. Температура специально повышается за счет полива камней водой. Такая сауна становится местом соревнований на выносливость и представляет для организма вред и даже опасность.
Водяная баня: японская баня офуро
Традиционная баня с температурой 40-60° и влажностью 100%, является экзотической разновидностью бани. Это обычно деревянная бочка, которая подогревается. Прогревание кожи под водой способствует потоотделению и вымыванию шлаков и пота.
В банях также различается способ подогрева и нагнетания пара . Зная эти особенности, вы выберете баню с характеристиками, которые максимально устроят вас и вашу семью.

Основные помещения в бане
Каждый тип бани включает такие функциональные помещения:
- предбанник (раздевалка);
- парная;
- моечное помещение;
- комната отдыха.

Предбанник (раздевалка)
Предбанник еще называют тамбуром. Здесь посетители оставляют свою одежду, здесь хранятся веники и дрова. Предбанник выполняет ряд функций :
- является зоной с функцией буфера, выравнивающей переход температур от климата снаружи до температуры внутри бани;
- служит местом для досушивания дров;
- зачастую служит также комнатой, в которой отдыхают.
Дверь предбанника должна открываться наружу.



Парная комната
Эта комната является основным, базовым помещением постройки. Здесь поддерживается самая высокая температура и размещается печь. В углу парной находятся камни, с помощью которых создается пар. Под ними должно находиться жароустойчивое покрытие.
Здесь же находятся лавки, размещенные ступеньками. Две, как правило, предназначаются для сидения, одна – лежания. Обустраивая парную комнату, необходимо продумать нюансы:
- для материала, которым обшиваются потолок и стены, характерны определенные теплоизоляционные свойства, с их учетом рассчитывается глубина теплоизоляции комнат, используются конструктивные приемы;
- эффективная работа системы вентиляции обеспечивается специальным коробом или распахивающимся окном, имеющим двойное остекление. Расположение окна – напротив печки;
- дверной проем проектируется с повышенным порогом: так под дверь не проходит прохладный воздух и не снижается теплоэффективность. Сама дверь распахивается наружу;
- парное и моечное помещения должны разделяться, иначе снижается качественные показатели пара и температуры, увеличивается расход топлива.


Моечная комната
Моечная комната, зачастую это душевая кабинка, размещается возле парной . Если размеры строения позволяют, эти зоны являются отдельными друг от друга, в маленьких постройках совмещены. В крупных строениях здесь же оборудуется бассейн или купель.
Средняя площадь моечного помещения составляет 2000х2000мм, тогда есть где принимать водные процедуры и размещать емкости с водой, горячей и холодной.
Окно строится в полтора раза больше окна в парной. Увеличен и дверной проем – 1800х800мм, чтобы обеспечить больший комфорт. По сохранению тепла требования меньше, чем в парной. Порог делается высокий, а пол укладывается из специальной плитки во избежание скольжения и сопутствующих травм.
Баня с комнатой отдыха и спальней одноэтажная. Особенности
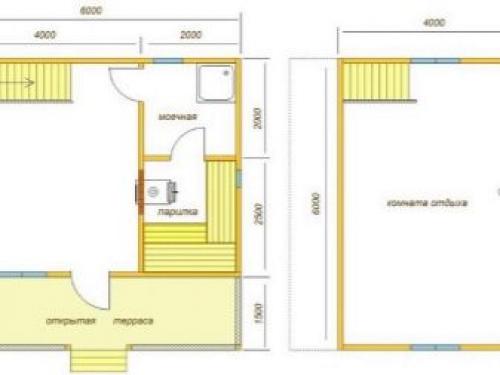
Проекты бани с комнатой отдыха можно разделить на три группы. Первая группа – традиционные одноэтажные бани. Они возводятся из капитальных строительных материалов с низкой теплопроводностью, имеют стандартный набор помещений: здесь есть парилка, душевая, комната отдыха, предбанник, иногда терраса.
Комната отдыха располагается на первом этаже рядом с парной и помывочной и соединяет в себе функции раздевалки. Это самый удобный вариант, который позволяет поддерживать оптимальную температуру во всех помещениях, так как печка равномерно обогревает все прилегающие комнаты с подачей пара в отделение сауны.
Такая планировка позволяет расположить топку печи и в парной, что не всегда удобно, и в комнате отдыха.
Истопник находится в комфортной температуре, к тому же легче убирать мусор после растопки. Современные технологичные печи длительного горения могут иметь стеклянный экран, что позволяет любоваться игрой пламени во время отдыха, создавая приятную каминную атмосферу и давая живое тепло обитателям комнаты. Простая планировка, тем не менее, включает все необходимое для банных процедур, имеет большую вариативность по площади.
Минимальная площадь строения – от 16 кв. метров , что удобно для небольших участков, максимальная – по желанию владельца. Этот варинант не требует больших капиталовложений из-за энергоемкости обогрева.
Вторая группа – проекты с комнатой отдыха, расположенной на мансарде или на втором этаже. Здесь потребуется возведение второго этажа или утепление кровли , что повлечет дополнительный расход материалов, фундамент потребуется усиливать на увеличение несущей нагрузки. Этот вариант удобен при небольшой площади строения.


На первом этаже размещают предбанник, раздевалку, парную, помывочную. На втором – комнату отдыха с балконом или без. Потребуется выделение пространства для лестничного марша. Красивая винтовая лестница может украсить интерьер бани.


Третья группа проектов – с вынесением комнаты отдыха на террасу. Такая планировка удобна для летнего использования. В холодное время года террасу потребуется застеклить и продумать систему обогрева. Однако такое расположение комнаты отдыха дает большой простор для воплощения дизайнерских решений.
Панорамный обзор пейзажа добавляет минутам отдыха эстетическое удовольствие.
Выбор планировки зависит от сезонности использования бани. Для круглогодичного применения подойдет первая и вторая группа проектов. Летом достаточно иметь комнату отдыха под навесом с гибким остеклением из пленки или поликарбоната для бюджетного варианта.
Большое значение имеет наличие свободной площади на участке, и если ее мало, то поднять на мансарду комнату отдыха будет хорошим выходом. Отопление второго этажа в холодное время года нуждается в устройстве воздушного или водного контура . Установка печи длительного горения с конвектором на первом этаже может решить эту проблему.
Размещение бани на участке должно отвечать нормам пожарной безопасности и удобству пользования. Окна комнаты отдыха желательно ориентировать на привлекательный видовой обзор . Приятно видеть красивые пейзажи перед глазами, а не забор или соседский сарай.
Желательно выбрать возвышенный участок для хорошей вентиляции и отвода воды . Эффектным дополнением может стать близость искусственного или естественного водоема.
Особое внимание уделяют материалам для строительства бани. Традиционно предпочтение отдается натуральному дереву в виде бруса или оцилиндрованного бревна липы, осины, кедра.
Сосна более доступна по цене, имеет красивый рисунок волокон сучковатой древесины и является популярным материалом для бани на даче. Недостатком ее является пористая структура древесины, которая сильно меняет показатели от нагрева и повышенной влажности, поэтому в парной и душевой сосну нужно обшить рейкой из твердых пород дерева, а для комнаты отдыха сосна с ее приятным запахом и эстетичным внешним видом будет оптимальным решением.
Кирпич – более дорогой материал, но он имеет самые лучшие показатели долговечности, устойчивости к перепадам температуры.
Бюджетную постройку можно возвести и из пеноблоков. Строительство бани из блоков можно выполнить своими руками, даже не имея специальных знаний.
Внутренние помещения обшиваются блок-хаусом, отделываются плиткой или натуральным камнем.
Оформление комнаты отдыха предполагает следование определенному стилю, в зависимости от дизайна подбирают отделочные материалы.
Баня для двоих. Баня для пары
Вы планируете романтическое свидание? Находитесь в поисках необычного времяпрепровождения вдвоем? Баня для пары – отличное решение, которое позволит вам остаться наедине и насладится обществом друг друга, к тому же вы сможете не только порелаксировать, но и получить мощный оздоровительный заряд, посетив комплексные СПА-программы «на двоих».
Загородный оздоровительный комплекс «Таёжные бани» - это баня на двоих в Москве. Такие услуги пользуются у нас весьма большой популярностью, ведь мы предлагаем действительно достойные интерьеры и высококлассный сервис. У нас всегда приятно находиться – богатые и эксклюзивные интерьеры, лучшие банщики и массажисты, избранные оздоровительные программы – мы подарим вам эмоции!
Вы можете выбрать любой из понравившихся по дизайну срубов по приемлемой цене, а если попадете на акцию, которые кстати случаются регулярно, то скидка за аренду может составить до 50%. Мы предлагаем почасовую оплату на домики с парной или хамамом, а также ряд дополнительных услуг. Для того, чтобы сделать романтическое свидание незабываемым, вы можете заказать услугу «Винной бочки» или «Бочки с шампанским». Тайский массаж СПА или массаж с травяными мешочками, программы комплексного оздоровления и многое другое – вы можете составить индивидуальную программу и провести досуг незабываемо. Наш комплекс идеально подходит для того, чтобы провести у нас брачную ночь или «медовые» выходные. Ведь «Таёжные бани» - это не просто банный центр, а настоящий загородный комплекс. После того, как вы посетите у нас в Москве русскую баню на дровах на двоих, вы можете отправится в ресторан, где вам предложат изысканные блюда от нашего шеф-повара, а потом мы предложим вам снять номер в нашем отеле. Утро вы можете начать активно, забронировав пару часов на профессиональном теннисном корте. Насытьте свое романтическое свидание разноформатными событиями и тогда выходные запомнятся вам надолго.
Русская баня на дровах в Москве на двоих недорого
Вас впечатлил наш сценарий, но у вас ограничен бюджет? «Таёжка» - это баня на двоих в Москве недорого. Мы предложим вам индивидуальный подход и предоставим существенную скидку при заказе комплексных услуг. Если же вы хотите просто тихо, уютно и по-семейному попариться, тогда забронируйте исключительно аренду сруба с услугами банщика. Стоимость аренды сруба по акции в нашем комплексе начинается от 3 000 рублей. Это небольшая цена за «идеальное» свидание. Не так ли?
Сделайте незабываемый сюрприз своей второй половинке и не важно, в начале вы отношений или их уже требуется «освежить». Все больше клиентов однажды попробовав такой формат отдыха в дуэте, возвращаются к нам снова – ведь это отличная возможность побыть вдали от вечного напряжения и стрессов и посвятить себя друг другу без остатка.
Обратитесь к нашему администратору и обозначьте цель вашего пребывания, и мы поможем сориентироваться в многообразии «романтических» услуг в нашем комплексе. Официальной статистики конечно никто не ведет, но мы точно знаем, что в стенах нашего комплекса было сделано ни одно предложение руки и сердца. Очень многие пары приходят к нам постоянно и пробуют разные процедуры. Среди самых любимых – ароматический ойл-массаж. Такой формат позволяет не только получить 100% релакс, но и дружно обсудить свои ощущения после каждой из процедур.
Загородный воздух, полный сервис, вкусная кухня и нескончаемая романтика. «Таёжные бани» - это отличное место для ваших свиданий!