Планировка одноэтажного дома 100 кв м. Одноэтажный дом площадью 100 кв.м
- Планировка одноэтажного дома 100 кв м. Одноэтажный дом площадью 100 кв.м
- Проект дома 100 кв с 3 спальнями. С местом под автонавес или гараж
- Лучшая планировка одноэтажного дома. Планировка одноэтажного дома: ТОП-100 фото оригинальных идей и современного дизайна
- Проекты одноэтажных домов. Одноэтажные дома
Планировка одноэтажного дома 100 кв м. Одноэтажный дом площадью 100 кв.м
Одноэтажный жилой дом площадью 100 м2 – бюджетный вариант для семьи из 3-4 человек, которая мечтает о собственном жилье.
Особенности планировки
В таком доме есть все необходимые помещения, чтобы расположиться с комфортом.
Небольшая прихожая вместит шкаф для верхней одежды, полку для обуви и банкетку, чтобы присесть и переобуться.
В гостиной, где семья будет проводить вечернее время, есть пространство для зоны отдыха с мягкой мебелью и телевизором. При желании найдётся место и для камина.
Кухня-ниша может быть частью общей комнаты, но может быть выделена и в самостоятельное помещение. В доме разместятся три удобные спальни, одна из них – для родителей, а две других – для детей.

Одноэтажный дом площадью 100 кв.м

Одноэтажный дом площадью 100 кв.м

Одноэтажный дом площадью 100 кв.м
Если ребёнок в семье один, другую комнату легко переоборудовать в кабинет. При необходимости дополнительную площадь можно отвести под хозяйственные помещения: бойлерную, кладовую, постирочную. Для удобства имеются два санузла: туалет и ванная комната.
Как выбрать проект дома площадью 100 м2
В интернете можно найти множество проектов для строительства дома площадью 100 м2. Разберёмся, что необходимо учесть, чтобы выбрать подходящее решение.
- Подумайте, насколько подходит выбранный проект для вашего образа жизни. От этого зависит количество и назначение помещений, особенности планировки. Если вы часто собираете друзей, потребуется большая гостиная. Если увлекаетесь садоводством и огородничеством, нужно больше хозяйственных помещений. Если для вас главное – дети, хорошо иметь больше спален и игровых пространств.
- Посмотрите, устраивают ли вас площади комнат и их пропорции. Для справки: Площадь спальни на одного человека составляет 8 м2, на двоих – не меньше 12 м2. Площадь общей комнаты обычно составляет 16–24 м2. Кухня – 8 м2, для кухни-ниши хватит 5–6 м2.
- Предположите, как дом впишется в участок. Для этого вычертите в масштабе контуры дома на бумаге, вырежьте прямоугольник и перемещайте его на плане земельного участка. Обращайте внимание на ориентацию комнат по сторонам света. Важно: окна спален лучше обратить на юго-восточную и юго-западную стороны. При таком расположении они будут дольше освещаться солнцем, а это благотворно скажется на здоровье.
- Обратите внимание, для какого климата разработан проект. Толщина наружных стен и площадь остекления будет разной для Черноморского побережья и Западной Сибири.
Из чего построить
Разные строительные материалы предполагают разную стоимость и сроки строительства дома. Популярные материалы для строительства: кирпич, газобетонные блоки, деревянный брус.

Дом из кирпича долговечен и выглядит представительно. Кирпичная кладка не разрушается от резких перепадов температуры наружного воздуха, не поддерживает распространение огня, ей не страшны гниение и плесень. Фасады из кирпича красивы за счёт архитектурных деталей – поясов, карнизов, рустов. Облицовочный кирпич разного цвета и фактуры помогает сделать облик дома выразительнее.

Крупноразмерные газобетонные блоки позволяют возвести дом очень быстро – за один сезон. Преимущества газобетона: лёгкость, прочность, огнестойкость, малая теплопроводность, стойкость к биологическому воздействию. При этом его нельзя сильно нагружать, поэтому он используется только для частных домов. Желательно сразу облицевать фасад. Пористый материал хорошо вбирает влагу, поэтому возможно его разрушение.
Дома из бруса экологичны и комфортны для проживания. Они хорошо сохраняют тепло зимой, а летом в них достаточно прохладно. Красивая фактура дерева не требует дополнительной отделки. При этом брус надо периодически обрабатывать специальными составами, предотвращающими распространение огня. Чтобы стены не заражались грибком и не подвергались гниению, их пропитывают биозащитными растворами.



Теперь вы имеете чёткое представление о собственном образе жизни, сформулировали требования к будущему дому, взвесили все «за» и «против» по выбору материалов.
Вы сможете легко найти подходящий проект одноэтажного дома площадью 100 м2.
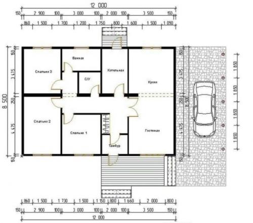
Проект дома 100 кв с 3 спальнями. С местом под автонавес или гараж
Если рядом с домом надо разместить навес для машины или гараж, можно изменить планировку так чтобы вход в дом был ближе к месту стоянки. Тогда есть возможность объединить навес стоянки и крыльца. Получится может очень даже интересно.
При планировании навеса лучше найти место под две машины. Даже если машина у вас одна, к вам будут приезжать гости и намного удобнее, если ее можно поставить под крышу. Расходы на обустройство не слишком отличаются, а всегда надо смотреть на перспективу. Может и у вас появится вторая машина.

Проект 1 этажного дома стремя спальнями и навесом для машины
Чем хорош еще навес для машины? Под ним можно оборудовать место для хранения всякого инвентаря: автомобильного, садового. Там же можно отгородить место под дровник или поленницу — чтобы иметь возле дома запас сухих дров. Вообще, использовать эту зону можно по-разному. И оптимальные размеры ее — 8*9 метров или около того. Это, если площадь участка позволяет. Если нет, можно исходить из минимальных габаритов — на 2 метра шире и на 1,5 длиннее вашего авто.
Представленный выше проект одноэтажного дома с тремя спальнями имеет площадь 100 квадратных метров, выполнен в виде прямоугольника со сторонами 8,8*12 метров. Расположение спален все такое-же — одним блоком, все технические помещения также сведены в одном месте. При такой планировке коридор получается совсем небольшим, что многих обрадует, но это будет «проходная» зона, в которой ничего не поставишь.
Лучшая планировка одноэтажного дома. Планировка одноэтажного дома: ТОП-100 фото оригинальных идей и современного дизайна
Проекты одноэтажных домов с планировкой пользуются наибольшей популярностью среди других проектов недвижимости. В первую очередь это связано с тем, что одноэтажный дом вполне подойдет фактически для любого частного участка.

Кроме того, существует большое количество проектов, которые максимально компактны, но при этом располагают большим функционалом и удобством.

Распространенные решения
Очень часто используются проекты планировки одноэтажного дома из пеноблоков. Это относительно дешевый способ строительства, при котором можно возвести достаточно красивый и прочный дом, способный прослужить несколько десятков лет.

Этот способ подойдет в том случае, если необходимо уложиться в ограниченный бюджет, при этом сделать конструкцию достаточно прочной и устойчивой к различным климатическим условиям.
Если площадь участка позволяет, очень часто используют проект планировки одноэтажного дома с гаражом. Фактически это самый востребованный тип планировки. Иметь собственный гараж очень удобно, не нужно далеко ходить, чтобы забрать или поставить машину.

К тому же, итоговая стоимость встраивания гаража в территорию дома будет ниже, чем ежемесячная аренда или полноценная покупка.

Даже если у хозяина еще нет автомобиля, гараж вполне может использоваться как дополнительная комната. Туда можно провести отопление, оборудовать пол под жилое помещение, и фактически это будет второй комнатой, при том достаточно вместительной.
Гараж, как правило, размещается на первом этаже, либо в небольшом углублении, образуя собой цокольный этаж. Проект с углублением немного дороже, потому как предварительно необходимо подготовить грунт, снять несколько слоев, вырыть достаточный котлован, чтобы в нем поместилась вся конструкция.

При классическом размещении гаража на первом этаже нет необходимости в дополнительных строительных работах, что позволяет снизить итоговую стоимость постройки.

Оптимальный вариант
Занимаясь разработкой собственного проекта для одноэтажного дома, или выбирая из нескольких уже готовых, в первую очередь необходимо обращать внимание на наличие и размер самых основных помещений в доме. К таким относится кухня, гостиная, санузел, спальни. Они должны быть достаточного размера, чтобы там можно было обеспечить комфортные условия проживания.

Очень часто применяются отличные планировки одноэтажного дома с цокольным этажом. Это немного дороже, чем при строительстве классического дома, однако добавляет большое количество свободного пространства. В этом случае на первом этаже можно разместить большую кухню с гостиной и санузлом.

На цокольном этаже можно разместить сразу несколько спален, комнату отдыха и что-либо еще. При этом внешне дом будет выглядеть достаточно компактным, а внутри будет располагать большим количеством просторных комнат.
Такие проекты пользуются популярностью у больших семей, в которых необходимо создать большое количество отдельных спален. На фото планировки одноэтажного дома видно, что внешне такие дома не сильно отличаются друг от друга, потому как такое жилье относится к категории классического.

При желании внешний дизайн можно запросто изменить, внести фактически любые коррективы.

Особенности
Планировка одноэтажного дома с печкой немного сложнее классических вариантов, однако и более востребована. Печка, в свою очередь может быть представлена полноценным большим камином, у которого впоследствии сможет греться вся семья.
Встраивание такого камина требует использования особых материалов, обладающих устойчивостью к возгоранию. В особенности это касается отделки, находящейся в непосредственной близости к камину.

Сама печка очень часто выполняется из металлических материалов, потому как это самый выгодный, и при этом экономный вариант. Внешняя облицовка может быть представлена камнем, искусственным камнем, кирпичом и т.д. Внешняя облицовка камина не имеет никакой практической пользы, однако существенно влияет на внешний вид помещения, в котором расположена печка.

В классическом варианте камин располагается в большой гостиной, посередине одной из самых широких стен. Напротив располагается диван и кресла, над камином может быть установлен телевизор. Это одна из самых удобных вариаций интерьера в гостиной с камином.
Также его можно разместить на кухне, более того, иногда его совмещают с рабочей поверхностью, образуя своеобразное хранилище для приготовленной еды. В таком хранилище она долгое время не будет терять тепло, в результате чего ее можно будет подать горячей даже спустя несколько часов после приготовления.

Такой вариант очень удобен, однако требует достаточного пространства на кухне. Сама комната должна быть просторной, чтобы подобное хранилище не перегружало интерьер.

Проекты одноэтажных домов. Одноэтажные дома
112 записей
Проекты одноэтажных домов являются наиболее комфортными по сравнению с двухэтажными. К преимуществам одноэтажных домов можно отнести:
- отсутствие лестницы на второй этаж как объект потенциальной опасности и которая съедает пространство.
- в одноэтажных домах все перемещения происходят на одном уровне, это проще и быстрее
- одноэтажный дом дешевле в обслуживании, для восстановительных и ремонтных работ подойдет обычная лестница. А для второго этажа могут понадобиться строительные леса, за аренду которых надо платить.
К недостаткам одноэтажных домов можно отнести:
- кровельные работы обойдутся дороже, поскольку площадь крыши больше;
- фундамент обойдется дороже опять же из-за большой площади дома;
- низкая энергоэффективность. Тепло уходит на «холодный чердак».
Рассматривая одноэтажный дом или двухэтажный дом, с финансовой точки зрения, сведения выходят довольно противоречивы.
Проекты одноэтажных домов — удобны и просты
Приблизительные результаты такие:
- для одноэтажной постройки более дорогими будут земляные работы, заливка фундамента, устройство крыши и кровли.
- в двухэтажном коттедже выше расходы на кладку и утепление наружных стен, установку лестницы, монтаж дополнительных лесов.
При примерном сравнении объемов работ небольшой перевес получает особняк с двумя этажами. Но, как правило, не учитываются конструктивные особенности того или иного решения. А ведь они сильно влияют на результат вычислений. Поэтому дать однозначный ответ, какой дом построить — одноэтажный или двухэтажный, чтобы было значительно дешевле, невозможно.