Проекты бань с комнатой отдыха. Типовые проекты одноэтажных бань
- Проекты бань с комнатой отдыха. Типовые проекты одноэтажных бань
- Проекты бань с комнатой отдыха и террасой с барбекю. Индивидуальные черты проектов
- Баня с гостевой комнатой проект. Проекты бань. Чертежи и фото
- Проекты бань из кирпича с комнатой отдыха. Баня из кирпича: плюсы и минусы
- Бани 6х6 проекты и планировка. Баня с террасой
- Лучшие проекты бань. Особенности
- Баня с беседкой и барбекю под одной крышей проекты. Выбор расположения бани с террасой и печью на участке
- Видео проект бани с комнатой отдыха и террасой | Строительство бани из пеноблока. Ремстройсервис - М-277
Проекты бань с комнатой отдыха. Типовые проекты одноэтажных бань
Вариантов проектирования бань – бесконечное количество, и практически все они индивидуальны — ведь стоит внести даже небольшое изменение, и любая планировка становится эксклюзивной. Однако есть типовые проекты, которые служат основой для разработки собственной схемы.
Бани могут быть мини-размеров — 2х2, 2х3 с ограниченным количеством помещений. Это может большой комплекс, предназначенный для жилья и совмещенный с баней: 8х8, 7 на 10, 9х9, 10х10 м — с отдельной парилкой, с просторным предбанником, с полноценной комнатой отдыха.


Кроме того, баня может быть выстроена в традиционном стиле — 2 на 3 . Если площадь и финансы позволяют, то реально осуществить проект намного больше — с парной, моечной, комнатой отдыха и прочее. Здание можно выстроить полноценным комплексом — с кухней, гостиной с эркером, камином.
Отличный вариант – это баня 70 кв. м, достаточно просторная, чтобы вместить все необходимые и дополнительные помещения. Например, санузел, душевая кабина. Все это вполне реально, если грамотно продумать планировку и выполнить точные чертежи.
С крыльцом
Поскольку баня – это строение специфического назначения, ее часто устанавливают на цоколе, чья средняя высота равна 30–50 см. В этом случае конструкция нуждается в небольшом крыльце — 2–3 ступени. Если высота цоколя выше, то и крыльцо строят выше. Когда для подъема нужно всего пару ступеней, их делают без перил, если же выше, то уже желательно наличие ограничителей. Варианты конструкций:
- маленькое, отдельно пристроенное крыльцо под козырьком;
- большой вариант на одном фундаменте с баней под общей крышей.
Кроме того, просторное крыльцо зачастую возводят вместе с террасой закрытого или открытого типа, пристраивая к бане на отдельном фундаменте.


Со спальней
Для этой цели наиболее подходит строение в двух уровнях — полноценное двухэтажное или с мансардой. Такую баню можно использовать как гостевой или жилой дом. На нижнем уровне обустроена баня со всем сопутствующим оборудованием, а верхний поделен на зоны, в зависимости от размеров здания — спальня, возможно, бильярдная, выход на балкон.
Нужно учитывать, что второй этаж автоматически увеличивает расходы на строительство и коммуникации — второй этаж надо обогревать, если дом предназначен для круглогодичного использования.
С зоной отдыха
Дополнительный функционал в виде оборудованной во внешнем пространстве зоны отдыха с барбекю, беседкой, плитой для приготовления пищи, садовой мебелью повышает уровень комфорта. Оптимальный вариант – это расположение под одной крышей, чтобы можно было выйти после бани сразу на свежий воздух, без лишнего передвижения по участку.

Такая планировка обеспечивает широкий спектр использования, который можно еще повысить, предусмотрительно защитив от насекомых, позаботившись об освещении. Таким образом, зоной можно пользоваться в вечернее и ночное время.

Проекты бань с комнатой отдыха и террасой с барбекю. Индивидуальные черты проектов
Различные архитектурные бюро предлагают множество вариантов проектов бани с террасой. Каждый из них опирается на определенные требования, касающиеся используемых материалов, места размещения и способов монтажа. Это связано с тем, что бывают проекты бань 6х4 с террасой или проект бани 6х6 с террасой требуют определенной выделенной территории под них.
Проект бани 6х6 с открытой террасой
Для входа на террасу предусмотрено небольшое крыльцо с тремя ступеньками. Сама площадка достаточно просторная. И на ней без проблем расположится печь с мангалом или барбекю-зона
Принято считать, что для средней семьи достаточной площадью открытой зоны отдыха является 8-10 м 2 .
На такой территории можно уютно расположиться даже нескольким гостям. При этом учитываются определенные нюансы расположения открытой пристройки:
- Проект бани с большой террасой и барбекю может предполагать расположение открытой площадки вдоль наибольшей стенки строения или же в торце здания рядом с выходом из него.
- В некоторых случаях на маленьких участках жертвуют пространством предбанника в проектах бани с комнатой отдыха на втором этаже и террасой рядом со зданием. Такой подход также позволит сэкономить не только площадь, но и средства на используемые материалы.
- Оригинальная декоративная ограда обозначит периметр зоны отдыха под навесом в проектах бань с большой террасой.
- Во время составления плана территории с монтажом печи или мангала, необходимо предусмотреть надежный дымоотвод, чтобы продукты горения не создавали дискомфорт на площадке.
- Для проекта угловой бани с террасой зона барбекю выделяется дальний угол, а отвод дыма осуществляется через трубу, выведенную за крышу.
Баня с гостевой комнатой проект. Проекты бань. Чертежи и фото
Проекты бань. Чертежи и фото Проекты бань. Чертежи и фото

Нет ничего лучше, чем отдых на даче или в загородном доме. Особенно если в этот отдых включено такое наслаждение для тела, как баня. Продумывая проект бани, важно учесть множество нюансов. Это выбор места, стройматериалов, вопрос, как провести внутренние отделочные работы, как правильно установить печь, и многое другое. В этой статье мы собрали для вас информацию, которая станет полезной на этапе принятия решения. С ее помощью вы определитесь с тем, как обустроить свое индивидуальное место для релакса.
При проектировании бани следует учитывать такие факторы:
- расположение на участке, будет ли она отдельным зданием или выступает как пристройка к дому;
- мощность обогревателя;
- сколько будет посетителей;
- толщина стен, отделка, наличие или отсутствие утеплителя.

Виды бань
Многообразие бань возникает от разницы культур и традиций. Благодаря этому изобилию мы можем выбирать тот микроклимат в бане, который оптимально подходит нам по температуре, влажности и выработке пара.
Наиболее важен для самочувствия микроклимат, и в соответствии с ним бани подразделяются на виды.
Паровая баня: турецкий хамам
В такой бане температура достигает 40-45°, влажность 90-100%. За счет такой невысокой температуры создается мягкий микроклимат. В бане можно не только хорошо отдохнуть, но и заняться собой, порадовав тело косметическими процедурами.
Паровая сауна: русская баня
45-70° по температуре и невысокая влажность – 40-65%. Пар конденсируется на коже, образуя своеобразную пленку, а организм нагревается намного сильнее вследствие теплопроводности воды.
Суховоздушная (финская) баня
Небольшая влажность, 8-20%, сочетается с высокой температурой 70-110°. Отсутствие пара и высокая температура способствуют максимальному прогреванию организма;
Влажная сауна: спортивная
Температура 75-95° при 100% влажности . Является одним из подвидов финской бани. Температура специально повышается за счет полива камней водой. Такая сауна становится местом соревнований на выносливость и представляет для организма вред и даже опасность.
Водяная баня: японская баня офуро
Традиционная баня с температурой 40-60° и влажностью 100%, является экзотической разновидностью бани. Это обычно деревянная бочка, которая подогревается. Прогревание кожи под водой способствует потоотделению и вымыванию шлаков и пота.
В банях также различается способ подогрева и нагнетания пара . Зная эти особенности, вы выберете баню с характеристиками, которые максимально устроят вас и вашу семью.

Основные помещения в бане
Каждый тип бани включает такие функциональные помещения:
- предбанник (раздевалка);
- парная;
- моечное помещение;
- комната отдыха.

Предбанник (раздевалка)
Предбанник еще называют тамбуром. Здесь посетители оставляют свою одежду, здесь хранятся веники и дрова. Предбанник выполняет ряд функций :
- является зоной с функцией буфера, выравнивающей переход температур от климата снаружи до температуры внутри бани;
- служит местом для досушивания дров;
- зачастую служит также комнатой, в которой отдыхают.
Дверь предбанника должна открываться наружу.



Парная комната
Эта комната является основным, базовым помещением постройки. Здесь поддерживается самая высокая температура и размещается печь. В углу парной находятся камни, с помощью которых создается пар. Под ними должно находиться жароустойчивое покрытие.
Здесь же находятся лавки, размещенные ступеньками. Две, как правило, предназначаются для сидения, одна – лежания. Обустраивая парную комнату, необходимо продумать нюансы:
- для материала, которым обшиваются потолок и стены, характерны определенные теплоизоляционные свойства, с их учетом рассчитывается глубина теплоизоляции комнат, используются конструктивные приемы;
- эффективная работа системы вентиляции обеспечивается специальным коробом или распахивающимся окном, имеющим двойное остекление. Расположение окна – напротив печки;
- дверной проем проектируется с повышенным порогом: так под дверь не проходит прохладный воздух и не снижается теплоэффективность. Сама дверь распахивается наружу;
- парное и моечное помещения должны разделяться, иначе снижается качественные показатели пара и температуры, увеличивается расход топлива.


Моечная комната
Моечная комната, зачастую это душевая кабинка, размещается возле парной . Если размеры строения позволяют, эти зоны являются отдельными друг от друга, в маленьких постройках совмещены. В крупных строениях здесь же оборудуется бассейн или купель.
Средняя площадь моечного помещения составляет 2000х2000мм, тогда есть где принимать водные процедуры и размещать емкости с водой, горячей и холодной.
Окно строится в полтора раза больше окна в парной. Увеличен и дверной проем – 1800х800мм, чтобы обеспечить больший комфорт. По сохранению тепла требования меньше, чем в парной. Порог делается высокий, а пол укладывается из специальной плитки во избежание скольжения и сопутствующих травм.
Проекты бань из кирпича с комнатой отдыха. Баня из кирпича: плюсы и минусы

Баня – это незаменимое средство для расслабления после тяжёлого дня, отличное место для встречи с друзьями. Воспользоваться услугами строительной компании удобно, но выложить придётся крупную сумму.
Многие дачники предпочитают строить бани своими руками.
Преимущества и недостатки
Традиционно русские бани строили из дерева. В наше время всё чаще для таких целей используют огнестойкий кирпич, который более безопасен, при этом не менее экологичен. Данный строительный материал удобен в применении и позволяет воплотить в жизнь проект бани любой сложности. Перед началом строительства кирпичной бани необходимо ознакомиться с преимуществами и недостатками самого материала и строения из него.
Огнестойкий кирпич стоит дороже древесины, но и плюсов у него немало, а именно:
- высокий уровень пожарной безопасности – по степени огнеустойчивости кирпич значительно превосходит дерево. Огнеупорный кирпич отлично противостоит пожару, чего не скажешь о дереве;
- долговечность – баня, построенная из кирпича, может прослужить более 50 лет;
- экологичность – при изготовлении кирпича используется натуральное, природное сырьё, материал не представляет опасности для здоровья человека;
- простота в эксплуатации – не требуется особого ухода за кирпичным фасадом бани;
- применение кирпича позволит сооружать бани разнообразных форм и размеров, воплощать даже сложнейшие архитектурные проекты, использовать различные виды внутренней и наружной отделки. Прочность постройки позволяет экспериментировать с внутренней планировкой и формой крыши.
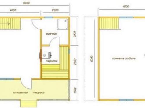
Бани 6х6 проекты и планировка. Баня с террасой
Планировка этой бани отличается повышенным комфортом. К плюсам бани 6х6 с террасой можно отнести максимально большую комнату отдыха, где разместится не только стол с сиденьями, но и дополнительное оборудование. Для бани 6 на 3 планировка может также включать террасу, которую располагают по длинной стороне.
Парная и душевая не рассчитаны на единовременное посещение большого количества человек, но компактные размеры позволяют быстро прогревать эти помещения и использовать «посменно».
Открытая терраса идеально подходит, чтобы удобно расположиться на ней в теплое время года после прохождения банных процедур. Для бани 6х6 планировка, фото которой размещено ниже, является одним из проверенных типовых вариантов.
Баня 6х6 с террасой и мансардой
Баня из бруса 6х6 с мансардой преподносит массу вариантов для использования дополнительного пространства. Это может быть, например, еще одна комната отдыха большого размера, где можно оборудовать бильярдную.
Кроме того, на мансарде можно оборудовать комнату для гостей, которые приезжают и остаются ночевать, или большую столовую для проведения праздников, банкетов и вечеринок.
Проект дополнительно оборудован вместительным балконом, который позволяет с комфортом расположиться на нем всем желающим.
Баня с мансардой
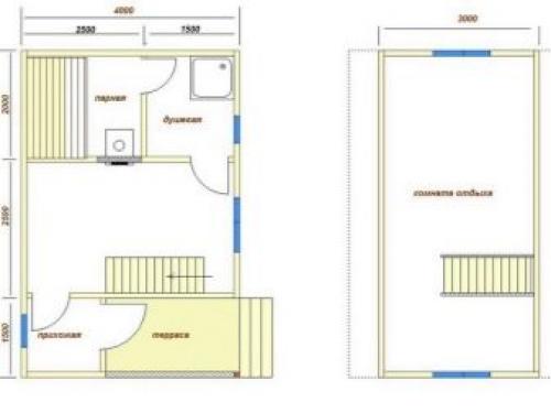
Еще один неплохой вариант планировки «оздоровительного домика» – баня 6х6 из бруса с крыльцом и мансардой. Здесь зонам отдыха отведено максимальное пространство. К положительным чертам такой планировки относятся:
- Наличие небольшого тамбура, туда попадаешь с крыльца. Он станет дополнительной преградой на пути холодного воздуха и позволит дольше сохранить тепло в помещении.
- Окна в комнате отдыха и душевой позволяют достичь высокого уровня естественного освещения.
- В парилке от окна отказались для снижения теплоотдачи в помещении.
- Большая мансарда предоставляет массу вариантов использования полезного пространства.
К минусам подобной планировки можно отнести небольшую площадь функциональных помещений: парилки и душевой, а также отсутствие санузла. Но при большом желании и этот недостаток можно исправить, баня 6х3, планировка которой позволяет разгуляться еще меньше, и вовсе не предоставит такого шанса.
Баня 6х6 с мансардой и террасой
Максимально аскетический и бюджетный вариант планировки бани. К его плюсам относятся большой размер комнаты отдыха, мансарда без перегородок и открытая терраса, где дополнительно размещается необходимое оборудование, например, мангал.
Лучшие проекты бань. Особенности
Проекты бани с комнатой отдыха можно разделить на три группы. Первая группа – традиционные одноэтажные бани. Они возводятся из капитальных строительных материалов с низкой теплопроводностью, имеют стандартный набор помещений: здесь есть парилка, душевая, комната отдыха, предбанник, иногда терраса.
Комната отдыха располагается на первом этаже рядом с парной и помывочной и соединяет в себе функции раздевалки. Это самый удобный вариант, который позволяет поддерживать оптимальную температуру во всех помещениях, так как печка равномерно обогревает все прилегающие комнаты с подачей пара в отделение сауны.
Такая планировка позволяет расположить топку печи и в парной, что не всегда удобно, и в комнате отдыха.
Истопник находится в комфортной температуре, к тому же легче убирать мусор после растопки. Современные технологичные печи длительного горения могут иметь стеклянный экран, что позволяет любоваться игрой пламени во время отдыха, создавая приятную каминную атмосферу и давая живое тепло обитателям комнаты. Простая планировка, тем не менее, включает все необходимое для банных процедур, имеет большую вариативность по площади.
Минимальная площадь строения – от 16 кв. метров , что удобно для небольших участков, максимальная – по желанию владельца. Этот варинант не требует больших капиталовложений из-за энергоемкости обогрева.
Вторая группа – проекты с комнатой отдыха, расположенной на мансарде или на втором этаже. Здесь потребуется возведение второго этажа или утепление кровли , что повлечет дополнительный расход материалов, фундамент потребуется усиливать на увеличение несущей нагрузки. Этот вариант удобен при небольшой площади строения.


На первом этаже размещают предбанник, раздевалку, парную, помывочную. На втором – комнату отдыха с балконом или без. Потребуется выделение пространства для лестничного марша. Красивая винтовая лестница может украсить интерьер бани.


Третья группа проектов – с вынесением комнаты отдыха на террасу. Такая планировка удобна для летнего использования. В холодное время года террасу потребуется застеклить и продумать систему обогрева. Однако такое расположение комнаты отдыха дает большой простор для воплощения дизайнерских решений.
Панорамный обзор пейзажа добавляет минутам отдыха эстетическое удовольствие.
Выбор планировки зависит от сезонности использования бани. Для круглогодичного применения подойдет первая и вторая группа проектов. Летом достаточно иметь комнату отдыха под навесом с гибким остеклением из пленки или поликарбоната для бюджетного варианта.
Большое значение имеет наличие свободной площади на участке, и если ее мало, то поднять на мансарду комнату отдыха будет хорошим выходом. Отопление второго этажа в холодное время года нуждается в устройстве воздушного или водного контура . Установка печи длительного горения с конвектором на первом этаже может решить эту проблему.
Размещение бани на участке должно отвечать нормам пожарной безопасности и удобству пользования. Окна комнаты отдыха желательно ориентировать на привлекательный видовой обзор . Приятно видеть красивые пейзажи перед глазами, а не забор или соседский сарай.
Желательно выбрать возвышенный участок для хорошей вентиляции и отвода воды . Эффектным дополнением может стать близость искусственного или естественного водоема.
Особое внимание уделяют материалам для строительства бани. Традиционно предпочтение отдается натуральному дереву в виде бруса или оцилиндрованного бревна липы, осины, кедра.
Сосна более доступна по цене, имеет красивый рисунок волокон сучковатой древесины и является популярным материалом для бани на даче. Недостатком ее является пористая структура древесины, которая сильно меняет показатели от нагрева и повышенной влажности, поэтому в парной и душевой сосну нужно обшить рейкой из твердых пород дерева, а для комнаты отдыха сосна с ее приятным запахом и эстетичным внешним видом будет оптимальным решением.
Кирпич – более дорогой материал, но он имеет самые лучшие показатели долговечности, устойчивости к перепадам температуры.
Бюджетную постройку можно возвести и из пеноблоков. Строительство бани из блоков можно выполнить своими руками, даже не имея специальных знаний.
Внутренние помещения обшиваются блок-хаусом, отделываются плиткой или натуральным камнем.
Оформление комнаты отдыха предполагает следование определенному стилю, в зависимости от дизайна подбирают отделочные материалы.
Баня с беседкой и барбекю под одной крышей проекты. Выбор расположения бани с террасой и печью на участке
Перед началом строительства комплекса необходимо выбрать место его расположения. Традиционно, дачные участки разделяются на жилую и хозяйственную зоны, территорию сада и огорода, а также пространство для отдыха, оформленное по вкусу хозяев.
Баня с беседкой и барбекю – объект для отдыха и приёма гостей, поэтому рекомендуется размещать его вдали от жилой и хозяйственной зоны, чтобы не мешать обычному течению жизни владельцев. Например, запах готовящегося в беседке мяса может помешать детям, а шумные застолья – нарушить ночной отдых. Оптимальный вариант – проект бани с беседкой под одной крышей, окружённый садом и расположенный вблизи входа на участок. Если основное строение уже готово, можно и впоследствии разместить беседку возле бани, но на стадии проектирования будет логичнее всё объединить.
Владельцы просторных земельных угодий выбирают полноценные кухонные комплексы, позволяющие готовить изысканные блюда, превращают баню с беседкой и барбекю в отдельный гостевой дом. Если размеры участка скромны, целесообразно обратить внимание на двухэтажные постройки, где над баней возводится мансарда. Подобные варианты экономят массу пространства, при этом совмещают зону отдыха и хозяйственную постройку.
Угловая баня с беседкой под одной крышей – хорошее решение для собственников миниатюрных участков. Беседка может быть расположена ближе ко входу на участок, позволяя гостям свободно перемещаться, не мешая остальным.
Различные варианты планировки бани с террасой и печью
Основные помещения комплекса для отдыха – предбанник, парная, помывочная (душевая), и просторная гостиная (зона отдыха). Планировка, размер и перечень комнат, терраса, а также форма крыши зависит от предпочтений хозяев.
Распространённый вариант – открытая терраса, вплотную примыкающая к предбаннику. В тёплое время года такие комплексы используются как летние кухни, на открытой территории размещается печь для барбекю, цветущие растения, мебель для отдыха. С наступлением зимы открытая площадка теряет свою функциональность.
Застеклённая веранда, дополняющая проект бани с беседкой, часто дополняется камином или печью. В итоге получается не просто баня вместе с дополнительным пространством - создаётся полноценная постройка для отдыха, размещения гостей для временного проживания в любой сезон.
Варианты размещения веранды
Создание бани с отдельно стоящей верандой – наиболее доступный по цене и простой в возведении вариант. При этом необходимо подготовить отдельный фундамент для постройки, а также сделать кровлю. Для удобства гостей рекомендуется обустроить дорожку от бани до веранды.
Пристройка бани с зоной барбекю под одной крышей с основным помещением – более сложный технологически, но быстрый и экономичный вариант создания комплекса для отдыха. Чаще всего терраса имеет общую стену с баней, а также фундамент и крышу, возведение обеих построек происходит одновременно.
Стропильная система для бани с беседкой под удлинённой двускатной крышей
Стропильная система представляет собой соединения деревянных балок, на которые после постройки будет крепиться кровля (черепица, ондулин, металлический профиль). Оптимальный вариант кровли для бани с беседкой – двускатная крыша, обеспечивающая естественное стекание осадков, простая и удобная в монтаже.
Стропила изготавливаются из досок шириной 50 мм и длиной до 150 мм, которые будут соединяться ригелями и затяжками, сделанными из досок 50х100 мм. Количество досок зависит от габаритов готовой постройки, стандартное расстояние между стропилами – 80 см. Нижнюю часть стропильной системы составляет мауэрлат – прочные доски, крепящиеся к верхним венцам (верхним частям стен) помещения бани.