Проекты бани с террасой с комнатой отдыха. Баня с террасой на свайном фундаменте
Проекты бани с террасой с комнатой отдыха. Баня с террасой на свайном фундаменте
Распространены проекты бани с комнатой отдыха и террасой на свайном фундаменте, так как вес деревянной конструкции намного легче монолитной или кирпичной, поэтому нет смысла заливать дорогостоящий монолитный фундамент. Еще один плюс свайного фундамента в том, что он во многом облегчает отвод воды из бани в канализацию.
Варианты планировки бани
Основными помещениями в бане являются парилка, моечная и предбанник. В зависимости от размеров бани при внутреннем планировании здания можно добавить санузел, комнаты отдыха, спальни и даже бассейн. Также проекты бань с террасой под одной крышей, предусматривают наличие мансарды, балкона и беседки. Не исключением являются и проекты бань с комнатой отдыха закрытого типа.
Обратившись в строительную организацию, можно выбрать понравившийся проекты бани с комнатой отдыха и террасой из каталога. Но на что обратить внимание при выборе материала для бани, смотрите в следующем видео:
Вариантов достаточно много, но среди них условно можно выделить три, взяв за основу этажность постройки и ее размеры: одноэтажные бани; двухэтажные или бани с мансардой; банные коттеджи.
Одноэтажные бани
По сути, представляют собой как небольшие домики с минимальным набором комнат (парилка и моечная), обеспечивающим комфортное времяпровождение, так и большие одноэтажные дома с расширенным набором комнат, включая санузлы и комнаты отдыха. Кроме этого зона отдыха может быть вынесена за пределы бани на террасу или веранду. Выбирая проект большой одноэтажной бани с зоной барбекю можно не переживать где разместить отдыхающих гостей, так как зона отдыха делиться на две части – комната внутри бани и терраса.
Двухэтажные бани
Бани с полноценным вторым этажом встречаются крайне редко – чаще такими называют бани с мансардой. В любом случае, благодаря наличию добавочного этажа увеличивается полезная площадь застройки и комнат отдыха можно сделать уже две: одну на первом этаже, вторую – на втором. Благодаря дополнительным площадям баня может вместить большее количество отдыхающих людей, что является отличным вариантом для отдыха большой компанией. Недорогой проект двухэтажной бани с террасой предполагает наличие двух комнат отдыха и террасы.
Банные коттеджи
Это большие банные комплексы с зонами отдыха на улице, несколькими комнатами отдыха внутри дома, спальнями, бассейном и кухней. Это место для отдыха не только телом, но и душой. Чаще всего такой комплекс строится для последующей сдачи в аренду. Обслуживание такого здания требует больших затрат, что является нерентабельным для частного использования.
Проект дома с баней под одной крышей. А сейчас, о недостатках
Достоинства
Главным достоинством совместного месторасположения дома и бани под единой кровлей считается – уют и комфорт жильцов. Наибольшим плюсом в подобной ситуации будет вероятность не делать длинный переход по улице из банного помещения в здание после парилки.
Для этого вход в подобную пристроенную баню осуществляется непосредственно из здания. Существуют следующие варианты ее месторасположения:
- Размещается в цокольном этаже постройки, когда само здание многоуровневое.
- Баня как непосредственное продолжение здания, как вспомогательная комната.
- Расположение в комплексе с ванной комнатой и туалетом.
Это самые популярные варианты месторасположения, учитывая особенности проектирования здания они меняются.
Явным преимуществом в данном положении станет и то, что отсутствует надобность в установке в банном помещении комнаты отдыха, для этого целесообразнее пойти внутрь дома, к примеру, в гостиную комнату.
Достаточным будет выделить место лишь для парной и предбанника, другие помещения уже есть в здании. Если собственник хочет каких-либо изысков, то может составить нестандартный и интересный проект.
Недостатки
- Когда обе постройки из дерева, если неправильно подойти к возведению бани – конструкция пострадает от сырости и пара, что может привести к раннему разрушению.
- Когда здание и баня обладают достаточно внушительными габаритами, то необходимо с пристальным вниманием относиться к возведению системы отопления. Газовый или электрический котел следует покупать с большой мощностью, тогда ее хватит на 2 помещения. Естественно в связи с этим увеличатся и энергетические затраты, а значит и плата.
- Для обустройства канализации в такой ситуации потребуется особое внимание, поскольку сливать отработанную жидкость из бани в общую трубу неразумно, очень велика нагрузка.
- Строительство дымоходной трубы также нуждается в отдельной требе. В подобной ситуации на кровле здания станут вылазить одновременно 2 трубы, и естественно получатся 2 отверстия, немало владельцев останавливает такое положение дел.
- Грамотно не продумав вентиляционную систему и надлежащее проветривание в бане, сырость распространится вдоль всего периметра дома и он станет трудновыводимым.
- Если внутри бани есть печка – каменка, растапливаемая дровами, то потребуется особенное, очень пристальное внимание, уделяемое тяге. Если она будет создана неправильным образом, дым попадет внутрь помещения, и на потолке станет образовываться сажа.
Источник: https://postroivsesam.info/novosti/proekt-ban-s-komnatoy-otdyha-tipovye-proekty-odnoetazhnyh-ban
Лучшие проекты бань. Особенности
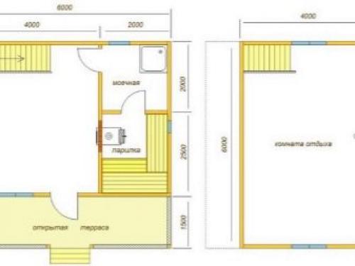
Проекты бани с комнатой отдыха можно разделить на три группы. Первая группа – традиционные одноэтажные бани. Они возводятся из капитальных строительных материалов с низкой теплопроводностью, имеют стандартный набор помещений: здесь есть парилка, душевая, комната отдыха, предбанник, иногда терраса.
Комната отдыха располагается на первом этаже рядом с парной и помывочной и соединяет в себе функции раздевалки. Это самый удобный вариант, который позволяет поддерживать оптимальную температуру во всех помещениях, так как печка равномерно обогревает все прилегающие комнаты с подачей пара в отделение сауны.
Такая планировка позволяет расположить топку печи и в парной, что не всегда удобно, и в комнате отдыха.
Истопник находится в комфортной температуре, к тому же легче убирать мусор после растопки. Современные технологичные печи длительного горения могут иметь стеклянный экран, что позволяет любоваться игрой пламени во время отдыха, создавая приятную каминную атмосферу и давая живое тепло обитателям комнаты. Простая планировка, тем не менее, включает все необходимое для банных процедур, имеет большую вариативность по площади.
Минимальная площадь строения – от 16 кв. метров , что удобно для небольших участков, максимальная – по желанию владельца. Этот варинант не требует больших капиталовложений из-за энергоемкости обогрева.
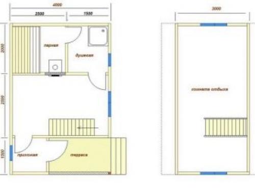
Вторая группа – проекты с комнатой отдыха, расположенной на мансарде или на втором этаже. Здесь потребуется возведение второго этажа или утепление кровли , что повлечет дополнительный расход материалов, фундамент потребуется усиливать на увеличение несущей нагрузки. Этот вариант удобен при небольшой площади строения.


На первом этаже размещают предбанник, раздевалку, парную, помывочную. На втором – комнату отдыха с балконом или без. Потребуется выделение пространства для лестничного марша. Красивая винтовая лестница может украсить интерьер бани.


Третья группа проектов – с вынесением комнаты отдыха на террасу. Такая планировка удобна для летнего использования. В холодное время года террасу потребуется застеклить и продумать систему обогрева. Однако такое расположение комнаты отдыха дает большой простор для воплощения дизайнерских решений.
Панорамный обзор пейзажа добавляет минутам отдыха эстетическое удовольствие.
Выбор планировки зависит от сезонности использования бани. Для круглогодичного применения подойдет первая и вторая группа проектов. Летом достаточно иметь комнату отдыха под навесом с гибким остеклением из пленки или поликарбоната для бюджетного варианта.
Большое значение имеет наличие свободной площади на участке, и если ее мало, то поднять на мансарду комнату отдыха будет хорошим выходом. Отопление второго этажа в холодное время года нуждается в устройстве воздушного или водного контура . Установка печи длительного горения с конвектором на первом этаже может решить эту проблему.
Размещение бани на участке должно отвечать нормам пожарной безопасности и удобству пользования. Окна комнаты отдыха желательно ориентировать на привлекательный видовой обзор . Приятно видеть красивые пейзажи перед глазами, а не забор или соседский сарай.
Желательно выбрать возвышенный участок для хорошей вентиляции и отвода воды . Эффектным дополнением может стать близость искусственного или естественного водоема.
Особое внимание уделяют материалам для строительства бани. Традиционно предпочтение отдается натуральному дереву в виде бруса или оцилиндрованного бревна липы, осины, кедра.
Сосна более доступна по цене, имеет красивый рисунок волокон сучковатой древесины и является популярным материалом для бани на даче. Недостатком ее является пористая структура древесины, которая сильно меняет показатели от нагрева и повышенной влажности, поэтому в парной и душевой сосну нужно обшить рейкой из твердых пород дерева, а для комнаты отдыха сосна с ее приятным запахом и эстетичным внешним видом будет оптимальным решением.
Кирпич – более дорогой материал, но он имеет самые лучшие показатели долговечности, устойчивости к перепадам температуры.
Бюджетную постройку можно возвести и из пеноблоков. Строительство бани из блоков можно выполнить своими руками, даже не имея специальных знаний.
Внутренние помещения обшиваются блок-хаусом, отделываются плиткой или натуральным камнем.
Оформление комнаты отдыха предполагает следование определенному стилю, в зависимости от дизайна подбирают отделочные материалы.