Баня с кухней и комнатой. Плюсы проектов бань с кухней
- Баня с кухней и комнатой. Плюсы проектов бань с кухней
- Баня с кухней и комнатой отдыха. Плюсы и минусы
- Баня с кухней и комнатой из бревна зимняя. Проекты бань. Чертежи и фото
- Баня с кухней и комнатой на втором этаже. Особенности
- Баня с гостевой комнатой проект. Что такое гостевой домик-баня? Преимущества проектов гостевых бань
- Баня с домом под одной крышей. Оригинальные проекты дачного дома с баней под одной крышей: как реализовать дерзкий план и 37 фото с примерами
- Баня с кухней и комнатой проект отдыха верандой. Варианты проектов
- Видео баня с Комнатой отдыха # УБОЙНАЯ планировка
Баня с кухней и комнатой. Плюсы проектов бань с кухней
Баня с кухней, а также проект её имеют множество плюсов, которые и обуславливают высокую популярность такого типа строения среди россиян. Первым положительным моментом строительства такого здания является то обстоятельство, что вы выносите, таким образом, за жилую зону те помещения, в которых образуются неприятные запахи, генерируются большие объёмы сточных вод, а также выполняются хозяйственно-бытовые работы.
 Второй плюс – это возможность экономии земли на участке. Дело в том, что дачные участки в России обычно не превышают шесть6 соток, и если возводить строения на них отдельно, вся площадь участка будет занята. Используя вариант совмещённого здания, можно значительно сэкономить землю, а сэкономленные площади использовать в других целях. Если же вам понадобиться расширить площадь строения, вы всегда сможете выбрать проект бани с летней кухней.
 Второй плюс – это возможность экономии земли на участке. Дело в том, что дачные участки в России обычно не превышают шесть6 соток, и если возводить строения на них отдельно, вся площадь участка будет занята. Используя вариант совмещённого здания, можно значительно сэкономить землю, а сэкономленные площади использовать в других целях. Если же вам понадобиться расширить площадь строения, вы всегда сможете выбрать проект бани с летней кухней.
Третий плюс – экономия на строительных материалах и подведении инженерных коммуникаций. Так, строя баню и кухню в одном здании, вы сможете сэкономить до 20% сумм, отпущенных на строительство. При этом соблюдать правила противопожарной безопасности и строительные нормы и правила при совмещённом строительстве значительно проще. Это также важно, так как позволяет избежать впоследствии крупных штрафов со стороны контрольно-надзорных органов.
 И ещё одним плюсом совмещения бани и кухни является тот факт, что проекты совмещённых зданий стоят значительно дешевле отдельно стоящих. Связанно это с тем, что далеко не всегда домовладельцы, у которых имеются в собственности земельные участки большой площади, возводят на них совмещённые здания, предпочитая строить отдельно стоящие здания.
 И ещё одним плюсом совмещения бани и кухни является тот факт, что проекты совмещённых зданий стоят значительно дешевле отдельно стоящих. Связанно это с тем, что далеко не всегда домовладельцы, у которых имеются в собственности земельные участки большой площади, возводят на них совмещённые здания, предпочитая строить отдельно стоящие здания.
Баня с кухней и комнатой отдыха. Плюсы и минусы
Баня с летней кухней обладает множеством достоинств, главным из которых считается возможность устраивать пикник. Между процессами парения каждому захочется попить чай и перекусить, а без полноценной кухни готовить еду прямо в комнате отдыха неудобно.
К преимуществам подобных проектов относят ряд нюансов.
- Стоимость. Строительство летней кухни с баней считается относительно недорогим, поскольку данный вариант совмещенной постройки можно соорудить из любого строительного материала или же задействовать остатки от предыдущего возведения зданий.
- Экономия времени. Строить баню с кухней под одной крышей намного быстрее, чем по отдельности. Кроме этого, не придется много времени тратить на подготовку нескольких планов. Если правильно организовать работу, то строительство пройдет на одном дыхании.
- Компактность. Данные проекты позволяют существенно экономить пространство на участке, так как на размещение одного здания понадобится меньше места, чем на два отдельно стоящих. Такой вариант бань отлично подходит для владельцев небольших дач. Поскольку кухня будет размещена непосредственно в бане, то на сэкономленной площади можно дополнительно разместить гараж, беседку и бассейн.
- Многофункциональность. Совмещенные бани с кухней идеально смотрятся в современном ландшафтном дизайне и представляют собой универсальный комплекс, обеспечивающий приятное и комфортное времяпровождение за городом. Чтобы строение получилось максимально удобным в эксплуатации, необходимо тщательно продумывать планировку. Например, печь рекомендуется устанавливать в стене между баней и кухней. Это позволит одновременно разогревать парилку, готовить еду и экономить на расходе угля или дров, которые необходимы для растапливания бани.
Баня с кухней и комнатой из бревна зимняя. Проекты бань. Чертежи и фото
Проекты бань. Чертежи и фото Проекты бань. Чертежи и фото

Нет ничего лучше, чем отдых на даче или в загородном доме. Особенно если в этот отдых включено такое наслаждение для тела, как баня. Продумывая проект бани, важно учесть множество нюансов. Это выбор места, стройматериалов, вопрос, как провести внутренние отделочные работы, как правильно установить печь, и многое другое. В этой статье мы собрали для вас информацию, которая станет полезной на этапе принятия решения. С ее помощью вы определитесь с тем, как обустроить свое индивидуальное место для релакса.
При проектировании бани следует учитывать такие факторы:
- расположение на участке, будет ли она отдельным зданием или выступает как пристройка к дому;
- мощность обогревателя;
- сколько будет посетителей;
- толщина стен, отделка, наличие или отсутствие утеплителя.

Виды бань
Многообразие бань возникает от разницы культур и традиций. Благодаря этому изобилию мы можем выбирать тот микроклимат в бане, который оптимально подходит нам по температуре, влажности и выработке пара.
Наиболее важен для самочувствия микроклимат, и в соответствии с ним бани подразделяются на виды.
Паровая баня: турецкий хамам
В такой бане температура достигает 40-45°, влажность 90-100%. За счет такой невысокой температуры создается мягкий микроклимат. В бане можно не только хорошо отдохнуть, но и заняться собой, порадовав тело косметическими процедурами.
Паровая сауна: русская баня
45-70° по температуре и невысокая влажность – 40-65%. Пар конденсируется на коже, образуя своеобразную пленку, а организм нагревается намного сильнее вследствие теплопроводности воды.
Суховоздушная (финская) баня
Небольшая влажность, 8-20%, сочетается с высокой температурой 70-110°. Отсутствие пара и высокая температура способствуют максимальному прогреванию организма;
Влажная сауна: спортивная
Температура 75-95° при 100% влажности . Является одним из подвидов финской бани. Температура специально повышается за счет полива камней водой. Такая сауна становится местом соревнований на выносливость и представляет для организма вред и даже опасность.
Водяная баня: японская баня офуро
Традиционная баня с температурой 40-60° и влажностью 100%, является экзотической разновидностью бани. Это обычно деревянная бочка, которая подогревается. Прогревание кожи под водой способствует потоотделению и вымыванию шлаков и пота.
В банях также различается способ подогрева и нагнетания пара . Зная эти особенности, вы выберете баню с характеристиками, которые максимально устроят вас и вашу семью.

Основные помещения в бане
Каждый тип бани включает такие функциональные помещения:
- предбанник (раздевалка);
- парная;
- моечное помещение;
- комната отдыха.

Предбанник (раздевалка)
Предбанник еще называют тамбуром. Здесь посетители оставляют свою одежду, здесь хранятся веники и дрова. Предбанник выполняет ряд функций :
- является зоной с функцией буфера, выравнивающей переход температур от климата снаружи до температуры внутри бани;
- служит местом для досушивания дров;
- зачастую служит также комнатой, в которой отдыхают.
Дверь предбанника должна открываться наружу.



Парная комната
Эта комната является основным, базовым помещением постройки. Здесь поддерживается самая высокая температура и размещается печь. В углу парной находятся камни, с помощью которых создается пар. Под ними должно находиться жароустойчивое покрытие.
Здесь же находятся лавки, размещенные ступеньками. Две, как правило, предназначаются для сидения, одна – лежания. Обустраивая парную комнату, необходимо продумать нюансы:
- для материала, которым обшиваются потолок и стены, характерны определенные теплоизоляционные свойства, с их учетом рассчитывается глубина теплоизоляции комнат, используются конструктивные приемы;
- эффективная работа системы вентиляции обеспечивается специальным коробом или распахивающимся окном, имеющим двойное остекление. Расположение окна – напротив печки;
- дверной проем проектируется с повышенным порогом: так под дверь не проходит прохладный воздух и не снижается теплоэффективность. Сама дверь распахивается наружу;
- парное и моечное помещения должны разделяться, иначе снижается качественные показатели пара и температуры, увеличивается расход топлива.


Моечная комната
Моечная комната, зачастую это душевая кабинка, размещается возле парной . Если размеры строения позволяют, эти зоны являются отдельными друг от друга, в маленьких постройках совмещены. В крупных строениях здесь же оборудуется бассейн или купель.
Средняя площадь моечного помещения составляет 2000х2000мм, тогда есть где принимать водные процедуры и размещать емкости с водой, горячей и холодной.
Окно строится в полтора раза больше окна в парной. Увеличен и дверной проем – 1800х800мм, чтобы обеспечить больший комфорт. По сохранению тепла требования меньше, чем в парной. Порог делается высокий, а пол укладывается из специальной плитки во избежание скольжения и сопутствующих травм.
Баня с кухней и комнатой на втором этаже. Особенности
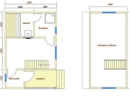
Проекты бани с комнатой отдыха можно разделить на три группы. Первая группа – традиционные одноэтажные бани. Они возводятся из капитальных строительных материалов с низкой теплопроводностью, имеют стандартный набор помещений: здесь есть парилка, душевая, комната отдыха, предбанник, иногда терраса.
Комната отдыха располагается на первом этаже рядом с парной и помывочной и соединяет в себе функции раздевалки. Это самый удобный вариант, который позволяет поддерживать оптимальную температуру во всех помещениях, так как печка равномерно обогревает все прилегающие комнаты с подачей пара в отделение сауны.
Такая планировка позволяет расположить топку печи и в парной, что не всегда удобно, и в комнате отдыха.
Истопник находится в комфортной температуре, к тому же легче убирать мусор после растопки. Современные технологичные печи длительного горения могут иметь стеклянный экран, что позволяет любоваться игрой пламени во время отдыха, создавая приятную каминную атмосферу и давая живое тепло обитателям комнаты. Простая планировка, тем не менее, включает все необходимое для банных процедур, имеет большую вариативность по площади.
Минимальная площадь строения – от 16 кв. метров , что удобно для небольших участков, максимальная – по желанию владельца. Этот варинант не требует больших капиталовложений из-за энергоемкости обогрева.
Вторая группа – проекты с комнатой отдыха, расположенной на мансарде или на втором этаже. Здесь потребуется возведение второго этажа или утепление кровли , что повлечет дополнительный расход материалов, фундамент потребуется усиливать на увеличение несущей нагрузки. Этот вариант удобен при небольшой площади строения.


На первом этаже размещают предбанник, раздевалку, парную, помывочную. На втором – комнату отдыха с балконом или без. Потребуется выделение пространства для лестничного марша. Красивая винтовая лестница может украсить интерьер бани.


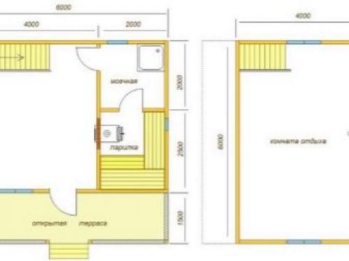
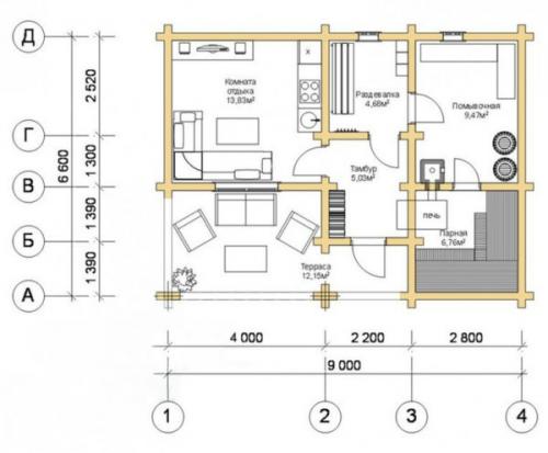
Третья группа проектов – с вынесением комнаты отдыха на террасу. Такая планировка удобна для летнего использования. В холодное время года террасу потребуется застеклить и продумать систему обогрева. Однако такое расположение комнаты отдыха дает большой простор для воплощения дизайнерских решений.
Панорамный обзор пейзажа добавляет минутам отдыха эстетическое удовольствие.
Выбор планировки зависит от сезонности использования бани. Для круглогодичного применения подойдет первая и вторая группа проектов. Летом достаточно иметь комнату отдыха под навесом с гибким остеклением из пленки или поликарбоната для бюджетного варианта.
Большое значение имеет наличие свободной площади на участке, и если ее мало, то поднять на мансарду комнату отдыха будет хорошим выходом. Отопление второго этажа в холодное время года нуждается в устройстве воздушного или водного контура . Установка печи длительного горения с конвектором на первом этаже может решить эту проблему.
Размещение бани на участке должно отвечать нормам пожарной безопасности и удобству пользования. Окна комнаты отдыха желательно ориентировать на привлекательный видовой обзор . Приятно видеть красивые пейзажи перед глазами, а не забор или соседский сарай.
Желательно выбрать возвышенный участок для хорошей вентиляции и отвода воды . Эффектным дополнением может стать близость искусственного или естественного водоема.
Особое внимание уделяют материалам для строительства бани. Традиционно предпочтение отдается натуральному дереву в виде бруса или оцилиндрованного бревна липы, осины, кедра.
Сосна более доступна по цене, имеет красивый рисунок волокон сучковатой древесины и является популярным материалом для бани на даче. Недостатком ее является пористая структура древесины, которая сильно меняет показатели от нагрева и повышенной влажности, поэтому в парной и душевой сосну нужно обшить рейкой из твердых пород дерева, а для комнаты отдыха сосна с ее приятным запахом и эстетичным внешним видом будет оптимальным решением.
Кирпич – более дорогой материал, но он имеет самые лучшие показатели долговечности, устойчивости к перепадам температуры.
Бюджетную постройку можно возвести и из пеноблоков. Строительство бани из блоков можно выполнить своими руками, даже не имея специальных знаний.
Внутренние помещения обшиваются блок-хаусом, отделываются плиткой или натуральным камнем.
Оформление комнаты отдыха предполагает следование определенному стилю, в зависимости от дизайна подбирают отделочные материалы.
Баня с гостевой комнатой проект. Что такое гостевой домик-баня? Преимущества проектов гостевых бань
Гостевой домик-баня – это настоящий рай для тех, кто постоянно проводит свое время в городе. Неудивительно, что многие готовы отдать значительные средства, чтобы отдохнуть на природе в подобном домике: легкий пар, приятный эфирный аромат и дружная компания помогут снять любой стресс.
Баня-домик не является обычным жилым помещением, в которое встроена парилка. Это жилое помещение, где весь организационный смысл и дизайнерская идея начинаются с парной, а дизайн интерьера подстраивается по ее особый режим эксплуатации.
Обычно в гостевом домике-бане присутствуют:
- кухня, обычно небольших размеров;
- санузел, включающий душевую кабину;
- спальня;
- налаженная система водопровода;
- система отопления помещений.
Гостевой домик-баня с подобными удобствами может использоваться как периодически, так и как жилой дом. Однако все же существуют важные отличия, которые отличают гостевой дом от полноценного дома с баней:
- весь дизайн интерьера отталкивается от парильной, моечной и предбанника;
- эти три части гостевого домика-бани занимают как минимум 50% площади постройки;
- при постройке здания применяются исключительно экологические материалы, т.к. основное назначение домика-бани – оздоровление организма.
Как вы видите, гостевая баня все же имеет свои отличия от гостевого дома-бани, И если было принято решение посещать такой домик иногда, а не жить в нем, стоит задуматься над решением некоторых проблем, в частности, отопления дома в отсутствие хозяев.
Проекты гостевых домиков с баней имеют свои преимущества. Главным достоинством такой постройки является экономия места и денежных средств. Баня с гостевой займет значительно меньше места, чем аналогичные отдельные постройки. Одно большое здание обойдется дешевле, чем два отдельных.
Гостевой дом также удобен в эксплуатации. После посещения парной не нужно идти через улицу в соседний дом, чтобы отдохнуть, это можно сделать в гостевой комнате.
Баня с домом под одной крышей. Оригинальные проекты дачного дома с баней под одной крышей: как реализовать дерзкий план и 37 фото с примерами
Дом-баня комбинирует сразу 2 функции – деревянной парной и классического кантри-жилища. Его главными преимуществами являются эргономичность, долговечность и эстетичность. Всеми желающими построить дачный дом с баней под одной крышей, проекты должны быть тщательно изучены. Гармоничное строение
- пристройка парной к уже построенному жилищу.

Баня на мансардном этаже
Выбрав 2 вариант, необходимо уделить особое внимание:
- вентиляции;
- гидроизоляции (жилище должно хорошо просушиваться и проветриваться);
- возведению пристройки (для этой цели рекомендовано использование кухонной стены).
Обратите внимание! Если возводится единый комплекс, то и коммуникации тоже должны быть едиными.
4 вида совмещения
Совмещение парной с жильем может иметь следующие варианты:
- расположение бани в подвале;
- совмещение с санузлом;
- помещение бани на крыше;
- пристройка бани к жилищу.
Последний вариант является не самым популярным и удачным. Он требует проведения дополнительных коммуникаций.

Пристрои к бане
Основные этапы работ
Выбрав проект, необходимо:
- Тщательно осмотреть участок.
- Сделать необходимые замеры.
- Провести все расчеты.
- Воплотить проект в жизнь.
Этапы строительства выглядят так:
- Закладка фундамента.
- Возведение стен.
- Возведение крыши.
- Заливка стяжки.
- Отделка интерьера.
Закладка фундамента
От фундамента зависит надежность и долгосрочность жилища. В месте, где планируется пристройка, фундамент жилища вскрывается. На этом же уровне закладывается новое основание.
Оптимальный вариант фундамента для 1-этажного деревянного дома – монолитный ленточный. Его глубина – 0,5 м. Ширина составляет 300 мм.

Внутренняя отделка бани
Для кирпичного и блочного дома создается полноценное основание, способное выдержать большую нагрузку.
Важно! Фундамент жилища и бани закладывается порознь.
Параметры основания зависят от:
- конструкции стен;
- несущей нагрузки;
- типа стройматериалов.
Этапы возведения фундамента выглядят так:
- Определить местоположение бани.
- Вбить по периметру колышки.
- Используя колышки в качестве ориентира, натянуть строительный шпагат.
- Отложить ширину фундамента.
- Установить обноску.
- Натянуть 2 линию шпагата.
- Проверить диагонали и точности прямых углов (желательно применение дальномера и лазерного уровня).
- Выкопать траншею в соответствии с разметкой. Если в доме будет проведена центральная канализация, то проводить траншею нужно к самой ближней врезке в трубку. В противном случае она проводится к сливной яме, которая обустраивается отдельно от жилища.
- Если почва песчаная, установить временную опалубку. Она способствует предотвращению осыпания стенок на дно. Внутренние стены опалубки прокладываются рубероидом либо пленкой.
- Вмонтировать в траншею под коммуникации трубу, засыпать песком и грунтом. Траншея под основание засыпается песком (крупнозернистым) и щебнем (2/3). Затем надо смочить засыпку водой и хорошо утрамбовать.
- Уложить в траншеи связанные прутья из арматуры, закрепить каркас фиксаторами, выполненными из пластика.
- Залить бетон, разровнять, высушить. Провести гидроизоляцию рубероидом или битумной мастикой.
Закладывать фундамент желательно летом или ранней осенью. Он должен хорошо просушиться и отстояться 3 недели.
Зимой для устройства фундамента применяются винтовые сваи.

Удачный проект
Особенности возведения стен
Принцип их возведения зависит от типа используемого строительного материала. Если применяется деревянный брус, необходимо правильно «усадить» его.
Если дом строится из кирпича, стены могут быть как кирпичными, так и выполненными из пеноблоков. Стоимость второго варианта гораздо ниже.
Если парная пристраивается к жилищу, необходимо помнить о корректной стыковке. Рекомендовано применение связки из арматурных прутьев. Стыковка с их помощью выполняется так:
- Насверлить в стены отверстия под отрезки арматуры.
- Вбить прутья таким образом, чтобы их противоположный конец входил в кладку пристроечных стен.
Стены бани должны подняться на 1-2 кирпича ниже высоты стен дома.
Неправильный подход к стыковке может привести к тому, что парная «отойдет» от жилища. Это будет смотреться некрасиво, также появится множество проблем.

Баня с верандой
Особенности возведения крыши
Главное требование к крыше при совмещении жилого помещения с баней – целостность.
Баня с кухней и комнатой проект отдыха верандой. Варианты проектов
План объединенной постройки, в основном, исходит из площади территории. Ее размеры могут доходить до десяти метров по одной стене.

Баня с кухней из дерева
Виды проектов:
- Кухня в бане. Даже в самое небольшое помещение можно уместить парную, душевую, комнату для отдыха, уборную. Подобная планировка предусмотрена для небольшой семьи. Чтобы сэкономить место, устанавливают раскладные диван и кресла, что позволяет оставаться здесь на ночь;

- Баня с летней кухней и террасой. Здесь предусматривается кухня закрытого типа, размещенная в обособленной комнате. Подобное решение уместно для тех, кто желает иметь на придомовой территории помимо бани, домик для гостей. Если есть тамбур, то баню можно посещать и в холодный период времени. Здесь можно разместить компактную парную, просторную помывочную, санузел. Если позволяет место обустраивают купель или маленький бассейн. На террасе часто устанавливают гриль или барбекю;
Заметка для читателя! Возможно вам также будет интересно посмотреть проекты летних кухонь с барбекю и печью .

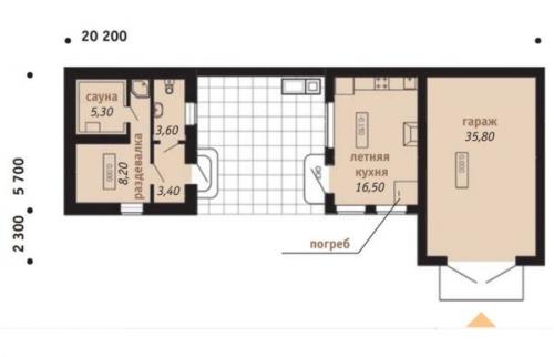
- Гараж с баней и летней кухней. Такой проект уместен при наличии отдельного дома, но при отсутствии гаража и бани. Группировка этих построек сохраняет полезное пространство. Гараж с баней лучше разделять летней кухней, чтобы избавиться от возведения усиленной гидроизоляции, а также спасти гараж от повышенной влажности, присущей банной зоне;


- Двухэтажная угловая баня с кухней. На нижнем этаже расположены основные комнаты – кухня, гостиная, уборная, тамбур, котельная и парная. На втором этаже размещена спальня с отдельным санузлом. Важную роль здесь играет расположение лестницы – ее делают удобной, не сильно крутой и не занимающей много полезного пространства. Таким образом, подобное сооружение не только выполняет свои основные функции, но и выступает отличным местом для проживания небольшой семьи;

- Баня с летней кухней, верандой и санузлом под одной крышей. Это решение также является аналогом полноценного загородного коттеджа. В нем найдется все для проживания — кухня, комната отдыха, санузел и для отличного отдыха – парная, помывочная, раздевалка, тамбур, терраса с летней кухней. Подобное строение подходит для всесезонного использования. Летом организуют пикник на летней кухне, даже в ненастную погоду, так как у террасы имеется крыша. А зимой проживают в доме, где тоже есть своя кухня;


- Зимний вариант. Если по периметру строения провести отопительные трубы от водонагревателя, то им можно пользоваться круглый год. Теплоэнергия от топки обогревает все пространство. Здесь предусматривается баня с сухим паром для уменьшения влажности, а для сушки делают качественную вентиляцию. Есть небольшая раздевался, кухня-гостиная с обеденной зоной и просторная веранда;

- Двухэтажное строение с мансардным этажом. У такой постройки компактные размеры и большая полезная площадь. На первом этаже расположена кухня, гостиная, тамбур, санузел, парная и помывочная. На мансардном этаже сделана спальня. Труба от печки поддерживает комфортную температуру на мансарде.

