Проект бани 8 на 8 метров с комнатой отдыха. Разработка плана бани с учетом условий дачного участка
Проект бани 8 на 8 метров с комнатой отдыха. Разработка плана бани с учетом условий дачного участка
Чтобы создать идеальные условия для отдыха в бане, необходимо учесть некоторые нюансы, которые позволят избежать проблем при эксплуатации помещения. Желательно, чтобы зона строительства располагалась на суше с низким уровнем наличия грунтовых вод. Перед тем как приступить к разработке проекта, необходимо сразу исключить все участки, не соответствующие этому условию.

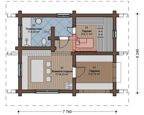
Проект сауны 5 х 7 метров с открытой террасой
Если на территории есть колодец, то расстояние между ним и баней должно быть не менее 5 м. Минимальное расстояние между парилкой и жилым домом — 8 м. Дальше от бани компостная яма и туалет расположены, тем лучше. Специалисты рекомендуют заходить с южной стороны. Зимой здесь образуется меньше сугробов, поэтому возможность перекрытия доступа к двери исключена. Лучше, если окна выходят на запад, что облегчит проникновение в комнату достаточного количества солнечного света.
Если на дачном участке есть водоем, то после постройки бани в 15-20 м от него можно использовать вместо бассейна. Кроме того, наличие реки или озера в непосредственной близости от объекта обеспечит систему водоснабжения.

Размеры проекта сауны 7,74 х 6,24 метра
Для небольших участков (3-6 соток) подходят проекты санузлов 3 на 3, фото таких построек в изобилии на сайтах строительных компаний. Даже в таких компактных постройках парная остается основным помещением. Для организации этого помещения следует выделить максимально возможный объем пространства — примерно 8 м². Этого достаточно, чтобы установить 2-3 грядки (полочки) и поставить печь.
Остальные комнаты могут быть включены в планировку санузла 3х4м и более (по желанию). Конструкцию можно использовать по прямому назначению даже при отсутствии бильярдной или санузла. Баня не может существовать без турецкой бани. По этой причине разделение внутреннего пространства на функциональные зоны во многом зависит от масштабов проекта.

Сауны рекомендуется строить на расстоянии не менее 8 м от жилого дома
Если вам нужны дополнительные удобства, вы можете включить небольшую душевую или ванну в дизайн своей ванны размером 3 на 4 метра. После турецкой бани здесь можно смыть грязь и остыть. Типичные проекты характеризуются наличием комнаты отдыха, которая будет обслуживаться в перерывах между парными сеансами. Для его организации потребуется 4,5 м².
Пригодятся и другие помещения, например, гардеробная или тамбур. Они достаточно компактны, чтобы вместить бревенчатую сауну 5 на 5 вместе с основными помещениями.
Обратите внимание: размер купальной зоны на одного человека составляет 2 м².

Сруб бани 8 н. Купить сруб бани 8х8

Стандартный сруб
Стандартный проект бани без пристроек и мансардной крыши. Такой проект имеет смысл выбрать, если вы хотели бы заказать недорогую и небольшую по площади баню.

Рубка в лапу
Баня 8х8
460 000 ₽
Заказать сруб

Рубка в чашу
Баня 8х8
уточните
Заказать сруб
Стандартная комплектация:
- Диаметр сруба: от 24 см, ель, сосна
- Высота сруба: 2,20 м
- Перегородка (5 стена): лафет
- Половые, потолочные балки: бревно
- Утеплитель межвенцовый: джут, мох
- Крепеж: гвозди
- Фронтоны: доска обрезная 25x150
- Крыша: брус 50x150мм
- Обрешётка доска обрезная: 25х150мм
- Кровля под усадку: рубероид
- Фундамент: столбчатый из цементных блоков 20х20х40 см
- Доставка до места: бесплатно
- Сборка под крышу: бесплатно

Сруб с верандой + 2 метра
Сруб с выносом бревна для отделки. Возможно обустройство бревном крест-накрест.

Рубка в лапу
Баня 8х8
480 000 ₽
Заказать сруб

Рубка в чашу
Баня 8х8
уточните
Заказать сруб
Комплектация с верандой:
- Диаметр сруба: от 24 см, ель, сосна
- Высота сруба: 2,20 м
- Перегородка (5 стена): лафет
- Половые, потолочные балки: бревно
- Утеплитель межвенцовый: джут, мох
- Крепеж: гвозди
- Фронтоны: доска обрезная 25x150
- Крыша: брус 50x150мм
- Обрешётка доска обрезная: 25х150мм
- Кровля под усадку: рубероид
- Фундамент: столбчатый из цементных блоков 20х20х40 см
- Доставка до места: бесплатно
- Сборка под крышу: бесплатно

Сруб с мансардной крышей (в полтора этажа)
Сруб с высокой двухскатной или ломаной крышей для организации мансардного этажа.

Рубка в лапу
Баня 8х8
480 000 ₽
Заказать сруб

Рубка в чашу
Баня 8х8
уточните
Заказать сруб
Комплектация с мансардой:
- Диаметр сруба: от 24 см, ель, сосна
- Высота сруба: 2,20 м
- Перегородка (5 стена): лафет
- Половые, потолочные балки: бревно
- Утеплитель межвенцовый: джут, мох
- Крепеж: гвозди
- Фронтоны: доска обрезная 25x150
- Крыша: брус 50x150мм
- Обрешётка доска обрезная: 25х150мм
- Кровля под усадку: рубероид
- Фундамент: столбчатый из цементных блоков 20х20х40 см
- Доставка до места: бесплатно
- Сборка под крышу: бесплатно

Сруб с верандой и мансардной крышей
Сруб одновременно с верандой (вынос бревна под веранду) и мансардной крышей. Может быть различного типа, вида, площади веранды.

Рубка в лапу
Баня 8х8
500 000 ₽
Заказать сруб

Рубка в чашу
Баня 8х8
уточните
Заказать сруб
Комплектация с верандой и мансардой:
- Диаметр сруба: от 24 см, ель, сосна
- Высота сруба: 2,50 м
- Перегородка (5 стена): лафет
- Половые, потолочные балки: бревно
- Утеплитель межвенцовый: джут, мох
- Крепеж: гвозди
- Фронтоны: доска обрезная 25x150
- Крыша: брус 50x150мм
- Обрешётка доска обрезная: 25х150мм
- Кровля под усадку: рубероид
- Доставка до места: бесплатно
- Сборка под крышу: бесплатно

Индивидуальный проект сруба
Реализуем баню из бревна любой сложности по вашему проекту или разработаем новый проект по ваши требования и пожелания. Банька может быть разной формы и площади, иметь одну или несколько веранд (террас), мансардную крышу или второй этаж, балкон, тамбур, а также разная планировка комнат внутри бревенчатой бани.
В индивидуальный проект может быть включены все работы под ключ, либо вы можете получить только изготовление самого сруба. Мы можем сделать фундамент, кровельные работы, все виды отделки и обработки бревна, обустройство комнат внутри, монтаж печи.
Чтобы узнать цену индивидуального проекта, свяжитесь с нами.


Проекты бани 8х8 с мансардой. Проект бани 8 на 8 м: особенности, виды, преимущества
Подобный проект можно возвести не на всяком участке, для небольших земельных участков он не подойдет. Но уменьшение площади может отразиться на функциональности и удобстве бани.
Баня 8 на 8 м – это просторная и вместительная постройка, со всем необходимым. Проекты бань могут быть самыми разными: вы можете их составить самостоятельно, найти готовый вариант или заказать составление проекта у специалистов. Первые два варианта дешевле, но преимуществом последнего будет то, что при проектировании будут учтены особенности вашего участка и личные пожелания. Но это вовсе не значит, что готовый чертеж бани будет неудобным. В интернете много проектов, поэтому подобрать нужный несложно.
Поскольку баня 8 на 8 просторная, в ней легко поместятся все четыре основных помещения: предбанник, парная, моечная и комната отдыха. Предбанник может быть небольшим, в нем нужно разместить крючки и шкаф для одежды, также многие хранят в нем дрова. Просторным делать предбанник нет необходимости, поскольку он выполняет функцию прихожей.
Размеры парной зависят от того, сколько людей в будущем будут ее посещать. В парной нужно уместить печь и. Полоки можно располагать в один или несколько рядов. Рекомендуется делать их длиной не менее 2 м, в таком случае вы сможете на них расположиться не только сидя, но и лежа.
Моечная может быть просторной или небольшой, размером чуть больше душевой кабины. Все зависит от ваших пожеланий.
Комнату отдыха лучше делать просторной, поскольку в ней будет отдыхать вся компания между походами в парную. В комнате нужно поставить стол и стулья, если позволяет площадь также допустимо поместить телевизор, бильярдный стол и т. д.
Пример проекта бани 8х8 м:
https://www.youtube.com/watch?v=ONIjG4Yhfow
Баня 8 на 8 достаточно просторная, поэтому проекты таких размеров нередко также предусматривают санузел и гостевую комнату. Очевидно, что их наличие сделает баню более комфортной и функциональной. Кроме того, что немаловажно, в ней можно будет ночевать. Если вы планируете возводить постройку рядом со своим домом, то у вас получится, где смогут останавливаться ваши гости. Если же вы будете строить здание на дачном участке, то у вас будет место, где с ночевкой сможете остаться вы сами. Также в бане можно сделать небольшую кухню, в таком случае она превратится в целый дом.
Если вы собираетесь часто оставаться на ночь, причем большой компанией, то хорошим вариантом будет возведение двухэтажной бани или бани с мансардой. В таком случае на втором этаже можно разместить дополнительные помещения, в которых сделать спальню или дополнительную комнату отдыха.
Обычно проект подразумевает наличие бассейна или хотя бы купели. Они особенно актуальны, если поблизости нет водоема. Бассейн можно располагать внутри помещения или на открытом воздухе, но в любом случае рекомендуется делать над ним навес.
При размере бани 8 на 8 можно в одной постройке отлично сочетать два варианта: парную с влажным паром и сауну с сухим паром. Такой подход, безусловно, ощутимо повысит стоимость постройки здания, зато вы получите возможность ходить не только в баню, но и в сауну.