Планировка дома 120 кв м одноэтажный. Двухэтажные дома
- Планировка дома 120 кв м одноэтажный. Двухэтажные дома
- Самая лучшая планировка дома. Типовой проект или индивидуальный: что выбрать?
- Планировка одноэтажного дома. Одноэтажный дом 10 на 10 метров с мансардой: планировка с расширением вверх
- Самый бюджетный дом для постоянного проживания. Как глобально сэкономить на строительстве?
- Проект дома 8х10 с отличной планировкой. Проекты с мансардой
- План одноэтажного дома. Проекты одноэтажных домов
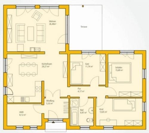
- Видео проект дома до 120 кв.м. с большой кухней-гостиной и тремя спальнями
Планировка дома 120 кв м одноэтажный. Двухэтажные дома
Такие строения выглядят более компактными, но, по сути, не менее вместительны. Двухэтажные дома 120 кв. м. оснащены мансардной зоной, можно соорудить и цокольный этаж для хранения всего необходимого. Количество комнат в двухъярусной конструкции больше как минимум в полтора раза.

Верхние комнаты могут быть сформированы за счет пространства, имеющегося под кровлей. Но нередко второй этаж предусмотрен, как полноценный ярус дома.

Такое строение всегда оснащается богатой верандой и красивой входной группой. В зоне мансарды нередко обустраивается пространство для отдыха домочадцев. Там они могут насладиться видами окрестностей за чашкой чая.

На первом этаже часто расположены подсобные помещения, большой холл с камином и панорамным окном, кухня. Тут же стоит разместить спальню или гостиную для пожилых домочадцев. Под лестницей целесообразно обустроить кладовую.

Наверху также санузел и спальни. Их можно разделить на рабочие и игровые зоны. Комнаты на втором этаже имеет смысл сделать довольно просторными.
Двухэтажное здание чаще строят на небольшом участке, либо если семья желает поместить на территории еще и гараж, хозяйственные постройки, бассейн, баню. Делать гараж на первом этаже строения не вполне целесообразно, поскольку в жилой сектор небольшой площади будут проникать запахи бензина, мазута, других технических жидкостей.

Гараж лучше обустроить недалеко от дома, соединив строения большим навесом. Получится территория, на которой можно обустроить летнюю беседку, мангальную зону.
Самая лучшая планировка дома. Типовой проект или индивидуальный: что выбрать?
Десятки белорусских компаний спорят за первые места в выдаче Google по запросу «типовой проект дома». Готовых вариантов море. Комплект планов и всевозможных схем для дома площадью 120—140 квадратных метров обойдется примерно в 1000—1500 рублей. В эту сумму входят эскизный проект, подробный строительный проект, а также проект инженерных сетей.
В отличие от типового, индивидуальный проект разрабатывается под конкретного заказчика и может стоить в несколько раз дороже. Цена тут зависит от площади дома, количества и глубины проработки тех или иных разделов. Работа над таким проектом занимает примерно полтора месяца.
— Многие проектировщики были бы только рады продавать исключительно готовые проекты и ничего больше не делать. Но так не получается, — говорит Андрей Цивилько, руководитель архитектурного бюро Civil&ko. — В процессе знакомства с участком возникает множество переменных, влияющих на тип фундамента, расположение дома, его планировку и т. д.
Почему приглянувшийся типовой проект не всегда может «сесть» на участок? Самый простой пример — ограничения из-за соседских построек. Помним о противопожарных разрывах: между деревянными строениями они составляют 15 метров, между каменными — 8—10. Если участок узковат, а дома соседей стоят где-то рядом с границами, то наши возможности уже существенно ограничены. Придется вытягивать дом в длину — а это переработка проекта.
Второй момент — виды из окон: какой смысл в панорамном остеклении, если оно обращено на глухой забор или ворота? Не все, к сожалению, задумываются об ориентации дома по сторонам света. Встречаются примеры, когда солнце заливает гараж и входную группу, в то время как расположенные с северной стороны гостиная и терраса остаются в полумраке. В индивидуальном проекте все эти факторы учитываются — вплоть до того, на дом какого соседа приятнее смотреть из окна гостиной, куда будут падать солнечные лучи на рассвете и закате.
Идеальный проект — тот, который подходит вам и вашей семье не только по планировке и красивому внешнему виду, но и по карману. Нашли такой среди типовых проектов? Отлично! Но если есть моменты, которые смущают в нем уже сейчас, когда он только на бумаге, и вы надеетесь, что потом что-то придумаете и все исправите, то нет — скорее всего, не исправите. В этом случае индивидуальный проект поможет разрешить все вопросы.
Источник: https://domastroevo.ru/stati/odnoetazhnyy-ili-dvuhetazhnyy-dom-uchastok
Планировка одноэтажного дома. Одноэтажный дом 10 на 10 метров с мансардой: планировка с расширением вверх
Для сравнительно большого по площади одноэтажного дома 10×10 планировка комнат предполагает достаточно много вариантов. К помещениям, для которых хватит места в таком доме, можно отнести от 2 до 4 спален, просторную кухню, чаще всего совмещённую с гостиной , санузел и кладовую. Но, если даже такой площади недостаточно, здание можно расширить – на этот раз вверх. Мансардный этаж – идеальный вариант для домовладельца, который не может себе позволить постройку двухэтажного жилья.

Здание 10 на 10 с мансардным этажом
К преимуществам выбора мансардного этажа относят:
- рациональное использование подкрышного пространства, на котором теперь будет располагаться жилая или хозяйственная зона, а не обычный чердак;
- небольшая нагрузка, которую обеспечивает планировка одноэтажного дома 10 на 10 м с мансардой на фундамент и грунт;
- экономия стройматериалов по сравнению с двухэтажной постройкой.
При этом расширение пространства может оказаться существенным. Даже дом с двухскатной крышей , под которой обустроена мансарда, увеличивает площадь на 50–67% по сравнению с первым этажом. Для ломаной кровли увеличение составит от 80 до 90 процентов, хотя потребует и больших затрат на стропильную систему и кровельные материалы .

Мансарда с ломаной крышей
Правильно разработанная планировка одноэтажного дома 10×10 позволит комфортно разместиться в нём семье из 5–6 человек. При этом общая площадь здания составит не меньше 140–150 кв. м, даже с учётом лестничного пролета . А максимальный размер может достигать 170–180 кв. м – достаточно даже для двух средних семей из 3–4 человек.
Самый бюджетный дом для постоянного проживания. Как глобально сэкономить на строительстве?
Не стройматериалами едиными можно сократить расходы на возведение собственного дома. Чтобы максимально сэкономить, необходимо:
- Продумать план будущего здания. Чем проще планировка – тем дешевле его обустраивать. Не стоит разводить санузлы по разным концам здания – прокладка труб влетит в копеечку. Размещение кухни рядом с санузлом также позволит сэкономить на трубах. Ровная геометрия стен, отсутствие нефункциональных ниш и перепадов высот пола хоть и выглядят просто, но не требуют лишних затрат. Вместе это даст до 20% экономии от общей стоимости.
- Отказаться от архитектурных излишеств. Балконы, террасы и многоуровневая крыша могут увеличить стоимость дома на 10-15%. Гораздо рациональнее в будущем построить небольшую беседку или пристроить открытую террасу.
- Использовать стройматериалы, производимые в своем регионе, отказавшись от популярных и разрекламированных. Это позволит не только покупать их дешевле, но и не переплачивать за доставку. Так, дома из ракушечника в Алтайском крае являются одними из самых бюджетных, а вот Москва не может похвастаться низкой ценой на этот материал.
- Максимально облегчить стропильную систему, используя легкие кровельные материалы. Тогда вместо бруса 10х10 см можно будет использовать уложенную на торец доску 5х10 см, при этом не уменьшая шаг стропил.
- Отказаться от подвального помещения. Мероприятия по заливке, гидроизоляции и черновой отделке подвала добавят к смете еще 20 % стоимости.





Проект дома 8х10 с отличной планировкой. Проекты с мансардой
Возможности планировки дома 8 на 10 с мансардой расширяются по сравнению с одноэтажными постройками. Популярность проектов объясняется следующими причинами:
- Увеличение площади не требует внесения изменений в план постройки. Вы получаете дополнительное жилое пространство, затратив меньше средств, чем владельцы полноценных двухэтажных коттеджей; места хватит для 4-6 человек.
- Пространство удобно делится на две части: внизу располагается дневная зона общего пользования, сверху достаточно места для двух спален и полноценной ванной. На первом этаже оборудуется только санузел.
- Важная часть обустройства мансарды – естественное освещение, особенно, если в ней будет несколько изолированных помещений. Можно установить панорамные окна или встроить окна в крышу.
- Особенность проектов с мансардой – лестница, которая крадет часть полезной площади. Ее размещают в холе или гостиной, в зависимости от чего используют место под пролетом: устраивают кладовку, небольшое рабочее место или зону отдыха.
Двухэтажные проекты
Дом 8х10 с полноценным вторым этажом имеет полезную площадь порядка 160 квадратов, и в нем хватит места для большой семьи из нескольких поколений. Расширенные возможности планировки дома 8 на 10 в двухэтажном варианте не вызывают сомнений. Особенно приятен факт, что на участке постройка занимает такую же площадь, как дом с меньшей вместимостью.
Помещения верхнего этажа по площади ничем не отличаются от комнат нижнего яруса, что является значительным плюсом по сравнению с мансардой. Это позволяет разместить на верхнем этаже не только три спальни и ванную, но, например, и гардеробную, или заменить одну спальню кабинетом. А, если включить в проект цокольный этаж, то в него можно перенести подсобные помещения и получить просторную гостиную.
План одноэтажного дома. Проекты одноэтажных домов
Одним из преимуществ строительства нового дома является то, что вы можете начать с нуля с плана этажа. Новый план дома — это ваша возможность создать то, что идеально подходит для вашей семьи и образа жизни. Мы собрали для вас современные проекты одноэтажных домов бесплатно с чертежами и фотографиями.
Топ 10 проектов одноэтажных домов
1. Проект небольшого современного дома 60 м² для небольшой семьи.
Этот небольшой современный дом идеально подходит для небольшой семьи. Он имеет две спальни стандартного размера и общий туалет и ванну.
Небольшой современный дом общей площадью 60 м² может быть построен на участке площадью 164 кв.м. с шириной 11,5 метра и глубиной 14,3 метра.
Несмотря на то, что это небольшой дом, в его дизайне используются простые, но современные элементы. Он окрашен в оттенки оранжевого и белого, что придает ему более свежий и современный вид. В этом небольшом современном доме с акцентными стенами из кирпича.
Крыша, покрытая длинным пролетом из оцинкованного железа, отделана под черепицу.
В этой конструкции дома две спальни. Напротив гостиной находится большая спальня, которая может быть преобразована в главную спальню. Другая спальня меньшего размера расположена напротив обеденной зоны. Во всех спальнях есть встроенные шкафы.
2. Проект практичного одноэтажного дома в классическом стиле с террасой площадью 142 м²
Подробнее об этом проекте здесь .
3. Проект одноэтажного дома из кирпича площадью 100 м²
4. Проект одноэтажного дома с тремя спальнями площадью 121,5 м²

5. Проект одноэтажного дома с тремя спальнями и гаражом
6. Проект одноэтажного дома с четырьмя спальнями
7. Проект одноэтажного дома площадью 136 м²
8. Проект одноэтажного оригинального дома площадью 183 м²
9. Проект одноэтажного дома площадью 142 м²
10. Проект одноэтажного дачного дома с верандой
Проекты одноэтажных домов с гаражом: чертежи и фото
Обеспечить свой машине защиту — это обязанность каждого ответственного автолюбителя. Часто получается так, что хозяева начинают строить дом, и лишь после этого осознают, что место для машины не предусмотрено. Ставить её за воротами небезопасно и непрактично. Гараж может быть как отапливаемым, так и неотапливаемым, но он убережет автомобиль от перепадов температуры, града, веток и преступников.

Проекты одноэтажных домов с тремя спальнями: чертежи и фото
Для семей с двумя детьми идеально подойдут проекты, в которых предусмотрены три отдельные спальни. Таким образом все будут иметь своё пространство, а между детьми не будет возникать конфликтов. В отдельной комнате каждый сможет заниматься любимым делом. А у родителей не будет проблем с оформлением детских.
Также проект с тремя спальнями подойдет для тех людей, у которых часто остаются гости на ночь. Вы сможете с комфортом разместить всех задержавшихся допоздна, а утром угостить их завтраком.