Проект бани из бруса с террасой. Баня 4 на 4,5 с террасой
- Проект бани из бруса с террасой. Баня 4 на 4,5 с террасой
- Баня с верандой под одной крышей. Крыши бань с террасой
- Баня из бруса 6 н. Планировка бани 6x4 — идеи, материал, этажность
- Жилая баня с террасой. Варианты планировки бани
- Одноэтажные бани из бруса. Проекты одноэтажных бань из оцилиндрованного бревна или блоков (140 фото). Идеи для строительства с террасой и комнатой отдыха
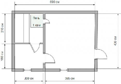
Проект бани из бруса с террасой. Баня 4 на 4,5 с террасой
По проекту баня состоит из трех помещений, к ней пристроена терраса на отдельном несвязном фундаменте (об одном из вариантов его строительства читайте ниже). В здании бани есть три комнаты:
- комнаты отдыха;
- парная;
- душевая.

Проекты бани 4 +на 4 с террасой на отдельном столбчатом фундаменте
Параметры помещений можно изменять, сдвигая простенок, отделяющий комнату отдыха. Если баня строится под суховоздушную сауну, болшой объем парной не нужен: рассчитайте количество людей, которые должны поместиться за один заход, потом посчитайте площадь полок для их комфортного устройства: для «сидячих» мест можно брать на человека 1-1,2 метра, на «лежачие» — 2,1-1,2 м. Ширина полок — 0,7-0,9 м. Высчитаете площадь полоков, добавьте место под печь и ее ограждение и немного площади для свободного перемещения. Получите требуемую площадь.
Расчет площади парилки в русской бание аналогичен, то если в сауне «лежачие» места можно не делать — там обычно только сидят, то в русской парной они обязательны. Еще разница в том, что ограждение печи для сауны — это деревянная конструкция, которая не дает прикоснуться к раскаленным стенкам. В русской же парной, если ставят металлическую печь, то обязательно ее закрывают кирпичным экраном , а это уже совсем другие размеры. Потому и площадь требуется выделить большую.
Подробнее о планировке бань, размерах помещений читайте тут . О том, где и какие окна размещать написано в статье «Банные окна: где ставить и каких размеров» . О том, какие двери и их размеры нужны в парилке и других помещениях, читайте в статье «Какие двери выбрать для бани и сауны»

Это пример того, как выглядит воплощение проекта
Использование такой бани зимой будет не комфортным: вход а в комнату отдыха прямо с улицы и холодный воздух будет явной помехой. Для устранения этого недостатка можно или отгородить часть комнаты отдыха под тамбур, или сделать часть веранды закрытой. Второй вариант выглядит предпочтительнее из-за небольших габаритов помещений. Но тогда нужно или делать вход с другой стороны, или смещать двери.
По выбору дровяной печи для бани : для данного проекта нужен будет компактный вариант, возможно, высокий и узкий, но можно попробовать вписать просто небольшую по размерам. Объем получится совсем небольшой, так что малых мощностей должно хватить. В данном проекте предусмотрена печь, которая топится из комнаты отдыха. Одновременно она будет отапливать и ее, так что нужен некоторый запас мощности, не забывайте об этом (если планируете посещение бани зимой). Например, «Жара «Малютка» , печи Варвара — модели «Паленица» и «Мини» , или « Компакт», «Оса», «Шилка» и «Бирюса» у «Термофора».
Баня с верандой под одной крышей. Крыши бань с террасой
Нельзя не упомянуть, что владельца бани есть несколько вариантов устройства кровли. В первую очередь речь идет об односкатных и двускатных крышах. Вальмовые (четырехскатные) встречаются реже. Конечно, есть еще вариант с мансардой, но это уже гостевой домик получается.
С односкатной
Обычная односкатная крыша представляет собой безконьковую стропильную систему, протянутую от одной стены до параллельной напротив нее. При этом высота стен должна быть разной, разница эта зависит от выбранного уклона кровли.
Тем, кто делает баню с односкатной крышей и верандой/террасой вовсе не обязательно удлинять свесы настолько, чтобы они закрыли террасу. Можно сделать еще одну односкатную крышу над верандой, но с уклоном в противоположную сторону. Получится вроде двускатной, только разделенной на две части, находящиеся на разных уровнях.

Баня с односкатной крышей и верандой. Фото НЗСК
Подробно об односкатных крышах – здесь.
Двускатная
Это более сложный, чем односкатная, но чаще встречающийся вариант. Делается он обычно профессионалами, потому что кровля требует инженерных расчетов, чтобы она потом не разрушила стены распорным давлением, чтобы ее не сорвал ветер и т.д.
Главная особенность данного вида кровли состоит в том, что конек (верхняя опора стропил) держится на фронтонах из основного материала стен. То есть нагрузка от него передается двум внешним стенам, параллельным стропилам. (У односкатной нагрузка от стропил передается сразу стенам, на которых они закреплены.)

Двускатная крыша бани с беседкой под барбекю. Фото СтройДом
Двускатная крыша для бани с террасой или беседкой очень подходит. Помимо увеличенных свесов возможно также встраивание перпендикулярно расположенной второй двускатной кровли – как раз в качестве крыши террасы. Однако такое решение лучше закладывать на стадии проектирования.
Баня из бруса 6 н. Планировка бани 6x4 — идеи, материал, этажность
О чем задумываются владельцы коттеджей и загородных домов? О том, как хорошо было бы поставить баньку. Ведь это SPA-салон в собственном распоряжении. А какая площадь должна быть?
В маленькой будет тесно, большая будет быстро остывать и усилий на поддержание микроклимата придется прикладывать много. А вот баня 6×4 метра – один из оптимальных размеров.
Строить баню самим? Почему бы и нет, если есть талант к строительному делу, необходимое оборудование и много сил. Купить? Такой вариант тоже хорош, поскольку получаете уже готовый банный комплекс. Но точно ли все устроит?

Сами будете строить или закажете готовое здание, проект бани 6×4 вам понадобится. Предлагаем несколько фото с размерами и внутренней планировкой. Так можно визуально представить, где вы и гости будут париться, где принимать душ, переодеваться и отдыхать.
План бани может быть один, а вариантов исполнения несколько в зависимости от материала для строительства стен. А если что-то не устраивает, можно внести дополнения в проект в виде веранды или террасы внизу или мансарды наверху.
Планировка бани 6×4 метра
Что должно быть в бане помимо самой парилки и сеней? Забудем темные и тесные деревенские строения, как помещения для купания. Сегодня баня – это место отдыха, поэтому план бани 6×4 должен быть хорошо продуманным. Что в него включить?


- Парная. Здесь стоит печь, находятся лавки с лежаками. Обычно парная занимает вторую по величине комнату и находится, как правило, в углу здания.
- Душевая. Находятся мойка и парилка отдельно, иначе либо парилка остынет, либо душ не принесет желаемого облегчения.
- Предбанник – место, где можно оставить вещи.
- Комната отдыха – самое большое по площади помещение. Здесь и удобные диваны, кресла и стол, и телевизор. Включив фантазию, можно украсить комнату живыми цветами и комнатным водопадом.
Комната отдыха внутри самой бани – отличное место для зимнего времяпрепровождения. А летом будет приятно посидеть на открытой террасе, в межсезонье – на застекленной веранде. Стоит продумать этот момент и спроектировать план бани 6×4 с террасой или верандой. С фото таких вариантов мы поможем.
Хочется в бане иметь помимо стандартных помещений еще и бассейн? Планировка бани 6×4 может учитывать и это. В таком случае понадобится второй этаж или мансарда. На них можно оборудовать раздевалки, комнату отдыха или душевую, а парилку или бассейн оставить снизу. Вдохновляйтесь фото-идеями.



Подробней о помещениях
Классическая баня 6×4 имеет три помещения.

Комната для отдыха, парная и душевая
Предбанник
Здесь гости раздеваются, тут же в ящиках хранится уголь или дрова для печи, а на полках веники.

Для экономии места предбанник часто объединяют с гостевой комнатой, расставляя здесь мебель, устанавливая телевизор и другие приборы, накрывая стол.
Его площадь в идеале – из расчета на 1 человека по 1,3 кв.м + место для хранения банных принадлежностей и вещей.
Важно! В комнате отдыха должно быть окно.
Парилка
В помещении стоит печь – натуральная, газовая или электрическая. К стенам крепятся полки. Здесь требования иные – минимум по 1 метру на каждого + печь + расстояние от печи до стен и проходы.

Идеальная высота – 2-2,1 метра. Если потолки будут выше, пар будет занимать лишнее, неиспользуемое пространство. Если ниже – накапливаясь, горячему воздуху понадобится выход, и он улетучится в вентиляцию. Ширина полок – 40-90 см.
Важно! Дверь должна открываться не в парилку, а из нее, то есть в комнату отдыха. В противном случае в предбаннике будет высокая температура и влажность.
Как могут париться гости и хозяева в парной, приведено на схеме ниже.

Как правильно париться
Душевая
В зависимости от размера помещения, здесь можно установить душевую кабинку, туалет, вмонтировать душ в стену.

Обогреваться душевая может той же печью, что и парилка (если у них смежная стена).
Выбрав планировку с учетом необходимых помещений в бане и их размерами, нужно определиться с материалом, из которого и будет возводиться комплекс.
Баня из бревна
Баня из бревна – это классика. И наиболее популярны оцилиндрованные бревна. Деревенские парилки как раз и возводили из сруба.

Прелесть таких комплексов в том, что дерево – материал здоровый, экологически чистый. Возводится такая баня в рекордные сроки. Если бревна обрабатываются механическим способом, а не вручную, стоимость их невелика. Сэкономить можно и на внутренней отделке – дерево само по себе прекрасно. А для пожаробезопасности и противостояния грибкам бревна обрабатываются специальными растворами.
Недостатки появятся, если компания, вызвавшаяся поставить баню, не просушила бревна, поэтому через некоторое время здание «поведет», или неправильно выбрала дерево: хвойные породы «плачут», дуб может растрескаться от жары.
Жилая баня с террасой. Варианты планировки бани
Террасу (веранду) выгодно строить не как отдельное сооружение, а под одной крышей с баней. Поэтому хотя бы один размер (длина или ширина) у них должен быть одинаков. Проще всего реализуется данная идея следующим образом: двускатная крыша бани одной стороной опирается о капитальную стену, а другой ложится на стойки (столбики) террасы.
Второй шаг — определение полезной площади террасы. Она напрямую зависит от количества людей, одновременно посетивших баню. Семье из 4 человек для удобного размещения за столом достаточно 8 м2. Если же компания будет более представительной (6-8 человек), то закладывайте в проект не менее 14 м2. Определив площадь веранды, можно окончательно определиться, с какой стороны бани она лучше всего размещается.
Вдоль узкой торцевой стены оптимально компонуется небольшая терраса. Если же вам хочется сделать более просторное помещение, то открытый навес лучше сделать вдоль широкой стороны бани.

Еще один интересный вариант компоновки – размещение террасы между баней и жилым домом. В этом случае вам не придется искать место для приготовления еды или ждать окончания ливня. Только в этом случае лучше пристроить баню с верандой к глухой стороне дома, чтобы дым из трубы каменки (при использовании твердого топлива) не попадал в окна жилых помещений.

Обдумывая проект бани с террасой в части ее внутренней планировки, нужно исходить из внешних габаритов сооружения. Именно в эти рамки вам придется «вписать» все помещения: предбанник, санузел, душ, парилку комнату отдыха и террасу. Можно сэкономить полезную площадь, отказавшись от комнаты отдыха и переложить ее функции на веранду. Однако, в этом случае в холодное время года вам негде будет расслабиться после помывки в бане. Поэтому зарезервируйте для нее хотя бы 6-7 м2.

Если в ваши планы не входит возведение полноформатной бани размером 6 на 6 метров как на рисунке выше, то можно поступить иначе: убрать из планировки комнату отдыха, застеклить террасу и сделать в ней печь-барбекю.
Для осеннего и весеннего сезонов тепла от такого очага будет достаточно для создания комфортной температуры. Внешние габариты бани с верандой в этом случае можно уменьшить до минимума (4 на 4 метра), не проиграв в комфорте и удобстве пользования.

Источник: https://bani-iz-brusa.postroivsesam.info/stati/proekty-bani-s-terrasoy-i-domov-tipovye-proekty
Одноэтажные бани из бруса. Проекты одноэтажных бань из оцилиндрованного бревна или блоков (140 фото). Идеи для строительства с террасой и комнатой отдыха
Чего не хватает на даче, если дом с гаражом стоит, сарай, кладовая и другие мелкие строения построены? Бани нет! Как без неё, где здоровья набираться после трудовой недели для работы в огороде либо саду? Но как её сделать: из бруса, бетона и кирпичей чтобы детям внуков послужила. Далее разберёмся.
Главное создать соответствующий проект одноэтажной или многоэтажной бани. Потом получить разрешение у соседей и местных властей, чтобы строение никому не мешало и всё было по закону.

В противном случае можно получить крупный штраф и испортить отношения с другими дачниками. Сразу видно дело не простое придётся постараться и напрячься чтобы его завершить и спокойно пить чай в комнате отдыха после парной в субботний вечер. Мы будем опираться на бюджетный вариант из дерева, поскольку большую часть работы можно выполнить самостоятельно и это не сильно скажется на семейном бюджете.
Один или несколько этажей
Это зависит от количества пользователей. Для маленькой семьи достаточно одноэтажной бани.

Если много пользователей: родители с обеих сторон, братья, сёстры другие родственники, тогда стоит подумать о проекте на 2 — 3 этажа. Но такое бывает редко.
Преимущества проекта одноэтажной бани:
- Умеренная стоимость в сравнении с многоэтажными проектами;
- Если используются свои руки с минимальной помощью со стороны, значительно быстрее строится в свободное время;
- Строение проще обслуживать и ремонтировать. Как это и почему? Например, древесина! Она не долговечна, требуется покрытие специальным составом. Через время, необходимо обновление слоя в противном случае перестанет защищать основной материал. Проблема в том, что работа со 2 этажом потребует развитые строительные навыки и специальные приспособления. И ещё это увеличит расходы на специальное средство;
- Внутренняя лестница для посещения 2 этажа занимает много свободного пространства. Слишком крутой вариант лестничной конструкции марша не особо комфортный вариант;
- Отопление 2 — 3 этажа потребует дополнительные затраты;
- Одноэтажное строение проще вписать в стиль дачного участка.

Что нужно для комфортности бани
В проекте нужно учитывать реперные точки, так называются ключевые моменты. Именно они влияют на комфортность строения.
Важные детали проекта:
- Цоколь высотой не менее 400 мм от земли. Необходимо для оптимальной гидроизоляции;
- Двухскатная крыша проще монтируется и обеспечивает высокий уровень сохранения тепла для внутреннего пространства. Гибкая битумная черепица считается оптимальным материалом на основе натуральной минеральной присыпки;
- Для увеличения защиты дерева от сточных вод изготавливаются свесы кровли с выступом за наружную стену на не менее 600 мм;
- Вместо предбанника и комнаты отдыха стоит соорудить веранду, поскольку благоустройство потребует меньше времени и средств;
- Лестница на крыльце бани создаётся на основе широкого пролёта и минимального угла, поскольку гарантируется комфорт для людей с любыми физическими недостатками: сколиоз, травмы ног, общая слабость от старости;
- Промежуточный тамбур сохраняет тепло. Здесь хранятся: дрова, веники, инвентарь для бани;
- Парилка требует 1 квадратного метра на человека. Выгоднее уменьшенное пространство, поскольку проще поддерживать требуемый уровень температуры и влажности. Как правило, расчёт идёт на не более 8 человек одновременно находящихся в бане;
- Соединение комнаты отдыха с минимальной кухней считается оптимальным подходом к эргономике. Можно интегрировать барную стойку либо зону барбекю с полноценным дымоходом;
- Стены изготавливаются из брёвен собственного изготовления с добавлением цилиндрового и классического бруса. Вспомогательные материалы, необходимы для доводочной работы связанной с монтажом узлов и различных элементов;
- Требуется чёткое распределение на зоны. Выделяется: отдел парилки, мойки, санузла, комнаты отдыха в союзе с минимальной кухней и хозяйственное помещение. Это необходимо для рационального использования отопления и обеспечения разных условий для комфортности;
- Оконные проёмы выгодны на высоте в 900 мм. Направлены на юг либо запад для обеспечения максимума естественного освещения.
