Построить туалет своими руками. Туалет с выгребной ямой
- Построить туалет своими руками. Туалет с выгребной ямой
- Как правильно сделать уличный туалет. Уличный туалет на даче своими руками: виды конструкций, чертежи и этапы работ
- Построить туалет своими руками в частном доме. Дачный туалет из дерева – чертежи с размерами
- Видео строительство деревянного туалета своими руками
Построить туалет своими руками. Туалет с выгребной ямой
Такой вариант применяется тогда, когда самый высокий уровень грунтовых вод находится на 1 метр ниже, по сравнению с глубиной выгребной ямы. Объем ямы зависит от того, сколько человек будет посещать туалет. Как правило, в каждой семье насчитывается в среднем 3-4 человека, поэтому объем ямы может находиться в пределах полутора кубических метров. Если строится туалет на даче, то его в основном посещают в выходные дни и объем ямы может быть значительно меньше.

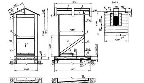
Чертеж дачного туалета с выгребной ямой
Форма ямы может быть любой, но в основном ее делают квадратной формы, а иногда круглой формы. Стенки лучше выложить из кирпича, сделать бетонными, из камня или из просмоленной древесины. Подойдут для такой конструкции бетонные кольца, но при этом придется позаботиться о герметичности конструкции.
Герметичность ямы достигается за счет специальных мер. Под низом и по бокам ямы делается глиняный замок, который состоит из 20-30 см слоя утрамбованной глины. Этот слой глины можно заменить гидроизоляционным слоем, нанесенным на кладку из кирпича.
Необходимо также подумать о системе вентиляции. Для этого берется труба диаметром 100 мм и опускается одним концом в яму, а другой конец должен возвышаться над туалетом сантиметров на семьдесят. Понадобится также вентиляционное отверстие в туалете в виде небольшого окошка. Оно делается в верхней части двери или на боковой стенке.
Когда яма заполнится на 2/3 объема, ее содержимое нужно удалять, вызвав машину ассенизатора. Поэтому, выбирая место для туалета, необходимо позаботиться о том, чтобы специальная машина смогла к нему подъехать.
Выгребная яма может быть:
- Обычной и располагаться под самим туалетом.
- В виде люфт-клозета, когда яма располагается где-то в стороне.
Подобное расположение ямы требует прокладки сантехнической трубы.
Естественно, что строительство люфт-клозета на дачном участке может оказаться финансово необоснованным, разве что дача будет посещаться круглый год. Такое строительство потребует полноценной системы вентиляции, а также наличие воды для смыва и канализации. Поскольку канализация имеет определенный уклон, а также ее монтаж осуществляется ниже глубины промерзания грунта, то глубина такой ямы весьма внушительная.

Схема люфт-клозета. Если любите комфорт, построить туалет можно прямо в дачном домике
Устройство подобного туалета требует определенных навыков и знаний. Например, уклон труб составляет порядка 2-3 см на метр. Если сделать уклон меньше, то трубы придется часто чистить, так как стоки будут застаиваться, особенно в местах сочленения труб. Если сделать уклон слишком большим, то вода будет убегать из труб первой, а твердые компоненты останутся в трубе, распространяя неприятные «ароматы». К тому же, они могут собираться, создавая пробки, что также потребует частой очистки канализации, а это «удовольствие» достаточно дорогое, так как без специалистов здесь не обойтись.
Как правильно сделать уличный туалет. Уличный туалет на даче своими руками: виды конструкций, чертежи и этапы работ
Любовь и уважение к окружающей среде – визитная карточка порядочного человека в любых жизненных ситуациях. В том числе и на даче. Перефразируя классика, можно сказать: в ней всё должно быть прекрасно: и дом и сад и туалет. Вот в последнем пункте и попробуем разобраться. Есть немало способов хранения и утилизации физиологических отходов. Но почему-то до сих пор превалирует мнение о том, что выгребная яма это дёшево и практично. В третьем десятилетии XXI века возводить отхожее место с выгребной ямой более чем странно. Времена, когда такой яме на даче не было альтернативы, давно в прошлом. Отношение законодателя, исполнительной власти к экологической составляющей ужесточается. Уровень грунтовых вод, место расположения, неприятные запахи: всё это внимательно отслеживается. Если они на глубине менее 2,5 м, от выгреба придётся отказаться. Вот данные по Московской области. Рис. 1 Современные требования
Грунтовые воды
Как видим, выгребной яме даже с водонепроницаемым дном и стенками в Подмосковье вообще не место. Потому что при весеннем паводке вода может переполнить яму, её содержимое поплывёт по участку. Проверьте, такая ситуация не только в этой области. Региональные карты есть в открытом доступе.
Место туалета на строительном плане дачного участка
Руководящие документы:в редакции 2018 г. (подтверждает наше право построить на участке туалет и компостную яму),. Регламентируют расстояния между объектами. Проиллюстрируем это схемой.
Рис. 2
Туалет необходимо располагать.
- От дома, бани – не менее 12 метров.
- От колодца не менее 8 метров.
- От забора (между улицей или соседом) не менее одного метра.
Несоблюдение правил влечёт за собой штраф с такой формулировкой: порча земли, уничтожение плодородной почвы.
Неприятные запахи
Если туалет возводится в метре от забора соседа, но у него рядом беседка, возможна судебная тяжба. Поэтому учитывать интересы соседей необходимо.
Виды дачных туалетов
Рассмотрим три типа: люфт – пудр клозеты, биотуалеты.
Люфт-клозет
Получил своё название от вентиляционного канала, совмещённого с дымоходом. За счёт его нагрева образуется тяга. Естественно, никаких запахов. Летом для создания тяги в нижний отдел дымохода встраивают простейший нагреватель типа лампы накаливания на 15 – 20 Вт.
Яма периодически откачивается.
Должен иметь одну наружную стену, в ней устраивается форточка.
Рис. 3. 1 – дымоход; 2 – люфт-канал; 3 – утеплённая крышка; 4 – стандартный канализационный люк; 5 – вентиляционная труба; 6 – глиняный замок; 7 – кирпичные стены.
Рис. 4. Внутридомовой люфт-клозет с индивидуальной вентиляцией
Довольно сложная, но безупречная в санитарном отношении конструкция. Расчёт объёма такой: при очистке раз в год 1 куб на человека: при четырёх – 0,25 куба. При любых расчётах глубина не менее 1 метра: уровень содержимого не должен быть менее 50 см от земли.
Яма герметична: по глиняному замку заливается бетонное дно, стены также бетонные или обкладываются кирпичом. Внутренние поверхности изолируют битумом. Вентиляционное отверстие всегда должно быть выше обреза трубы, по которой поступают отходы.
Конечно, такая схема не совсем вписывается в понятие дачный домик, но этот тип туалета не вызовет претензий ни у соседей, ни у органов местной власти. Это очень важно!
Такая же конструкция уличного типа.
Рис. 5; 1 – вентканал; 2 – герметичная крышка; 3 – глиняный замок; 4 – герметичная оболочка ямы; 5 – содержимое; 6 – отбойная доска; 7 – вентиляционное окно.
Конструкций стульчака достаточно много, выпускается именно для таких туалетов и санфаянс.
Рис. 6. Унитаз для люфт-клозетов.
Диаметр внутреннего отверстия 300 мм, крышка в комплект не входит.
Построить туалет своими руками в частном доме. Дачный туалет из дерева – чертежи с размерами
Конечно, чаще всего, решив построить уличный туалет своими руками, в качестве основного строительного материала используют древесину. Она дешева, доступна, легка в обработке и дает немалый простор для творчества. Тем более, что вариантов строительства тут много. Давайте изучим наиболее интересные из них, а заодно выделим размеры дачного туалета.
Теремок
Этот туалет для дачи также известен, как избушка. Считается наиболее сложной архитектурной формой, но в то же время одной из самых красивых. Материалов на строительство придется потратить немало – подрезать приходится много.

Но перерасход древесины компенсируется не только внешней красотой, но и тем, что туалет типа «теремок» хорошо сохраняет тепло даже зимой, да и дождь со снегом доставляют меньше хлопот, чем в других постройках подобного типа.
Домик
Ещё одно удачное решение, если вы хотите построить комфортный туалет на дачном участке своими руками. Места он занимает не больше, чем простейший скворечник, но при этом имеет более высокую прочность, да и по уровню комфорта не сравнится с ним.

Скворечник
А вот тем мастерам, которые при строительстве выбирают проекты максимальной простоты, наверняка понравится деревянный скворечник. Возвести его на участке своими руками проще всего. Односкатная крыша и примитивная схема позволяют уменьшить расход строительных материалов. К тому же, крыша дачного туалета дает возможность легко разместить напорный бак – полезная вещь, если вы планируете строить туалет с унитазом.
Но недостатков у конструкции немало. В первую очередь – постройка получается шаткой. К тому же, она легко продувается ветром. Наконец, при обильных осадках влага наверняка просочится внутрь, что также не добавит комфорта.

Шалаш
Желаете красивый деревенский туалет, удобный в эксплуатации и простой в строительстве? Тогда вам подойдет шалаш. Архитектурная форма выглядит просто, благодаря двускатной крыше. Но при этом постройка обладает устойчивостью к осадкам и ветрам. Особый дизайн делает её ещё и прочной. Расход материалов также сравнительно невелик.
