Баня с жилой комнатой и кухней. Жилая баня: проекты с фото
Баня с жилой комнатой и кухней. Жилая баня: проекты с фото
Жилая баня должна обеспечивать возможность комфортного пребывания в ней на постоянной основе как минимум для двух-трёх человек. Это может быть как круглогодичное проживание, так и сезонное. В первом случае прийдётся позаботиться эффективной системой отопления и обустроить качественную теплоизоляцию всех помещений. Если же постройка рассчитывается на пребывание в ней только в период тёплого времени года, теплозащита и отопление не потребуют значительного вложения сил и средств.
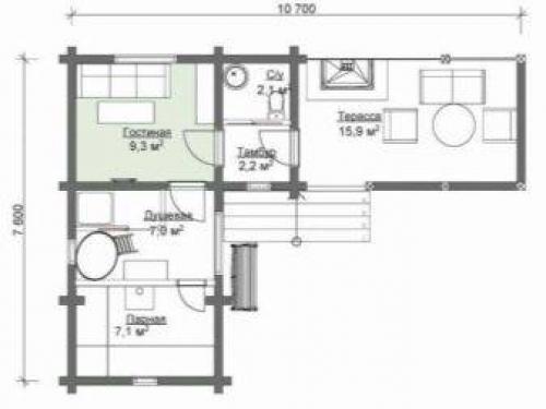
Данная баня имеет два этажа, первый из которых включает все требуемые для удобного проживания функциональные помещения, а также парное отделение. На втором мансардном уровне располагается просторная спальня, позволяющая разместить большую двухспальную кровать и ещё небольшой диван. Вместе со спальным местом внизу, на первом этаже, постройка вполне подходит для небольшой семьи из трех человек. А при необходимости может вместить ещё и одного гостя.
Постройка в своей основе имеет мелкозаглубленный ленточный фундамент с буронабивными сваями. Коробка стен изготовлена из деревянного каркаса, обшитого ОСП (OSB) плитами. Утепление по стенам выполнено из базальтовой ваты толщиной 150 мм, потолок первого этажа имеет теплозащитный слой 200 мм. Мансарда также утеплена для зимнего проживания.
Вот так выглядят все помещения внутри конструкции. Как видно, несмотря на компактные габариты, жилого пространства в бане достаточно много. Кухня снабжена барной стойкой, которая отгораживает пространство для приготовления пищи от удобного дивана.
На фото мансарды можно видеть вариант для проживания семьи с маленьким ребёнком.
Парная отделана вагонкой в классическом стиле и снабжена деревянной дверью со стеклянной вставкой. Разогревает небольшое помещение печь от завода Теплодар под названием Сибирь 20 ЛК. Выходя из парилки можно сразу пройти в санузел, где есть возможность зайти в душевую кабинку и охладиться после банных процедур.
Постройка используется в течение всего года и имеет подвод воды от централизованной системы, питающейся из одной скважины, установленной на весь посёлок. Баню таких габаритов с успехом отапливает котёл мощностью 3 кВт, а нагрев воды для бытовых нужд осуществляется электрическим водонагревателем.
Каркасная жилая баня 6,5х6,5 м для большой семьи
Такой проект будет отличным выбором для семьи из нескольких человек, которая собирается проживать в бане с возможностью иметь максимально комфортные жилищные условия. Три спальни на мансардном уровне, плюс жилые комнаты нижнего яруса легко вместят семью из четырех человек. А при необходимости без проблем обеспечат дополнительное пространство, которого хватит на размещение друзей или близких, прибывших ненадолго погостить.
Размеры свободной площади первого этажа позволяют в столовой размерами 4х2,7 м установить кухонную мебель с габаритами, недоступными в большинстве современных квартир. Удобство готовки для хозяйки дома гарантировано, а размеры столешниц способны вместить любое количество современной бытовой техники. К кухне примыкает большая комната (зал) 4х5 метров.
Парилка 2.х2.7 метра выходит в небольшую помывочную 2,7х1,6 м, где установлена удобная душевая кабина.
Проект бани с жилой комнатой на втором этаже. Индивидуальные особенности двухэтажных бань
Современные тенденции строительства таковы, что баня со вторым этажом представлена обмывочной комнатой и парилкой на первом этаже, а кухонный блок и жилая комната размещены на втором.
У такого размещения помещений имеется ряд преимуществ:
- баня может использоваться не только ради принятия процедур, полезных для здоровья, но и в качестве временного жилого объекта. Особенно целесообразным такое совмещение становится в условиях дачного участка, где две постройки раздельно сделать не имеется возможности из-за недостатка свободного места;
- строительство одного двухэтажного здания экономически выгоднее и требует меньше времени, чем возведение нескольких отдельных построек;
- строить такое здание можно, как под сезонное проживание, так и под круглогодичное использование. Также может быть построена баня с гаражом , что очень практично.

Рассматривая типовые проекты бани со вторым этажом, следует обращать внимание на следующие параметры:
- линейные размеры постройки;
- разновидность фундамента;
- наличие и характеристики отопительной системы;
- характеристики системы водоснабжения и канализационного отвода стоков;
- разновидность устанавливаемых лестниц;
- предназначение второго этажа;
- наличие в постройке бассейна или купальной комнаты.
Рассмотрим каждый из этих параметров подробнее. Следует понять, каким должен быть проект двух этажей бани, чтобы при строительстве получилось комфортное, надежное и безопасное здание. Нужно заранее подробно продумать план бани и прилегающих строений.
Баня с комнатой отдыха и спальней. Варианты
Если баня – это образ жизни или коммерческое вложение денег, то можно рассмотреть варианты с дополнительными опциями, которые украсят времяпрепровождение и отдых. Комбинированные варианты также пользуются популярностью.


С террасой
Если комната отдыха – это закрытое помещение, то на террасу приятно будет выйти, чтобы подышать свежим воздухом. На лето можно вообще перенести зону отдыха на улицу, оборудовав ее удобными креслами, столиком, гамаком или диванчиками с креслами. Зимой на террасу можно выйти остудиться.




Размер также может быть индивидуальным. Если терраса планируется как уличная зона отдыха, то ее можно сделать во всю ширину бани, а так же с поворотом. Просторную квадратную открытую веранду на одном фундаменте с баней и под одной с ней крышей использовать в качестве беседки в любое время.
Существует возможность обустройства бассейна на габаритной террасе
Навес не позволит воде сильно нагреваться от солнечных лучей, что так важно, когда хочется освежиться, а также в бассейн не будут лететь листья и пух в большом количестве


С бассейном
Если не хочется устанавливать бассейн на террасе, можно это сделать внутри бани. Для бассейна может быть выделено отдельное помещение, куда можно попасть сразу из парной, но чаще встречаются проекты, в которых бассейн находится непосредственно в помещении комнаты отдыха.


Небольшой вариант 2х2 с холодной водой может служить в качестве речной проруби. Подогрев понадобится для плавательных бассейнов. Для комфортного пребывания подойдет размер примерно 6х3. В качестве развлечения в таком банном водоеме можно установить водопады, водяные пушки или систему гидромассажа.
Контрастные окунания можно получить без сложного монтажа бассейна. Небольшие купели, напоминающие огромную бочку, есть в продаже в магазинах с оборудованием для бань. Для них не требуется рытье котлована, сложная отделка и система фильтров. Для комфортного погружения к купели ведет лесенка.