Проект бани с кухней. Варианты проектов
Проект бани с кухней. Варианты проектов
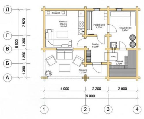
План объединенной постройки, в основном, исходит из площади территории. Ее размеры могут доходить до десяти метров по одной стене.

Баня с кухней из дерева
Виды проектов:
- Кухня в бане. Даже в самое небольшое помещение можно уместить парную, душевую, комнату для отдыха, уборную. Подобная планировка предусмотрена для небольшой семьи. Чтобы сэкономить место, устанавливают раскладные диван и кресла, что позволяет оставаться здесь на ночь;
 

- Баня с летней кухней и террасой. Здесь предусматривается кухня закрытого типа, размещенная в обособленной комнате. Подобное решение уместно для тех, кто желает иметь на придомовой территории помимо бани, домик для гостей. Если есть тамбур, то баню можно посещать и в холодный период времени. Здесь можно разместить компактную парную, просторную помывочную, санузел. Если позволяет место обустраивают купель или маленький бассейн. На террасе часто устанавливают гриль или барбекю;
 
Заметка для читателя! Возможно вам также будет интересно посмотреть проекты летних кухонь с барбекю и печью .

- Гараж с баней и летней кухней. Такой проект уместен при наличии отдельного дома, но при отсутствии гаража и бани. Группировка этих построек сохраняет полезное пространство. Гараж с баней лучше разделять летней кухней, чтобы избавиться от возведения усиленной гидроизоляции, а также спасти гараж от повышенной влажности, присущей банной зоне;
 


- Двухэтажная угловая баня с кухней. На нижнем этаже расположены основные комнаты – кухня, гостиная, уборная, тамбур, котельная и парная. На втором этаже размещена спальня с отдельным санузлом. Важную роль здесь играет расположение лестницы – ее делают удобной, не сильно крутой и не занимающей много полезного пространства. Таким образом, подобное сооружение не только выполняет свои основные функции, но и выступает отличным местом для проживания небольшой семьи;
 

- Баня с летней кухней, верандой и санузлом под одной крышей. Это решение также является аналогом полноценного загородного коттеджа. В нем найдется все для проживания — кухня, комната отдыха, санузел и для отличного отдыха – парная, помывочная, раздевалка, тамбур, терраса с летней кухней. Подобное строение подходит для всесезонного использования. Летом организуют пикник на летней кухне, даже в ненастную погоду, так как у террасы имеется крыша. А зимой проживают в доме, где тоже есть своя кухня;
 


- Зимний вариант. Если по периметру строения провести отопительные трубы от водонагревателя, то им можно пользоваться круглый год. Теплоэнергия от топки обогревает все пространство. Здесь предусматривается баня с сухим паром для уменьшения влажности, а для сушки делают качественную вентиляцию. Есть небольшая раздевался, кухня-гостиная с обеденной зоной и просторная веранда;
 

- Двухэтажное строение с мансардным этажом. У такой постройки компактные размеры и большая полезная площадь. На первом этаже расположена кухня, гостиная, тамбур, санузел, парная и помывочная. На мансардном этаже сделана спальня. Труба от печки поддерживает комфортную температуру на мансарде.
 


Проект бани. Проекты бань. Чертежи и фото
Проекты бань. Чертежи и фото Проекты бань. Чертежи и фото

Нет ничего лучше, чем отдых на даче или в загородном доме. Особенно если в этот отдых включено такое наслаждение для тела, как баня. Продумывая проект бани, важно учесть множество нюансов. Это выбор места, стройматериалов, вопрос, как провести внутренние отделочные работы, как правильно установить печь, и многое другое. В этой статье мы собрали для вас информацию, которая станет полезной на этапе принятия решения. С ее помощью вы определитесь с тем, как обустроить свое индивидуальное место для релакса.
При проектировании бани следует учитывать такие факторы:
- расположение на участке, будет ли она отдельным зданием или выступает как пристройка к дому;
 - мощность обогревателя;
 - сколько будет посетителей;
 - толщина стен, отделка, наличие или отсутствие утеплителя.
 

Виды бань
Многообразие бань возникает от разницы культур и традиций. Благодаря этому изобилию мы можем выбирать тот микроклимат в бане, который оптимально подходит нам по температуре, влажности и выработке пара.
Наиболее важен для самочувствия микроклимат, и в соответствии с ним бани подразделяются на виды.
Паровая баня: турецкий хамам
В такой бане температура достигает 40-45°, влажность 90-100%. За счет такой невысокой температуры создается мягкий микроклимат. В бане можно не только хорошо отдохнуть, но и заняться собой, порадовав тело косметическими процедурами.
Паровая сауна: русская баня
45-70° по температуре и невысокая влажность – 40-65%. Пар конденсируется на коже, образуя своеобразную пленку, а организм нагревается намного сильнее вследствие теплопроводности воды.
Суховоздушная (финская) баня
Небольшая влажность, 8-20%, сочетается с высокой температурой 70-110°. Отсутствие пара и высокая температура способствуют максимальному прогреванию организма;
Влажная сауна: спортивная
Температура 75-95° при 100% влажности . Является одним из подвидов финской бани. Температура специально повышается за счет полива камней водой. Такая сауна становится местом соревнований на выносливость и представляет для организма вред и даже опасность.
Водяная баня: японская баня офуро
Традиционная баня с температурой 40-60° и влажностью 100%, является экзотической разновидностью бани. Это обычно деревянная бочка, которая подогревается. Прогревание кожи под водой способствует потоотделению и вымыванию шлаков и пота.
В банях также различается способ подогрева и нагнетания пара . Зная эти особенности, вы выберете баню с характеристиками, которые максимально устроят вас и вашу семью.

Основные помещения в бане
Каждый тип бани включает такие функциональные помещения:
- предбанник (раздевалка);
 - парная;
 - моечное помещение;
 - комната отдыха.
 

Предбанник (раздевалка)
Предбанник еще называют тамбуром. Здесь посетители оставляют свою одежду, здесь хранятся веники и дрова. Предбанник выполняет ряд функций :
- является зоной с функцией буфера, выравнивающей переход температур от климата снаружи до температуры внутри бани;
 - служит местом для досушивания дров;
 - зачастую служит также комнатой, в которой отдыхают.
 
Дверь предбанника должна открываться наружу.



Парная комната
Эта комната является основным, базовым помещением постройки. Здесь поддерживается самая высокая температура и размещается печь. В углу парной находятся камни, с помощью которых создается пар. Под ними должно находиться жароустойчивое покрытие.
Здесь же находятся лавки, размещенные ступеньками. Две, как правило, предназначаются для сидения, одна – лежания. Обустраивая парную комнату, необходимо продумать нюансы:
- для материала, которым обшиваются потолок и стены, характерны определенные теплоизоляционные свойства, с их учетом рассчитывается глубина теплоизоляции комнат, используются конструктивные приемы;
 - эффективная работа системы вентиляции обеспечивается специальным коробом или распахивающимся окном, имеющим двойное остекление. Расположение окна – напротив печки;
 - дверной проем проектируется с повышенным порогом: так под дверь не проходит прохладный воздух и не снижается теплоэффективность. Сама дверь распахивается наружу;
 - парное и моечное помещения должны разделяться, иначе снижается качественные показатели пара и температуры, увеличивается расход топлива.
 


Моечная комната
Моечная комната, зачастую это душевая кабинка, размещается возле парной . Если размеры строения позволяют, эти зоны являются отдельными друг от друга, в маленьких постройках совмещены. В крупных строениях здесь же оборудуется бассейн или купель.
Средняя площадь моечного помещения составляет 2000х2000мм, тогда есть где принимать водные процедуры и размещать емкости с водой, горячей и холодной.
Окно строится в полтора раза больше окна в парной. Увеличен и дверной проем – 1800х800мм, чтобы обеспечить больший комфорт. По сохранению тепла требования меньше, чем в парной. Порог делается высокий, а пол укладывается из специальной плитки во избежание скольжения и сопутствующих травм.
Проект бани с кухней гостиной. 3 на 4
Чем дальше — тем веселее. Планировки бани 3 на 4 внутри, конечно, не могут похвастаться такой вариативностью, как у решений с общей квадратурой полезной площади, превышающих 50 квадратных метров, но, тем не менее, позволяют грамотно распределить все необходимые функциональные зоны с единственно верной целью — сделать использование банного помещения действительно приятным и запоминающимся.
Разумеется, на общей площади в 12 квадратных метров трудно разместиться большой компании. Поэтому при размещении тех или иных зон следует учитывать наиболее вероятный факт: такой небольшой баней, скорее всего, будет пользоваться семья из 2-3 человек либо дружеская компания на столько же человек. Все, что свыше, так или иначе, но будет немного снижать уровень комфорта. Взглянем на варианты внутренней планировки бани 3 на 4 с объединенными мойкой и парилкой.




Если вы используете печь-каменку, то логично разместить ее между парной и предбанником, чтобы распространить тепло по всей площади постройки. К тому же, вынос топочной части в предбанник позволяет вам увеличивать температуру пара, даже не заходя в парную и не растрачивая, тем самым, тепло, которое так или иначе, но выходит через открытую дверь.
Особое внимание следует уделить оформлению парной:
- не располагайте верхний лежак чересчур высоко — есть риск, что человек будет ударяться головой о потолок, когда будет слазить;
 - при обустройстве лежаков учитывайте, сколько человек будет регулярно пользоваться баней;
 - не располагайте лежаки чересчур близко от печи в своем стремлении сэкономить место — это не только не приносит удовольствие, но даже опасно для жизни
 
Вариант планировки 3х4 с мойкой и парилкой отдельно
Если проявить смекалку и некоторую инженерную хитрость, то можно осуществить внутреннюю планировку бани 3х4 с раздельным размещением мойки и парилки. В этом есть немало плюсов:
- принимать душ в прохладном помещении куда приятнее;
 - возможность раздельного и одновременного использования моечной и парной;
 - температура в парной всегда высокая, а пар — сухой и приятный.
 
Посмотрите на то, какие есть варианты планировки бани 3х4 именно с раздельной интеграцией двух зон.



